
Peterborough Road, Crowland, PE6 0BA

- PROPERTY TYPE
Semi-Detached
- BEDROOMS
3
- SIZE
902 sq ft
84 sq m
- TENUREDescribes how you own a property. There are different types of tenure - freehold, leasehold, and commonhold.Read more about tenure in our glossary page.
Freehold
Key features
- Single Garage and off road parking
- Flooring Package throughout as standard
- Kitchen Diner with patio doors leading into the rear garden
- Fully complete and ready to move into
- Walking distance to local amenities
- Good sized garden
- 10 Year Structural Warranty
- Solar panels and EV charger included
- Excellent transport links to neighbouring towns and cities
Description
Spacious modern kitchen / dining room perfect for entertaining with the French doors looking out onto the rear garden. Upstairs combines en-suite to master bedroom with a further double bedroom and one single bedroom, joined by a large family bathroom.
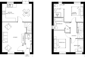
Ground Floor:
Lounge: 5.07m x 3.77m (16' 8" x 12' 42")
Kitchen: 2.02m x 3.00 (16' 6" x 9' 10")
W/C: 1.65m x 1.13m (5' 5" x 3' 8")
First Floor:
Master Bedroom: 3.11m x 3.08m (10' 3" x 10' 1")
En-suite: 2.26m x 1.83m (7' 5" x 6' 0")
Bedroom 2: 3.71m x 2.74m (12' 2" x 9' 0")
Bedroom 3: 2.28m x 2.20m (4' 6" x 7' 3")
Bathroom: 2.10m x 1.83m (6' 11" x 6' 0")
A Management Company at 'Elderwood' has been set up to oversee the day to day upkeep and maintenance of the Estate landscaping including any open spaces.
The charge for the year commencing April 2025 to be £368.79 and will be reviewed on an annual basis. Please ask the sales negotiator for more information
Please do not rely on measurements for measuring for furniture.
- COUNCIL TAXA payment made to your local authority in order to pay for local services like schools, libraries, and refuse collection. The amount you pay depends on the value of the property.Read more about council Tax in our glossary page.
- Ask developer
- PARKINGDetails of how and where vehicles can be parked, and any associated costs.Read more about parking in our glossary page.
- Garage,Driveway
- GARDENA property has access to an outdoor space, which could be private or shared.
- Back garden
- ACCESSIBILITYHow a property has been adapted to meet the needs of vulnerable or disabled individuals.Read more about accessibility in our glossary page.
- Ask developer
Energy performance certificate - ask developer
Peterborough Road, Crowland, PE6 0BA
Add an important place to see how long it'd take to get there from our property listings.
__mins driving to your place
Get an instant, personalised result:
- Show sellers you’re serious
- Secure viewings faster with agents
- No impact on your credit score
About Ashwood Homes
With over 25 years’ in the residential property market, Ashwood Homes Developments based in the heart of Lincolnshire, has built up an enviable reputation.
We’re proud to say that over the years we have provided employment for many local developments and with the ambitious plans we have for the future, there will continue to be a whole range of job opportunities to be had.
We build a range of properties from two bed properties right through to five bed properties with budgets to suit every pocket.
Each development is carefully designed to provide a sense of space to suit the family, retired and singletons alike.
Ashwood Homes Developments offer a “one stop shop” in respect of the purchase of your new home from the time you reserve your new home right through to legal completion.
Your mortgage
Notes
Staying secure when looking for property
Ensure you're up to date with our latest advice on how to avoid fraud or scams when looking for property online.
Visit our security centre to find out moreDisclaimer - Property reference 21aire. The information displayed about this property comprises a property advertisement. Rightmove.co.uk makes no warranty as to the accuracy or completeness of the advertisement or any linked or associated information, and Rightmove has no control over the content. This property advertisement does not constitute property particulars. The information is provided and maintained by Ashwood Homes. Please contact the selling agent or developer directly to obtain any information which may be available under the terms of The Energy Performance of Buildings (Certificates and Inspections) (England and Wales) Regulations 2007 or the Home Report if in relation to a residential property in Scotland.
*This is the average speed from the provider with the fastest broadband package available at this postcode. The average speed displayed is based on the download speeds of at least 50% of customers at peak time (8pm to 10pm). Fibre/cable services at the postcode are subject to availability and may differ between properties within a postcode. Speeds can be affected by a range of technical and environmental factors. The speed at the property may be lower than that listed above. You can check the estimated speed and confirm availability to a property prior to purchasing on the broadband provider's website. Providers may increase charges. The information is provided and maintained by Decision Technologies Limited. **This is indicative only and based on a 2-person household with multiple devices and simultaneous usage. Broadband performance is affected by multiple factors including number of occupants and devices, simultaneous usage, router range etc. For more information speak to your broadband provider.
Map data ©OpenStreetMap contributors.





