5 bedroom terraced house for sale
St Albans Road | Westbury Park

- PROPERTY TYPE
Terraced
- BEDROOMS
5
- BATHROOMS
2
- SIZE
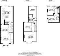
1,808 sq ft
168 sq m
- TENUREDescribes how you own a property. There are different types of tenure - freehold, leasehold, and commonhold.Read more about tenure in our glossary page.
Freehold
Key features
- An attractive Edwardian residence
- Located in the leafy suburb of Westbury Park
- In close proximity to a number of highly regarded schools and thriving high streets
- Attractive original detailing retained
- Five well-sized bedrooms
- Two bathrooms plus a ground floor WC
- Low-maintenance garden with rear access
- Impressive open-plan kitchen/diner with direct access to the garden
- Sizeable open-plan lounge/second reception to the front elevation
- Substantially extended
Description
Ground Floor - The front of the property opens features a sizeable lounge/diner, created by combining the two original reception rooms. The sitting room offers classic proportions with high ceilings, original sash windows, picture rails, and a converted gas period fireplace providing a focal point. The dining area continues the period charm with exposed floorboards, cornicing, and an attractive period fireplace. Partially glazed double doors ensure plentiful natural light flows through the space.
Perhaps the highlight of the ground floor is the expansive, open-plan kitchen/diner extension that occupies the rear of the property. With large bi-fold doors and a number of skylights, the room is flooded with natural light, illuminating this particularly impressive space. The kitchen is fitted with a range of matching base and wall-mounted units, red tiled splashbacks, integrated appliances, and a large island with a gas hob.
A WC and substantial under-stairs storage complete the ground floor accommodation.
First Floor - The first floor is comprised of three generous bedrooms. Spanning the width of the property, the master bedroom is flooded with natural light through a wide bay and a second window, both retaining the original sash windows. Built-in wardrobes also feature in this room. The second and third bedrooms are both double rooms, with the smallest offering a pleasant outlook from the rear elevation.
A modern and well-sized family bathroom is located adjacent. It features a three-piece suite with a bath, WC, and two hand wash basins, all complemented by mid-grey tiling and a heated towel rail.
Second Floor - The second floor is a well-designed converted loft space with a practical layout accessed from the landing. It comprises two well-sized double bedrooms, one of which offering valuable eaves storage.
The modern bathroom features a three-piece suite, including a basin, WC, and walk-in shower enclosure. This space is tastefully complemented by light grey tiling, a heated towel rail, a vanity unit, and a skylight.
Externally - The home presents a classic Edwardian façade with a recently replaced modern front door. The low-maintenance front courtyard is highly practical, featuring a secure storage unit.
To the rear, bi-fold doors from the kitchen/diner lead out to a well-sized decking area, which conveniently features under-croft storage. The decking descends to a low-maintenance rear garden with mature trees and shrubs, which also benefits from valuable rear access.
Vendor's Comments - "We have very much enjoyed living in St Albans Road - we have lovely neighbours, the street has lovely community feel especially on occasional road close days for the children to play out and street parties. The children safely walk to school at the local primary (excellent OFSTED) and secondary school (good OFSTED) It is great to be so close to shops, hairdressers, independent cafes and restaurants and lovely local cinema."
Location - Westbury Park is a charming residential neighbourhood known for its Victorian architecture and family-friendly atmosphere. The area features well-maintained homes and gardens, creating a picturesque suburban setting.
Residents enjoy the community feel with local schools, parks, and amenities within easy reach. Coldharbour Road and North View are nearby and offer an array of shops, cafes, restaurants and other independent business including Little French and Lavender.
Green spaces like Redland Green and Durdham Downs provide opportunities for outdoor activities, contributing to the neighbourhood’s appeal. Well-connected to Bristol's city centre, Westbury Park maintains a peaceful residential character while ensuring convenient access to amenities and transportation. It's a sought-after destination for those seeking classic charm, community spirit, and modern convenience.
Schools - Westbury Park School - Distance: 0.16 miles
Henleaze Junior School - Distance: 0.43 miles
Redland Green School - Distance: 0.51 miles
Badminton School - Distance: 0.57 miles
Brochures
St Albans Road | Westbury Park- COUNCIL TAXA payment made to your local authority in order to pay for local services like schools, libraries, and refuse collection. The amount you pay depends on the value of the property.Read more about council Tax in our glossary page.
- Band: E
- PARKINGDetails of how and where vehicles can be parked, and any associated costs.Read more about parking in our glossary page.
- Ask agent
- GARDENA property has access to an outdoor space, which could be private or shared.
- Yes
- ACCESSIBILITYHow a property has been adapted to meet the needs of vulnerable or disabled individuals.Read more about accessibility in our glossary page.
- Ask agent
St Albans Road | Westbury Park
Add an important place to see how long it'd take to get there from our property listings.
__mins driving to your place
Get an instant, personalised result:
- Show sellers you’re serious
- Secure viewings faster with agents
- No impact on your credit score
Your mortgage
Notes
Staying secure when looking for property
Ensure you're up to date with our latest advice on how to avoid fraud or scams when looking for property online.
Visit our security centre to find out moreDisclaimer - Property reference 34230334. The information displayed about this property comprises a property advertisement. Rightmove.co.uk makes no warranty as to the accuracy or completeness of the advertisement or any linked or associated information, and Rightmove has no control over the content. This property advertisement does not constitute property particulars. The information is provided and maintained by Maggs & Allen, Bristol. Please contact the selling agent or developer directly to obtain any information which may be available under the terms of The Energy Performance of Buildings (Certificates and Inspections) (England and Wales) Regulations 2007 or the Home Report if in relation to a residential property in Scotland.
*This is the average speed from the provider with the fastest broadband package available at this postcode. The average speed displayed is based on the download speeds of at least 50% of customers at peak time (8pm to 10pm). Fibre/cable services at the postcode are subject to availability and may differ between properties within a postcode. Speeds can be affected by a range of technical and environmental factors. The speed at the property may be lower than that listed above. You can check the estimated speed and confirm availability to a property prior to purchasing on the broadband provider's website. Providers may increase charges. The information is provided and maintained by Decision Technologies Limited. **This is indicative only and based on a 2-person household with multiple devices and simultaneous usage. Broadband performance is affected by multiple factors including number of occupants and devices, simultaneous usage, router range etc. For more information speak to your broadband provider.
Map data ©OpenStreetMap contributors.







