Lisbon, Lisbon, Portugal
- PROPERTY TYPE
Block of Apartments
- SIZE
Ask agent
Description
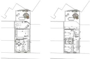
This building, currently composed of three floors — a shop on the ground floor, an apartment on the first floor, and another in the attic — already has an approved architectural project for conversion into an elegant four-story single-family house above ground plus a basement level, including parking and an outdoor area.
The project envisions a house with 404.50 m² of gross private area and 31 m² of outdoor space, combining modern comfort, functionality, and a privileged location.
Approved Project Layout:
Basement (-1): Private garage, storage area, and laundry room.
Ground Floor (0): Spacious open-plan kitchen and dining area, guest bathroom, and direct access to a pleasant outdoor patio.
First Floor (1): Living room with access to a terrace, one bedroom, and a full bathroom.
Second Floor (2): Two suites, one with a walk-in closet.
Third Floor (3): A large suite offering excellent light and privacy.
The project can be delivered turnkey, with a detailed budget available upon request — ideal for those seeking to create an exclusive residence in the heart of the city, offering comfort and convenience.
About the Area:
Largo do Rato is a strategic point in Lisbon, connecting Amoreiras, Príncipe Real, Campo de Ourique, and Estrela. The area is well served by public transport, traditional shops, renowned restaurants, schools, gardens, and all kinds of services. Its proximity to the metro and quick access to the city centre make it an ideal place to live or invest.
Don’t miss this unique opportunity to transform a building with great potential into a dream home in one of Lisbon’s most desirable and charming neighbourhoods.
For more information, project presentation, or to schedule a visit, please contact us.
Lisbon, Lisbon, Portugal
NEAREST AIRPORTS
Distances are straight line measurements- Lisbon(International)2.9 miles
Advice on buying Portuguese property
Learn everything you need to know to successfully find and buy a property in Portugal.
Notes
This is a property advertisement provided and maintained by Portugal Sotheby's International Realty, Lisboa Centro (reference 103250308) and does not constitute property particulars. Whilst we require advertisers to act with best practice and provide accurate information, we can only publish advertisements in good faith and have not verified any claims or statements or inspected any of the properties, locations or opportunities promoted. Rightmove does not own or control and is not responsible for the properties, opportunities, website content, products or services provided or promoted by third parties and makes no warranties or representations as to the accuracy, completeness, legality, performance or suitability of any of the foregoing. We therefore accept no liability arising from any reliance made by any reader or person to whom this information is made available to. You must perform your own research and seek independent professional advice before making any decision to purchase or invest in overseas property.




