Shielfield Terrace, Tweedmouth, Berwick upon Tweed

- PROPERTY TYPE
Semi-Detached
- BEDROOMS
3
- BATHROOMS
2
- SIZE
Ask agent
- TENUREDescribes how you own a property. There are different types of tenure - freehold, leasehold, and commonhold.Read more about tenure in our glossary page.
Freehold
Description
Semi detached home
3 bedrooms
2 reception rooms
Single garage
Rear gardens
This impressive family home has been well maintained and beautifully designed with excellent lateral living and entertaining spaces across three floors. The property occupies a sizable plot and is set back from the road behind a driveway and off-street parking.
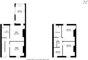
Accommodation
Briefly comprising: Entrance hallway, living room, dining room, utility/ WC, breakfasting kitchen. Upstairs offers two double bedrooms, a smaller third bedroom and a traditional bathroom suite completes the accommodation.
Externally
To the front there is a small raised garden with steps up from street level. To the rear is a concrete yard leading out to the rear access lane. Across the rear access lane is an area of garden with lawns, flower beds and an aluminium framed greenhouse. Further along the access lane and down a path is a further garden area dedicated to growing vegetables. There is a single garage and parking is available on street to the front of the property.
Location
The property is conveniently located on a popular residential street in Tweedmouth, within walking distance of local amenities.
Berwick upon Tweed has a comprehensive range of facilities including a variety of shops, restaurants, and banks as well as the award-winning Maltings Theatre. The mainline railway station is within easy walking distance and offers regular services to Edinburgh and Newcastle as well as London, some three and a half hours to the south. The A1 is close at hand providing good access to the regional and national road network
Services
Mains electricity, water and drainage, mains gas central heating.
Tenure
Freehold
Charges
Council Tax Band: Northumberland County Council, band B
EPC
Energy Performance Rating: D
Viewings
Strictly through the selling agents
Council Tax Band: B (Northumberland County Council)
Tenure: Freehold
Brochures
Brochure- COUNCIL TAXA payment made to your local authority in order to pay for local services like schools, libraries, and refuse collection. The amount you pay depends on the value of the property.Read more about council Tax in our glossary page.
- Band: B
- PARKINGDetails of how and where vehicles can be parked, and any associated costs.Read more about parking in our glossary page.
- Yes
- GARDENA property has access to an outdoor space, which could be private or shared.
- Front garden,Private garden,Enclosed garden,Rear garden
- ACCESSIBILITYHow a property has been adapted to meet the needs of vulnerable or disabled individuals.Read more about accessibility in our glossary page.
- Ask agent
Shielfield Terrace, Tweedmouth, Berwick upon Tweed
Add an important place to see how long it'd take to get there from our property listings.
__mins driving to your place
Get an instant, personalised result:
- Show sellers you’re serious
- Secure viewings faster with agents
- No impact on your credit score



Your mortgage
Notes
Staying secure when looking for property
Ensure you're up to date with our latest advice on how to avoid fraud or scams when looking for property online.
Visit our security centre to find out moreDisclaimer - Property reference RS0225. The information displayed about this property comprises a property advertisement. Rightmove.co.uk makes no warranty as to the accuracy or completeness of the advertisement or any linked or associated information, and Rightmove has no control over the content. This property advertisement does not constitute property particulars. The information is provided and maintained by Edwin Thompson, Berwick-Upon-Tweed. Please contact the selling agent or developer directly to obtain any information which may be available under the terms of The Energy Performance of Buildings (Certificates and Inspections) (England and Wales) Regulations 2007 or the Home Report if in relation to a residential property in Scotland.
*This is the average speed from the provider with the fastest broadband package available at this postcode. The average speed displayed is based on the download speeds of at least 50% of customers at peak time (8pm to 10pm). Fibre/cable services at the postcode are subject to availability and may differ between properties within a postcode. Speeds can be affected by a range of technical and environmental factors. The speed at the property may be lower than that listed above. You can check the estimated speed and confirm availability to a property prior to purchasing on the broadband provider's website. Providers may increase charges. The information is provided and maintained by Decision Technologies Limited. **This is indicative only and based on a 2-person household with multiple devices and simultaneous usage. Broadband performance is affected by multiple factors including number of occupants and devices, simultaneous usage, router range etc. For more information speak to your broadband provider.
Map data ©OpenStreetMap contributors.




