
Rolleston Drive, Lenton

Letting details
- Let available date:
- 21/08/2026
- Deposit:
- £1,800A deposit provides security for a landlord against damage, or unpaid rent by a tenant.Read more about deposit in our glossary page.
- Min. Tenancy:
- Ask agent How long the landlord offers to let the property for.Read more about tenancy length in our glossary page.
- Furnish type:
- Furnished
- Council Tax:
- Ask agent
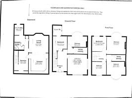
- PROPERTY TYPE
Semi-Detached
- BEDROOMS
6
- BATHROOMS
3
- SIZE
Ask agent
Key features
- STUDENTS – Ref: 16205
- £150 per person per week
- Deposit £300 per person
- Bills Inclusive Option Available
- Fully Furnished
- Modernised to an amazing standard
- Six Double Bedrooms
- Open plan kitchen and communal area
- Perfect location for students
- All our documents are signed via email. No need for office visits #EasyStudentLettings
Description
THE AREA The Park Estate in Nottingham is an exclusive and picturesque neighbourhood located just southwest of the city centre. Known for its beautiful Victorian architecture, green spaces, and peaceful atmosphere, The Park Estate offers students a premium living experience with easy access to Nottingham's universities and amenities.
Proximity to Universities
The Park Estate's location is highly advantageous for students, especially those attending Nottingham Trent University (NTU). The NTU City Campus is just a short 10-15 minute walk, making it convenient for students to reach lectures without needing public transport. For those studying at The University of Nottingham, the University Park Campus is easily accessible via regular buses or cycling routes, with a typical journey taking around 15-20 minutes.
Exclusive Living Experience
The Park Estate is one of Nottingham's most prestigious residential areas, known for its stunning Victorian architecture, private roads, and tranquil environment. The streets are lined with grand period houses, many of which have been converted into apartments, offering a more upscale living experience for students. While it's typically more expensive than other student areas, The Park Estate provides a quiet, scenic setting, perfect for those looking for a peaceful study environment.
Peace and Green Spaces
Unlike the busier student districts, The Park Estate is renowned for its serene atmosphere and green surroundings. The area is filled with private gardens, tree-lined avenues, and offers beautiful views over Nottingham. For students looking to relax or study in peace, the nearby Nottingham Castle and The Arboretum are within walking distance, providing open spaces for outdoor activities, walking, or picnicking.
Public Transport and Access
While The Park Estate is within walking distance of most central locations, it is also well-connected by buses and cycle routes. For those who prefer public transport, regular bus services run nearby, providing quick access to the University of Nottingham and other parts of the city. Additionally, Nottingham's NET tram network is a short walk away, making travel across the city easy and convenient.
Proximity to City Centre Amenities
One of the major perks of living in The Park Estate is its close proximity to Nottingham's city centre, just a 10-minute walk away. Students can easily access the city's vibrant shopping districts, including The Victoria Centre and Old Market Square, as well as an array of restaurants, bars, cafes, and entertainment venues. This means that students can enjoy Nottingham's rich cultural scene and nightlife while still living in a peaceful, secluded area.
Safety and Security
The Park Estate is known for its secure, well-maintained environment, offering a greater sense of safety compared to other areas in Nottingham. The private roads, well-lit streets, and close-knit community create a secure atmosphere that is particularly appealing to students who value safety and privacy.
A Unique Social Scene
While The Park Estate is quieter than student-heavy areas like Lenton, it offers a more refined social scene. Students living here can enjoy nearby upscale restaurants, cafes, and bars, including those in Nottingham's Castle Quarter. It's ideal for students who prefer a more relaxed and less hectic social life but still want quick access to the city's nightlife and social spots.
THE PROCESS What's the processing for securing your student accommodation
Find Your Desired Property: Start by identifying the property you wish to rent.
Contact Us: Reach out to our office, and we will gather all necessary details.
Pay Reservation Fee: To reserve the property, you'll need to pay a week's rent as a reservation fee.
Proceed to Referencing: Once the reservation fee is paid, we will move forward with the referencing process.
Security Deposit: Within two weeks, you will need to pay the security deposit, which will be the total deposit amount minus the reservation fee already paid. The security deposit will be held in a government-approved scheme.
Tenancy Agreement: Sign the tenancy agreement then the property is secured.
- COUNCIL TAXA payment made to your local authority in order to pay for local services like schools, libraries, and refuse collection. The amount you pay depends on the value of the property.Read more about council Tax in our glossary page.
- Ask agent
- PARKINGDetails of how and where vehicles can be parked, and any associated costs.Read more about parking in our glossary page.
- On street,Off street
- GARDENA property has access to an outdoor space, which could be private or shared.
- Yes
- ACCESSIBILITYHow a property has been adapted to meet the needs of vulnerable or disabled individuals.Read more about accessibility in our glossary page.
- Ask agent
Rolleston Drive, Lenton
Add an important place to see how long it'd take to get there from our property listings.
__mins driving to your place
Notes
Staying secure when looking for property
Ensure you're up to date with our latest advice on how to avoid fraud or scams when looking for property online.
Visit our security centre to find out moreDisclaimer - Property reference 101457006409. The information displayed about this property comprises a property advertisement. Rightmove.co.uk makes no warranty as to the accuracy or completeness of the advertisement or any linked or associated information, and Rightmove has no control over the content. This property advertisement does not constitute property particulars. The information is provided and maintained by Tristrams Student Lettings, Nottingham. Please contact the selling agent or developer directly to obtain any information which may be available under the terms of The Energy Performance of Buildings (Certificates and Inspections) (England and Wales) Regulations 2007 or the Home Report if in relation to a residential property in Scotland.
*This is the average speed from the provider with the fastest broadband package available at this postcode. The average speed displayed is based on the download speeds of at least 50% of customers at peak time (8pm to 10pm). Fibre/cable services at the postcode are subject to availability and may differ between properties within a postcode. Speeds can be affected by a range of technical and environmental factors. The speed at the property may be lower than that listed above. You can check the estimated speed and confirm availability to a property prior to purchasing on the broadband provider's website. Providers may increase charges. The information is provided and maintained by Decision Technologies Limited. **This is indicative only and based on a 2-person household with multiple devices and simultaneous usage. Broadband performance is affected by multiple factors including number of occupants and devices, simultaneous usage, router range etc. For more information speak to your broadband provider.
Map data ©OpenStreetMap contributors.