3 bedroom apartment for sale
Algarve, Quelfes, Portugal
- PROPERTY TYPE
Apartment
- BEDROOMS
3
- BATHROOMS
2
- SIZE
1,141 sq ft
106 sq m
Key features
- Near the beach
- Near city center
- Near shopping center
- Near green areas
- Bedrooms: 3
- Near public transportation
- Property furnished
Description
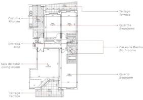
We present a 3-bedroom apartment, with a gross private area of 128 m², designed to provide comfort and functionality. These apartments stand out for their generous layouts, spacious balconies - some offering unobstructed views of the Ria Formosa - and unique natural brightness.
Main features:
Spacious living room with integrated and fully equipped kitchen
Bedrooms with built-in wardrobes, including en-suite bathrooms in some layouts
Private parking and storage located in the basement
Condominium with an elegant swimming pool, in perfect harmony with the landscaped gardens
The apartments are sold unfurnished, but an optional decoration package is available for those who wish to personalize their space immediately.
More than just a home, this development represents a unique lifestyle, where contemporary design meets the preserved nature of the Ria Formosa.
The perfect location to live, invest or simply enjoy.
Hometown - Commitment, Transparency & Real Estate Excellence
Since 2018, Hometown has established itself as a benchmark in the real estate sector, standing out for sustained growth and the trust of our clients. Our team works with professionalism and dedication, based on cooperation, transparency, and ethics.
Why choose Hometown?
Personalized support, from the first visit to after-sales
Experienced team focused on tailored solutions
Recognized in the industry, with two real estate awards won in 2024
Unwavering commitment to customer satisfaction
At Hometown, we don't just sell properties - we build long-lasting relationships of trust. Contact us and discover real estate services designed around your expectations.
Energy Rating: Exempt
#ref:HTP-0591
Algarve, Quelfes, Portugal
NEAREST AIRPORTS
Distances are straight line measurements- Faro(International)7.4 miles
Advice on buying Portuguese property
Learn everything you need to know to successfully find and buy a property in Portugal.
Notes
This is a property advertisement provided and maintained by Hometown Properties, Quarteira (reference 271472_20905260) and does not constitute property particulars. Whilst we require advertisers to act with best practice and provide accurate information, we can only publish advertisements in good faith and have not verified any claims or statements or inspected any of the properties, locations or opportunities promoted. Rightmove does not own or control and is not responsible for the properties, opportunities, website content, products or services provided or promoted by third parties and makes no warranties or representations as to the accuracy, completeness, legality, performance or suitability of any of the foregoing. We therefore accept no liability arising from any reliance made by any reader or person to whom this information is made available to. You must perform your own research and seek independent professional advice before making any decision to purchase or invest in overseas property.





