5 bedroom detached house for sale
Bell Lane, Bromsberrow Heath, Herefordshire, HR8 1NX

- PROPERTY TYPE
Detached
- BEDROOMS
5
- BATHROOMS
5
- SIZE
Ask agent
- TENUREDescribes how you own a property. There are different types of tenure - freehold, leasehold, and commonhold.Read more about tenure in our glossary page.
Freehold
Key features
- 5 Bedroom Detached Property
- No Onward Chain
- 5 Bathrooms, 2 Reception Rooms
- Convenient Village Location
- Large Enclosed Rear Garden
- Superb Multi-Generational Home
- Perfect for Indoor - Outdoor Living
- Single Garage and Outbuilding
Description
Orchard Lea is an extremely spacious property, which has been extended over the years to create the perfect space for a busy family or down-sizers requiring accommodation for visitors, set in a convenient village location with a large rear garden, garage and plenty of parking.
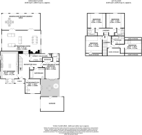
Reception Hall - Kitchen / Breakfast Room - Sitting / Dining Room - Main Ground Fl Bedroom with En-Suite - Further Ground Floor Bedroom or Study - Main Downstairs Bathroom - Utility / Laundry Room - First Floor 4 Double Bedrooms - 2 x En-Suites - Main First Floor Bathroom - Plenty of Eaves Storage - Parking for Several Vehicles with Gated Entrance - Single Garage - Superb Mediterranean Style Undercover Terrace with Pizza Oven - Large Garden, Pond & Outdoor Storage
Originally a modest single-storey home, the current vendors have transformed this 1940's property into a superb family residence. They've added a full first floor, introducing a further four additional bedrooms and three bathrooms, alongside an enviably spacious Sitting / Dining area. This central living space flows effortlessly onto an undercover, outdoor entertaining area, making it perfect for seamless indoor - outdoor living and social gatherings. This extremely versatile property can suit a variety of buyers, offering convenient ground floor accommodation and generous adaptable space for different living situations. Nestled in the village of Bromsberrow Heath it also provides convenient access to excellent transport links.
The Property
Orchard Lea presents a superb opportunity for anyone seeking flexible accommodation, convenience, and a spacious home. The property offers a generous frontage with a gravelled area providing ample parking for multiple vehicles, along with access to a single garage. Gates on either side of the property lead to the rear garden. The entrance is welcoming, featuring a handy storm porch and a generous reception hall from wihich most rooms are accessed, as well as the stairs leading to the first floor landing.
To the left, you enter the Kitchen / Breakfast room, featuring a cosy bay window seat that makes it an ideal social space for busy households. The Kitchen is equipped with a six-ring Range cooker, complemented by a tiled surround and extractor hood. There's ample surface space, plenty of cupboards and drawers, along with an integral dishwasher and a free standing American style fridge / freezer (included in sale). The room is bright and spacious throughout.
To the right of the hallway, Bedroom 6 offers versatility as either a Dining Room or Snug. This well-proportioned room is bathed in natural light from the front of the property, and it also features French doors opening onto a secluded courtyard. Adjacent to this room, the main downstairs bathroom is well presented with neutral tiles and matching walls and flooring, and it includes a shower over the bath along with his and hers sinks.
Currently used by the vendor as the main bedroom, the ground floor's second double bedroom features French doors that open onto the private courtyard, allowing plenty of natural light to fill the space. This comfortable double bedroom also benefits from a fitted wardrobe and an ensuite shower room complete with wash basin and WC.
In the middle of the hallway, sits the convenient Laundry Room, perfectly sized for a washer, dryer, with extra storage. Its external door leads straight out to the rear of the property, making it ideal for managing muddy pets or gardening gear.
Leading down three steps from the end of the Reception Hall, you enter the Sitting Room, an inviting and spacious area equally suited for both living and dining. A wood burning stove is beautifully nestled within an inglenook fireplace, creating a cosy area for the winter months. From the Sitting Room, double doors open out onto a covered garden entertainment area, complete with Mediterranean style pizza oven. This private, sheltered space is perfect for relaxing with friends and family while overlooking a garden filled with mature trees and shrubs. A charming nature pond completes this beautiful setting.
Stairs from the Hallway lead to the first floor:
On the first floor of the property, you'll discover two double bedrooms positioned on either side of a central landing. Each room offers ample eaves storage along with an additional storage cupboard on the landing itself. Both bedrooms benefit from a generous skylight window, and they share a centrally located main bathroom featuring a shower bath, a modern perspex shower screen, washbasin and W.C.
Descending three steps from the main landing, you arrive at an inner landing that leads to two additional double bedrooms. These rooms are part of a more recent extension at the rear of the property. Both bedrooms are identical in size, offering generous accommodation and charming views over the pretty rear garden. Each also benefits from its own en-suite shower room, complete with a washbasin and WC for added convenience.
Outside
Orchard Lea provides a wealth of versatile outdoor space, all enclosed and secure. With a gated entrance at the front, there's ample parking for multiple vehicles along with the convenience of a single garage and a neatly enclosed front garden to the right. An inner courtyard acts as a sun-trap, offering a private outdoor retreat directly accessible from the downstairs bedrooms through French doors.
To the side of the property, you'll find a large shed, and beyond that, an impressive nature pond opens up into the main garden. This generous space is framed by mature fruit trees and indigenous plants, giving the garden a beautifully natural ambience. In addition, a further seating area and rustic pizza oven are located at the top of the garden.
Practicalities
Forest of Dean District Council - Tax Band E
Oil Fired Central Heating
Mains Water & Drainage
Broadband Available
- COUNCIL TAXA payment made to your local authority in order to pay for local services like schools, libraries, and refuse collection. The amount you pay depends on the value of the property.Read more about council Tax in our glossary page.
- Band: E
- PARKINGDetails of how and where vehicles can be parked, and any associated costs.Read more about parking in our glossary page.
- Garage
- GARDENA property has access to an outdoor space, which could be private or shared.
- Private garden
- ACCESSIBILITYHow a property has been adapted to meet the needs of vulnerable or disabled individuals.Read more about accessibility in our glossary page.
- Ask agent
Energy performance certificate - ask agent
Bell Lane, Bromsberrow Heath, Herefordshire, HR8 1NX
Add an important place to see how long it'd take to get there from our property listings.
__mins driving to your place
Get an instant, personalised result:
- Show sellers you’re serious
- Secure viewings faster with agents
- No impact on your credit score
Your mortgage
Notes
Staying secure when looking for property
Ensure you're up to date with our latest advice on how to avoid fraud or scams when looking for property online.
Visit our security centre to find out moreDisclaimer - Property reference S1471038. The information displayed about this property comprises a property advertisement. Rightmove.co.uk makes no warranty as to the accuracy or completeness of the advertisement or any linked or associated information, and Rightmove has no control over the content. This property advertisement does not constitute property particulars. The information is provided and maintained by Glasshouse Estates and Properties LLP, Hereford. Please contact the selling agent or developer directly to obtain any information which may be available under the terms of The Energy Performance of Buildings (Certificates and Inspections) (England and Wales) Regulations 2007 or the Home Report if in relation to a residential property in Scotland.
*This is the average speed from the provider with the fastest broadband package available at this postcode. The average speed displayed is based on the download speeds of at least 50% of customers at peak time (8pm to 10pm). Fibre/cable services at the postcode are subject to availability and may differ between properties within a postcode. Speeds can be affected by a range of technical and environmental factors. The speed at the property may be lower than that listed above. You can check the estimated speed and confirm availability to a property prior to purchasing on the broadband provider's website. Providers may increase charges. The information is provided and maintained by Decision Technologies Limited. **This is indicative only and based on a 2-person household with multiple devices and simultaneous usage. Broadband performance is affected by multiple factors including number of occupants and devices, simultaneous usage, router range etc. For more information speak to your broadband provider.
Map data ©OpenStreetMap contributors.




