
The Gorries, Kincaple, St. Andrews, Fife

- PROPERTY TYPE
Detached
- BEDROOMS
3
- BATHROOMS
2
- SIZE
Ask agent
- TENUREDescribes how you own a property. There are different types of tenure - freehold, leasehold, and commonhold.Read more about tenure in our glossary page.
Freehold
Description
The heart of the home is the spacious open-plan living area, where a large sitting room flows effortlessly into the dining space and kitchen. The sitting room features a striking bay with full-length windows overlooking the mature garden, and a central partition wall with a cosy coal-burning fireplace; a perfect focal point for family gatherings or quiet evenings in. The adjoining dining area is bright and elegant, with graceful arched windows and French doors that open directly onto the patio and garden, creating a wonderful sense of connection between indoors and out.
The well-equipped kitchen combines practicality with charm, offering an Aga cooker, additional electric oven, and ample workspace. A useful utility room sits just off the kitchen, adding to the home’s convenience. Also on the ground floor is a bright double bedroom with its own en-suite shower room, as well as a guest WC.
Upstairs, the light and airy landing with Velux windows leads to two further double bedrooms, both with built-in storage, and a family bathroom featuring a corner bath and a Velux window that floods the room with natural light.
The large double garage, fitted with bi-fold and roller doors, Velux windows, built-in shelving, and a sink, provides excellent space for vehicles, storage, or creative pursuits.
Outside, the expansive garden is a true highlight of the property. Mature shrubs, colourful seasonal flowers, and generous lawned areas surround the home, creating a peaceful haven for relaxation or entertaining. A sunny patio and a charming summer house complete this idyllic outdoor setting, perfectly complementing the home’s country character.
EPC Rating - C
Council Band - G
Tenure - Freehold
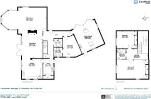
Summary of Accommodation
Ground Floor
• Bright entrance hall with tiled flooring
• Spacious open-plan sitting room, dining area, and kitchen
• Sitting room with bay windows, garden views, and coal-burning fireplace
• Dining area with arched windows and French doors to the garden
• Kitchen with Aga cooker, electric oven, and ample worktops
• Utility room with additional storage and garden access
• Double bedroom with en-suite shower room
• Separate WC
First Floor
• Large, light-filled landing with Velux windows
• Two double bedrooms with built-in storage
• Family bathroom with corner bath and Velux window
Garage and Exterior
• Substantial double garage with bi-fold and roller doors, Velux windows, sink, and shelving
• Expansive garden with mature planting, patio area, and summer house
• Private gravel driveway and ample parking
• Peaceful countryside setting near St Andrews
Location
The Gorries enjoys a peaceful setting in the picturesque hamlet of Kincaple, surrounded by rolling countryside and open farmland. The area offers a wonderful sense of rural seclusion while remaining conveniently close to the historic town of St Andrews, just a short drive away.
St Andrews provides a wealth of amenities including boutique shops, cafés, and acclaimed restaurants, as well as world-renowned golf courses, beaches, and cultural attractions. The town also hosts excellent primary and secondary schooling, along with the prestigious University of St Andrews.
Closer to home, the surrounding area offers beautiful walking and cycling routes through scenic fields and quiet country lanes, as well as easy access to nearby villages such as Strathkinness and Balmullo, both offering local facilities and welcoming community atmospheres.
The location of The Gorries offers the perfect balance; peaceful country living within easy reach of St Andrews, the East Neuk coastline, and excellent transport links to Dundee, Perth, and Edinburgh beyond.
General Remarks & Information
Fixtures and Fittings:
Only appliances specifically mentioned in the sales particulars are included in the sale price. In all other aspects the treatment of fixtures and fittings within the relevant Conveyancing Standard Clauses apply.
Services:
Oil heating, mains water, electricity, broadband, telephone (subject to telephone providers’ regulations).
The property is served via under floor heating.
Drainage is connected to a private septic.
Viewing:
By appointment through St Andrews. 28 Bell Street, St Andrews, KY16 9UX. Email: Tel:
Offers:
Offers should be submitted in Scottish Legal Form to the selling agents Rettie & Co. A closing date by which offers must be submitted may be fixed later. Please note that interested parties are advised to register their interest with the selling agents in order that they may be advised should a closing date be set. The seller reserves the right to accept any offer at any time.
Council Tax Band:
G
EPC Rating:
C
Postcode:
KY16 9SH
Tenure:
Freehold
Particulars Prepared:
10th October 2025
Internet Website
This property and other properties offered by Rettie & Co. & Rettie LLP's. can be viewed on our website at as well as Rightmove, OnTheMarket and The London Office.
Servitude Rights, Burdens & Wayleaves
The property is sold subject to and with the benefit of all servitude rights, burdens, reservations and wayleaves including rights of access and rights of way, whether public or private, light, support, drainage, water and wayleaves for masts, pylons, stays, cable, drains and water, gas and other pipes whether contained in the title deeds or informally constituted and whether or not referred to above.
Important Notice
Rettie, their clients and any joint agents give notice that:
They are not authorised to make or give any representations or warranties in relation to the property either in writing or by word of mouth. Any information given is entirely without responsibility on the part of the agents or the sellers. These particulars do not form part of any offer or contract and must not be relied upon as statements or representations of fact.
All Rettie floorplans are drawn to RICS standard. The text, photographs and plans are for guidance only and are not necessarily comprehensive and it should not be assumed that the property remains as photographed. Any error, omission or mis-statement shall not annul the sale or entitle any party to compensation or recourse to action at law. It should not be assumed that the property has all necessary planning, building regulation or other consents, including for its current use. Rettie & Co. & Rettie LLP’s have not tested any services, equipment or facilities. Purchasers must satisfy themselves by inspection or otherwise and ought to seek their own professional advice.
All descriptions or references to condition are given in good faith only. Whilst every endeavour is made to ensure accuracy, please check with us on any points of especial importance to you, especially if intending to travel some distance. No responsibility can be accepted for expenses incurred in inspecting properties which have been sold or withdrawn.
Proof and source of Funds/Anti Money Laundering
Under the HMRC Anti Money Laundering legislation all offers to purchase a property on a cash basis or subject to mortgage require evidence of source of funds. This may include evidence of bank statements/funding source, mortgage or confirmation from a solicitor the purchaser has the funds to conclude the transaction.
All individuals involved in the transaction are required to produce proof of identity and proof of address. Rettie use electronic verification, if this is not possible original documents are acceptable.
Misrepresentations
The property is sold with all faults and defects, whether of condition or otherwise and neither the seller nor Rettie & Co. or Rettie LLP’s, the selling agent, are responsible for such faults and defects, nor for any statement contained in the particulars of the property prepared by the said agent.
The Purchaser(s) shall be deemed to acknowledge that they have not entered into contract in reliance on the said statements, that they are satisfied themselves as to the content of each of the said statements by inspection or otherwise and that no warranty or representation has been made by the seller or the said agents in relation to or in connection with the property.
Any error, omission or misstatement in any of the said statements shall not entitle the purchaser(s) to rescind or to be discharged from this contract, nor entitle either party to compensation or damages nor in any circumstances to give either party any cause for action.
EPC Rating: C
Council Tax Band: G
- COUNCIL TAXA payment made to your local authority in order to pay for local services like schools, libraries, and refuse collection. The amount you pay depends on the value of the property.Read more about council Tax in our glossary page.
- Band: G
- PARKINGDetails of how and where vehicles can be parked, and any associated costs.Read more about parking in our glossary page.
- Yes
- GARDENA property has access to an outdoor space, which could be private or shared.
- Yes
- ACCESSIBILITYHow a property has been adapted to meet the needs of vulnerable or disabled individuals.Read more about accessibility in our glossary page.
- Ask agent
The Gorries, Kincaple, St. Andrews, Fife
Add an important place to see how long it'd take to get there from our property listings.
__mins driving to your place
Get an instant, personalised result:
- Show sellers you’re serious
- Secure viewings faster with agents
- No impact on your credit score
Affordability
Notes
Staying secure when looking for property
Ensure you're up to date with our latest advice on how to avoid fraud or scams when looking for property online.
Visit our security centre to find out moreDisclaimer - Property reference STA250330. The information displayed about this property comprises a property advertisement. Rightmove.co.uk makes no warranty as to the accuracy or completeness of the advertisement or any linked or associated information, and Rightmove has no control over the content. This property advertisement does not constitute property particulars. The information is provided and maintained by Rettie, St.Andrews. Please contact the selling agent or developer directly to obtain any information which may be available under the terms of The Energy Performance of Buildings (Certificates and Inspections) (England and Wales) Regulations 2007 or the Home Report if in relation to a residential property in Scotland.
*This is the average speed from the provider with the fastest broadband package available at this postcode. The average speed displayed is based on the download speeds of at least 50% of customers at peak time (8pm to 10pm). Fibre/cable services at the postcode are subject to availability and may differ between properties within a postcode. Speeds can be affected by a range of technical and environmental factors. The speed at the property may be lower than that listed above. You can check the estimated speed and confirm availability to a property prior to purchasing on the broadband provider's website. Providers may increase charges. The information is provided and maintained by Decision Technologies Limited. **This is indicative only and based on a 2-person household with multiple devices and simultaneous usage. Broadband performance is affected by multiple factors including number of occupants and devices, simultaneous usage, router range etc. For more information speak to your broadband provider.
Map data ©OpenStreetMap contributors.






