Iceland, 142-146 Stoke Newington High Street, London, N16 7JL
- SIZE AVAILABLE
12,000-13,000 sq ft
1,115-1,208 sq m
- SECTOR
Convenience store for sale
Key features
- FOR SALE BY AUCTION 30TH OCTOBER 2025
- Let to Iceland Foods Limited until September 2031 (no breaks)
- Triple Fronted Convenience Store
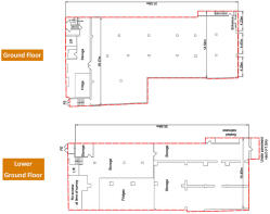
- Approx. floor area 1,132.8 sq m (12,193 sq ft)
- Prominent and Busy Inner London High Street location
- Close to Stoke Newington, Rectory Road and Dalston Kingsland Overground Stations
- Neighbouring occupiers include Costa Coffee, Sports Direct, Sainsburys, KFC, Franco Manca and Pret A Manger
- Rental income £131,675 per Annum Exclusive
Description
The property is situated in a prominent trading position on the eastern side of the busy Stoke Newington High Street (A10). Stoke Newington High Street (A10) is the major neighbouring thoroughfare from the City of London to Cambridge via North London. Neighbouring occupiers include Costa Coffee, Sports Direct, Sainsburys, KFC, Franco Manca and Pret A Manger.
Tenure
Virtual Freehold. Held for a term of 999 years at a fixed peppercorn rent.
Description
The property comprises triple fronted ground floor retail accommodation with ancillary accommodation in the basement. The property forms part of a larger residential building.
The property benefits from the rear service entrance via Lawrence Buildings.
VAT
VAT is applicable to this lot.
EPC
Band D.
For further information, to register your interest in this property and download the legal pack, please visit the Acuitus website.
Brochures
Iceland, 142-146 Stoke Newington High Street, London, N16 7JL
NEAREST STATIONS
Distances are straight line measurements from the centre of the postcode- Stoke Newington Station0.3 miles
- Rectory Road Station0.3 miles
- Clapton Station0.7 miles
Notes
Disclaimer - Property reference A13389-LOT28-STOKENEWINGTON. The information displayed about this property comprises a property advertisement. Rightmove.co.uk makes no warranty as to the accuracy or completeness of the advertisement or any linked or associated information, and Rightmove has no control over the content. This property advertisement does not constitute property particulars. The information is provided and maintained by Acuitus Limited, Acuitus. Please contact the selling agent or developer directly to obtain any information which may be available under the terms of The Energy Performance of Buildings (Certificates and Inspections) (England and Wales) Regulations 2007 or the Home Report if in relation to a residential property in Scotland.
Auction Fees: The purchase of this property may include associated fees not listed here, as it is to be sold via auction. To find out more about the fees associated with this property please call Acuitus Limited, Acuitus on 020 7870 2773.
*Guide Price: An indication of a seller's minimum expectation at auction and given as a Guide Price or a range of Guide Prices. This is not necessarily the figure a property will sell for and is subject to change prior to the auction.
Reserve Price: Each auction property will be subject to a Reserve Price below which the property cannot be sold at auction. Normally the Reserve Price will be set within the range of Guide Prices or no more than 10% above a single Guide Price.
Map data ©OpenStreetMap contributors.





