Bospolvan Road, St. Columb

- PROPERTY TYPE
Semi-Detached
- BEDROOMS
3
- BATHROOMS
1
- SIZE
Ask agent
- TENUREDescribes how you own a property. There are different types of tenure - freehold, leasehold, and commonhold.Read more about tenure in our glossary page.
Ask agent
Key features
- THREE BEDROOMS
- TWO RECEPTONS
- GARAGE
- PARKING
- ENCLOSED REAR GARDEN
- EPC
- SEMI DETACHED
- UPVC DOUBLE GLAZING
Description
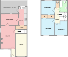
Entrance Porch
Obscure double glazed window to side aspect. Door into:-
Lounge
16' 9'' x 10' 9'' (5.10m x 3.27m)
UPVC double glazed window to front and side aspect. Solid fuel burner on slate standing. Electric wall heater. Door to dog leg staircase leading to first floor. Door to:-
Dining room
12' 10'' x 8' 1'' (3.91m x 2.46m)
Sliding patio doors onto the rear garden. Electric wall heater. Door into:-
Galley Style Kitchen
14' 2'' x 5' 8'' (4.31m x 1.73m)
Range of wall and base units with work surfaces over. Integral washer dryer and dishwasher. Stainless steel sink unit. Induction hob with extractor fan over and oven under. Electric wall heater. Larder with space for a fridge freezer.
First Floor Landing
Loft access. Cupboard housing hot water system and shelving. All doors off.
Bedroom 1
12' 1'' x 9' 7'' (3.68m x 2.92m)
UPVC double glazed window to front aspect. Electric wall heater. Fitted bedroom furniture.
Bedroom 2
10' 8'' x 10' 8'' (3.25m x 3.25m)
UPVC double glazed window to rear aspect. Sliding mirrored door wardrobe. Electric wall heater.
Bedroom 3
10' 4'' x 9' 0'' (3.15m x 2.74m)
Folding bedroom door. UPVC window to front aspect. Wall mounted electric heater.
Family Bathroom
8' 2'' x 5' 4'' (2.49m x 1.62m)
Obscure double glazed window to rear aspect. Suite consisting of bath with shower over. Wash hand basin in vanity unit. low level WC. Heated towel rail.
Outside
To the rear of the property there is an enclosed terraced garden. the lower terrace is paved housing a hot tub. The middle terrace is laid to lawn with flower beds and shrubs. There is a further decking and shale area with greenhouse and shed.
To the front of the property there is a block paved parking area leading to the garage.
Garage
16' 9'' x 7' 10'' (5.10m x 2.39m)
Up and over door. Light and power.
Brochures
Full Details- COUNCIL TAXA payment made to your local authority in order to pay for local services like schools, libraries, and refuse collection. The amount you pay depends on the value of the property.Read more about council Tax in our glossary page.
- Ask agent
- PARKINGDetails of how and where vehicles can be parked, and any associated costs.Read more about parking in our glossary page.
- Yes
- GARDENA property has access to an outdoor space, which could be private or shared.
- Yes
- ACCESSIBILITYHow a property has been adapted to meet the needs of vulnerable or disabled individuals.Read more about accessibility in our glossary page.
- Ask agent
Energy performance certificate - ask agent
Bospolvan Road, St. Columb
Add an important place to see how long it'd take to get there from our property listings.
__mins driving to your place
Get an instant, personalised result:
- Show sellers you’re serious
- Secure viewings faster with agents
- No impact on your credit score
Your mortgage
Notes
Staying secure when looking for property
Ensure you're up to date with our latest advice on how to avoid fraud or scams when looking for property online.
Visit our security centre to find out moreDisclaimer - Property reference 12766413. The information displayed about this property comprises a property advertisement. Rightmove.co.uk makes no warranty as to the accuracy or completeness of the advertisement or any linked or associated information, and Rightmove has no control over the content. This property advertisement does not constitute property particulars. The information is provided and maintained by Clarke's Sales and Lettings Ltd, St. Columb. Please contact the selling agent or developer directly to obtain any information which may be available under the terms of The Energy Performance of Buildings (Certificates and Inspections) (England and Wales) Regulations 2007 or the Home Report if in relation to a residential property in Scotland.
*This is the average speed from the provider with the fastest broadband package available at this postcode. The average speed displayed is based on the download speeds of at least 50% of customers at peak time (8pm to 10pm). Fibre/cable services at the postcode are subject to availability and may differ between properties within a postcode. Speeds can be affected by a range of technical and environmental factors. The speed at the property may be lower than that listed above. You can check the estimated speed and confirm availability to a property prior to purchasing on the broadband provider's website. Providers may increase charges. The information is provided and maintained by Decision Technologies Limited. **This is indicative only and based on a 2-person household with multiple devices and simultaneous usage. Broadband performance is affected by multiple factors including number of occupants and devices, simultaneous usage, router range etc. For more information speak to your broadband provider.
Map data ©OpenStreetMap contributors.




