Plot for sale
Plot Of Land, Station Road, Ossett, West Yorkshire, WF5
- PROPERTY TYPE
Plot
- SIZE
Ask agent
Key features
- Investors - Look At This
- Subject to Reserve Price
- The Modern Method of Auction
- Planning Approved For Detached Dwelling
- For Sale by Modern Auction T & Cs apply
- Buyers fees apply
- Great Development Opportunity
- Online Bidding Available
- Call NOW 24/7 or book instantly online to View
Description
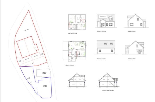
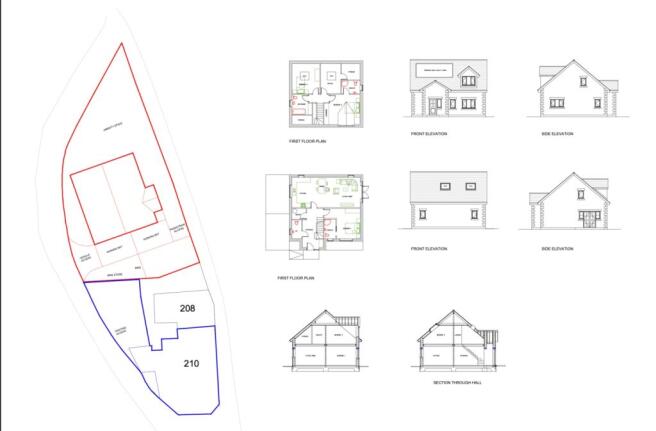
INVESTMENT OPPORTUNITY. Planning approved for development of a detached 3/4 bedroom property on Station Road, Ossett. FOR SALE USING THE MODERN METHOD OF AUCTION.
The land has outline (ref 24/01816/OUT) planning permission passed and approved for the detached dwelling. Initial architect plot drawings can be seen on the listing.
The plot is located on Station Road and Ossett provides a number of
conveniences and services, including shops, doctors and many local amenities. All within walking distance of the plot. Bus stops are close by to the site and offer connections to Wakefield, Leeds & Dewsbury. The motorway links are 2 minute drive from the plot as well as the mainline train station in Wakefield.
Located in a great town with great connections this is a great opportunity for those looking to do a self build or a developer looking to build and sell the finished article. Please enquire for more details or to discuss potential valuations of the finished build. Call to book your viewing now, online or over the phone with both services available 24/7.
Council: Wakefield
Reference: 24/01816/OUT
Proposal: Outline application for the construction of one detached dwelling including matters of access and scale to land adjacent to 210 Station Road.
Status: Decided
Decision: Application Approved
Decision Issued Date: Application Approved
Auctioneers Comments:
This property is for sale by the Modern Method of Auction, meaning the buyer and seller are to Complete within 56 days (the "Reservation Period"). Interested parties personal data will be shared with the Auctioneer (iamsold).
If considering buying with a mortgage, inspect and consider the property carefully with your lender before bidding.
A Buyer Information Pack is provided. The winning bidder will pay £349.00 including VAT for this pack which you must view before bidding.
The buyer signs a Reservation Agreement and makes payment of a non-refundable Reservation Fee of 4.5% of the purchase price including VAT, subject to a minimum of £6,600.00 including VAT. This is paid to reserve the property to the buyer during the Reservation Period and is paid in addition to the purchase price. This is considered within calculations for Stamp Duty Land Tax.
Services may be recommended by the Agent or Auctioneer in which they will receive payment from the service provider if the service is taken. Payment varies but will be no more than £450.00. These services are optional.
Plot Of Land, Station Road, Ossett, West Yorkshire, WF5
NEAREST STATIONS
Distances are straight line measurements from the centre of the postcode- Wakefield Westgate Station2.7 miles
- Dewsbury Station2.9 miles
- Batley Station3.4 miles
Notes
Disclaimer - Property reference 10712493. The information displayed about this property comprises a property advertisement. Rightmove.co.uk makes no warranty as to the accuracy or completeness of the advertisement or any linked or associated information, and Rightmove has no control over the content. This property advertisement does not constitute property particulars. The information is provided and maintained by EweMove, Covering Yorkshire. Please contact the selling agent or developer directly to obtain any information which may be available under the terms of The Energy Performance of Buildings (Certificates and Inspections) (England and Wales) Regulations 2007 or the Home Report if in relation to a residential property in Scotland.
Auction Fees: The purchase of this property may include associated fees not listed here, as it is to be sold via auction. To find out more about the fees associated with this property please call EweMove, Covering Yorkshire on 03304 700193.
*Guide Price: An indication of a seller's minimum expectation at auction and given as a Guide Price or a range of Guide Prices. This is not necessarily the figure a property will sell for and is subject to change prior to the auction.
Reserve Price: Each auction property will be subject to a Reserve Price below which the property cannot be sold at auction. Normally the Reserve Price will be set within the range of Guide Prices or no more than 10% above a single Guide Price.
Map data ©OpenStreetMap contributors.




