
Oakfield Road, Harpenden, AL5

- PROPERTY TYPE
Detached
- BEDROOMS
8
- BATHROOMS
8
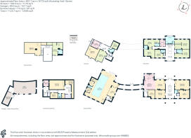
- SIZE
12,095 sq ft
1,124 sq m
- TENUREDescribes how you own a property. There are different types of tenure - freehold, leasehold, and commonhold.Read more about tenure in our glossary page.
Freehold
Key features
- Reception Hall
- Drawing Room
- Family Room
- Dining Room
- Kitchen/Breakfast Room
- Snug
- Study
- Cloakroom with WC
- Cinema Room
- Utility Room
Description
The expansive accommodation is contemporary and fantastically well appointed, offering excellent natural light and a high standard of finish. Within the main house, the five ground floor reception rooms are perfectly designed to meet the demands of family life, including formal dining and drawing rooms for entertaining and family celebrations, as well as a cosy study, a relaxing snug and a family room open plan to the spacious kitchen. The latter is equipped for all eventualities, with plenty of space for preparation, cooking, dining and spending time together. The lower ground floor offers a restful cinema room and wine cellar, a shower room and utility room.
Attached via an impressive gallery is the leisure complex, which includes an indoor swimming pool which can be opened up to the rear garden, a gym and changing facilities including showers and a steam room. Above this, with its own private entrance, is the self-contained annexe with two double bedrooms, a sitting room, kitchen and bathroom – a great added benefit for guest use or to allow multigenerational living.
The main house has six bedrooms – all en suite – arranged over the first and second floors, each attractively presented with its own character and built-in storage. The bedrooms benefit from air conditioning. There is also a useful games room on the top floor which would make a great playroom or space for teenagers.
Outside
Kinvara enjoys a well secluded setting within expansive grounds on Oakfield Road, a highly desirable road of similar impressive, detached homes. The house is set in a very private plot, approaching 1 acre, surrounded by mature trees and hedges which create a high degree of privacy and a stunning backdrop to the landscaped gardens. The house is set behind an imposing in-and-out driveway which leads up to the property and a sizeable parking area with space for several cars in front of the triple garage.
Great care has been lavished on the gardens, which are truly stunning when in the full flush of spring and summer, though offer texture and interest throughout the seasons due to the variety of specimen trees and shrubs used in the landscaping. Topiary hedging and deep borders create different textures and levels of planting, drawing the eye. The lawn is vast and level, with a surrounding path leading to a timber summerhouse, and a substantial terrace runs almost the full width of the house, providing ample space for alfresco entertaining.
Situation
Oakfield Road is a quiet and sought-after residential road in the heart of West Common, with good access to Harpenden’s plentiful amenities including Sainsbury’s, Waitrose and Marks & Spencer supermarkets, high street and independent shopping and a range of restaurants and pubs. Harpenden offers an excellent choice of schools for all age groups and those in St Albans are also easily reached; popular local establishments include St George’s, Aldwickbury, St Hilda’s and the King’s School. There are several challenging golf courses, a sports centre, swimming pool, a new state-of-the-art theatre and entertainment venue, various clubs and associations and a comprehensive range of restaurants. Harpenden also benefits greatly from a fast train service to St Pancras International (approximately 26 minutes) as well as to the motorway network via the M1 at junction 9.
Property Ref Number:
HAM-61130Additional Information
Local Authority
St Albans Council.
Council tax band H
Services
All mains services connected.
Brochures
Brochure- COUNCIL TAXA payment made to your local authority in order to pay for local services like schools, libraries, and refuse collection. The amount you pay depends on the value of the property.Read more about council Tax in our glossary page.
- Band: H
- PARKINGDetails of how and where vehicles can be parked, and any associated costs.Read more about parking in our glossary page.
- Yes
- GARDENA property has access to an outdoor space, which could be private or shared.
- Private garden
- ACCESSIBILITYHow a property has been adapted to meet the needs of vulnerable or disabled individuals.Read more about accessibility in our glossary page.
- Ask agent
Oakfield Road, Harpenden, AL5
Add an important place to see how long it'd take to get there from our property listings.
__mins driving to your place
Get an instant, personalised result:
- Show sellers you’re serious
- Secure viewings faster with agents
- No impact on your credit score
Your mortgage
Notes
Staying secure when looking for property
Ensure you're up to date with our latest advice on how to avoid fraud or scams when looking for property online.
Visit our security centre to find out moreDisclaimer - Property reference a1nQ500000S6KX8IAN. The information displayed about this property comprises a property advertisement. Rightmove.co.uk makes no warranty as to the accuracy or completeness of the advertisement or any linked or associated information, and Rightmove has no control over the content. This property advertisement does not constitute property particulars. The information is provided and maintained by Hamptons, Harpenden. Please contact the selling agent or developer directly to obtain any information which may be available under the terms of The Energy Performance of Buildings (Certificates and Inspections) (England and Wales) Regulations 2007 or the Home Report if in relation to a residential property in Scotland.
*This is the average speed from the provider with the fastest broadband package available at this postcode. The average speed displayed is based on the download speeds of at least 50% of customers at peak time (8pm to 10pm). Fibre/cable services at the postcode are subject to availability and may differ between properties within a postcode. Speeds can be affected by a range of technical and environmental factors. The speed at the property may be lower than that listed above. You can check the estimated speed and confirm availability to a property prior to purchasing on the broadband provider's website. Providers may increase charges. The information is provided and maintained by Decision Technologies Limited. **This is indicative only and based on a 2-person household with multiple devices and simultaneous usage. Broadband performance is affected by multiple factors including number of occupants and devices, simultaneous usage, router range etc. For more information speak to your broadband provider.
Map data ©OpenStreetMap contributors.








