
2 bedroom maisonette for sale
Bourne Close, West End, Woking, Surrey, GU24

- PROPERTY TYPE
Maisonette
- BEDROOMS
2
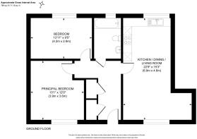
- SIZE
766 sq ft
71 sq m
Key features
- Opportunity to Acquire 45% Share
- Ground Floor
- Two Spacious Double Bedrooms
- Allocated Parking
- Close to Shops
- Within Easy Reach of M3 and Brookwood Mainline Station
- Open Plan Lounge/Kitchen/Dining Room
Description
Situated on a recently built development in West End, this spacious ground floor maisonette offers well proportioned accommodation throughout, perfect for first time buyers, downsizers, or investors alike.
The property boasts two generous double bedrooms, both offering ample space for furnishings and storage. The contemporary bathroom is finished with a sleek three-piece suite, offering a modern and fresh feel.
At the heart of the home is a light and airy open-plan living space, seamlessly combining the lounge, dining and kitchen areas. The modern kitchen is well equipped with a range of base and eye level units, an integrated oven and electric hob and a built-in fridge freezer, making it both stylish and practical.
Additional features include allocated parking, ensuring convenience for residents and visitors alike.
Located within easy reach of local shops and amenities, the property also benefits from excellent transport links, with the M3 motorway nearby and Brookwood mainline station providing direct access to London Waterloo.
A fantastic opportunity to secure a well appointed home in a prime location, early viewing is highly recommended.
Property Information
Lease Length: 120 years
N.B - have to pass relevant checks with Stonewater
West End village is conveniently located for access to Junction 3 of the M3 which in turn gives access to both Heathrow and Gatwick international airports. Education is well catered for with two excellent schools, the highly regarded Gordon’s School and Holy Trinity primary school. The Gosden Parade provides a good range of shops to include a news agents, hairdressers and coffee shop. Local dining is also excellent with the Inn At West End and the Hare & Hounds directly in the village whilst local Chobham village also offers several similar pub/restaurants. Brookwood station is approximately 2.3 miles with a regular direct service to Waterloo
Brochures
Particulars- COUNCIL TAXA payment made to your local authority in order to pay for local services like schools, libraries, and refuse collection. The amount you pay depends on the value of the property.Read more about council Tax in our glossary page.
- Band: C
- PARKINGDetails of how and where vehicles can be parked, and any associated costs.Read more about parking in our glossary page.
- Yes
- GARDENA property has access to an outdoor space, which could be private or shared.
- Ask agent
- ACCESSIBILITYHow a property has been adapted to meet the needs of vulnerable or disabled individuals.Read more about accessibility in our glossary page.
- Ask agent
Bourne Close, West End, Woking, Surrey, GU24
Add an important place to see how long it'd take to get there from our property listings.
__mins driving to your place
Get an instant, personalised result:
- Show sellers you’re serious
- Secure viewings faster with agents
- No impact on your credit score
Your mortgage
Notes
Staying secure when looking for property
Ensure you're up to date with our latest advice on how to avoid fraud or scams when looking for property online.
Visit our security centre to find out moreDisclaimer - Property reference LIG250259. The information displayed about this property comprises a property advertisement. Rightmove.co.uk makes no warranty as to the accuracy or completeness of the advertisement or any linked or associated information, and Rightmove has no control over the content. This property advertisement does not constitute property particulars. The information is provided and maintained by Seymours Estate Agents, Knaphill. Please contact the selling agent or developer directly to obtain any information which may be available under the terms of The Energy Performance of Buildings (Certificates and Inspections) (England and Wales) Regulations 2007 or the Home Report if in relation to a residential property in Scotland.
*This is the average speed from the provider with the fastest broadband package available at this postcode. The average speed displayed is based on the download speeds of at least 50% of customers at peak time (8pm to 10pm). Fibre/cable services at the postcode are subject to availability and may differ between properties within a postcode. Speeds can be affected by a range of technical and environmental factors. The speed at the property may be lower than that listed above. You can check the estimated speed and confirm availability to a property prior to purchasing on the broadband provider's website. Providers may increase charges. The information is provided and maintained by Decision Technologies Limited. **This is indicative only and based on a 2-person household with multiple devices and simultaneous usage. Broadband performance is affected by multiple factors including number of occupants and devices, simultaneous usage, router range etc. For more information speak to your broadband provider.
Map data ©OpenStreetMap contributors.





