Clarkehouse Road, Sheffield

Letting details
- Let available date:
- 01/07/2026
- Deposit:
- £150A deposit provides security for a landlord against damage, or unpaid rent by a tenant.Read more about deposit in our glossary page.
- Min. Tenancy:
- Ask agent How long the landlord offers to let the property for.Read more about tenancy length in our glossary page.
- Furnish type:
- Furnished
- Council Tax:
- Ask agent
- PROPERTY TYPE
Flat
- BEDROOMS
3
- BATHROOMS
1
- SIZE
937 sq ft
87 sq m
Key features
- Student: £100 per person per week
- Bills included option available at £130 per person per week
- Bills included option includes gas, electricity, fibre internet, TV licence and water bills
- Driveway to the rear for off road parking
- Large and very unique apartment with accommodation over two floors
- Situated extremely close to the University of Sheffield Student Union
- Available for a group of 3
- Three large bedrooms
- Perfectly placed for The University of Sheffield
- EPC Grade D
Description
A WELL LOCATED, THREE BEDROOM APARTMENT with ACCOMMODATION OVER TWO FLOORS and situated extremely close to BAR ONE and THE STUDENT UNION.
Ideal for STUDENTS studying at BOTH SHEFFIELD UNIVERSITIES and close to an abundance of local amenities.
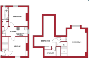
In brief the accommodation comprises: lounge, separate kitchen and double bedroom to the first floor. There are two large double bedrooms to the second floor. There is a driveway to the rear of the property.
An early viewing is highly recommended to avoid disappointment!
EPC Grade D.
Brochures
Clarkehouse Road, SheffieldFlat 4 63 Clarkehouse Video TourBrochure- COUNCIL TAXA payment made to your local authority in order to pay for local services like schools, libraries, and refuse collection. The amount you pay depends on the value of the property.Read more about council Tax in our glossary page.
- Band: A
- PARKINGDetails of how and where vehicles can be parked, and any associated costs.Read more about parking in our glossary page.
- Yes
- GARDENA property has access to an outdoor space, which could be private or shared.
- Ask agent
- ACCESSIBILITYHow a property has been adapted to meet the needs of vulnerable or disabled individuals.Read more about accessibility in our glossary page.
- Ask agent
Clarkehouse Road, Sheffield
Add an important place to see how long it'd take to get there from our property listings.
__mins driving to your place
Notes
Staying secure when looking for property
Ensure you're up to date with our latest advice on how to avoid fraud or scams when looking for property online.
Visit our security centre to find out moreDisclaimer - Property reference 34235955. The information displayed about this property comprises a property advertisement. Rightmove.co.uk makes no warranty as to the accuracy or completeness of the advertisement or any linked or associated information, and Rightmove has no control over the content. This property advertisement does not constitute property particulars. The information is provided and maintained by JC Sales and Lettings, Ecclesall Road. Please contact the selling agent or developer directly to obtain any information which may be available under the terms of The Energy Performance of Buildings (Certificates and Inspections) (England and Wales) Regulations 2007 or the Home Report if in relation to a residential property in Scotland.
*This is the average speed from the provider with the fastest broadband package available at this postcode. The average speed displayed is based on the download speeds of at least 50% of customers at peak time (8pm to 10pm). Fibre/cable services at the postcode are subject to availability and may differ between properties within a postcode. Speeds can be affected by a range of technical and environmental factors. The speed at the property may be lower than that listed above. You can check the estimated speed and confirm availability to a property prior to purchasing on the broadband provider's website. Providers may increase charges. The information is provided and maintained by Decision Technologies Limited. **This is indicative only and based on a 2-person household with multiple devices and simultaneous usage. Broadband performance is affected by multiple factors including number of occupants and devices, simultaneous usage, router range etc. For more information speak to your broadband provider.
Map data ©OpenStreetMap contributors.




