3 bedroom town house for sale
Russet Way, Alderley Edge

- PROPERTY TYPE
Town House
- BEDROOMS
3
- BATHROOMS
2
- SIZE
1,209 sq ft
112 sq m
- TENUREDescribes how you own a property. There are different types of tenure - freehold, leasehold, and commonhold.Read more about tenure in our glossary page.
Freehold
Description
DESCRIPTION
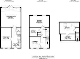
This attractive Cheshire brick home, originally constructed by respected property developers Crosby Homes, is quietly positioned within a private cul-de-sac of similar executive properties, creating a peaceful enclave of like-minded residents. Ideally located within close proximity of both Wilmslow and Alderley Edge, the property offers generous and versatile living accommodation arranged over three floors, extending to more than 1,200 square feet.
The welcoming entrance hall immediately sets the tone, offering a sense of space and light, with a convenient downstairs WC. To the front of the property, the dining kitchen provides a perfect balance of form and function, featuring fitted units, integrated appliances, and a sociable breakfast bar - a space designed for both everyday living and informal entertaining.
To the rear, the principal living area opens out into a beautiful lounge and dining space, enhanced by a part-glazed ceiling and large picture windows that flood the room with natural light. The view across the landscaped garden adds a calm and contemporary feel.
On the first floor, two well-proportioned double bedrooms are served by a modern family bathroom, while the second floor is dedicated to the elegant principal suite. This impressive room features fitted wardrobes and a private en-suite.
Externally, the property continues to impress, with a block-paved driveway providing off-road parking for two cars and there are attractively landscaped gardens to the rear. A particularly appealing feature is access to a shared meadow - an ideal open space perfect for recreation, relaxation, or simply enjoying the outdoors.
This is a wonderful opportunity to acquire a contemporary and generously proportioned home in a highly convenient and sought-after location. Offered for sale with no onward chain, this property combines modern living with a sense of community.
PLEASE NOTE
There is a service charge of £155 per quarter for the upkeep of the communal areas of the development including hedging and the communal meadow.
Brochures
Brochure- COUNCIL TAXA payment made to your local authority in order to pay for local services like schools, libraries, and refuse collection. The amount you pay depends on the value of the property.Read more about council Tax in our glossary page.
- Band: F
- PARKINGDetails of how and where vehicles can be parked, and any associated costs.Read more about parking in our glossary page.
- Yes
- GARDENA property has access to an outdoor space, which could be private or shared.
- Yes
- ACCESSIBILITYHow a property has been adapted to meet the needs of vulnerable or disabled individuals.Read more about accessibility in our glossary page.
- Ask agent
Russet Way, Alderley Edge
Add an important place to see how long it'd take to get there from our property listings.
__mins driving to your place
Get an instant, personalised result:
- Show sellers you’re serious
- Secure viewings faster with agents
- No impact on your credit score
Your mortgage
Notes
Staying secure when looking for property
Ensure you're up to date with our latest advice on how to avoid fraud or scams when looking for property online.
Visit our security centre to find out moreDisclaimer - Property reference 1030704. The information displayed about this property comprises a property advertisement. Rightmove.co.uk makes no warranty as to the accuracy or completeness of the advertisement or any linked or associated information, and Rightmove has no control over the content. This property advertisement does not constitute property particulars. The information is provided and maintained by Gascoigne Halman, Alderley Edge. Please contact the selling agent or developer directly to obtain any information which may be available under the terms of The Energy Performance of Buildings (Certificates and Inspections) (England and Wales) Regulations 2007 or the Home Report if in relation to a residential property in Scotland.
*This is the average speed from the provider with the fastest broadband package available at this postcode. The average speed displayed is based on the download speeds of at least 50% of customers at peak time (8pm to 10pm). Fibre/cable services at the postcode are subject to availability and may differ between properties within a postcode. Speeds can be affected by a range of technical and environmental factors. The speed at the property may be lower than that listed above. You can check the estimated speed and confirm availability to a property prior to purchasing on the broadband provider's website. Providers may increase charges. The information is provided and maintained by Decision Technologies Limited. **This is indicative only and based on a 2-person household with multiple devices and simultaneous usage. Broadband performance is affected by multiple factors including number of occupants and devices, simultaneous usage, router range etc. For more information speak to your broadband provider.
Map data ©OpenStreetMap contributors.




