
Dundas Avenue, Torrance, G64

- PROPERTY TYPE
Detached
- BEDROOMS
3
- BATHROOMS
1
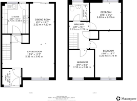
- SIZE
926 sq ft
86 sq m
- TENUREDescribes how you own a property. There are different types of tenure - freehold, leasehold, and commonhold.Read more about tenure in our glossary page.
Freehold
Description
Situated in a quiet cul-de-sac in Torrance, this three-bedroom detached villa has been well maintained by the current owners and offers a flexible family accommodation with over two levels with an adjoining garage and front and rear garden.
The well-proportioned accommodation boasts a spacious living room to the front of the property that is open plan to the south-facing dining area to the rear. A breakfasting kitchen with a range of wall and base mounted units and convenient rear door completes the ground floor accommodation. On the upper landing there are three generously sized bedrooms all of which with integrated storage. Completing this lovely home is a three-piece family bathroom with shower over bath . The property further benefits from double glazing, gas central heating, private driveway with garage parking and leafy gardens.
Set just off Balmore Road, Dundas Avenue enjoys a peaceful setting on the edge of the village, offering easy access to local shops, cafés, and scenic countryside walks and cycle routes. Torrance Primary serves as a feeder school for Boclair Academy in Bearsden, ensuring excellent options for families with school-age children. The village itself provides a semi-rural lifestyle while remaining conveniently close to neighbouring areas such as Lenzie, Kirkintilloch, Bishopbriggs, Bearsden, and Milngavie. Glasgow City Centre lies a little over eight miles away, with regular bus links available from Main Street for straightforward commuting.
EPC Rating: C
- COUNCIL TAXA payment made to your local authority in order to pay for local services like schools, libraries, and refuse collection. The amount you pay depends on the value of the property.Read more about council Tax in our glossary page.
- Band: E
- PARKINGDetails of how and where vehicles can be parked, and any associated costs.Read more about parking in our glossary page.
- Yes
- GARDENA property has access to an outdoor space, which could be private or shared.
- Private garden
- ACCESSIBILITYHow a property has been adapted to meet the needs of vulnerable or disabled individuals.Read more about accessibility in our glossary page.
- Ask agent
Dundas Avenue, Torrance, G64
Add an important place to see how long it'd take to get there from our property listings.
__mins driving to your place
Get an instant, personalised result:
- Show sellers you’re serious
- Secure viewings faster with agents
- No impact on your credit score
Your mortgage
Notes
Staying secure when looking for property
Ensure you're up to date with our latest advice on how to avoid fraud or scams when looking for property online.
Visit our security centre to find out moreDisclaimer - Property reference c108b345-f286-413b-aa90-6f2a7fa9c625. The information displayed about this property comprises a property advertisement. Rightmove.co.uk makes no warranty as to the accuracy or completeness of the advertisement or any linked or associated information, and Rightmove has no control over the content. This property advertisement does not constitute property particulars. The information is provided and maintained by Clyde Property, Bearsden. Please contact the selling agent or developer directly to obtain any information which may be available under the terms of The Energy Performance of Buildings (Certificates and Inspections) (England and Wales) Regulations 2007 or the Home Report if in relation to a residential property in Scotland.
*This is the average speed from the provider with the fastest broadband package available at this postcode. The average speed displayed is based on the download speeds of at least 50% of customers at peak time (8pm to 10pm). Fibre/cable services at the postcode are subject to availability and may differ between properties within a postcode. Speeds can be affected by a range of technical and environmental factors. The speed at the property may be lower than that listed above. You can check the estimated speed and confirm availability to a property prior to purchasing on the broadband provider's website. Providers may increase charges. The information is provided and maintained by Decision Technologies Limited. **This is indicative only and based on a 2-person household with multiple devices and simultaneous usage. Broadband performance is affected by multiple factors including number of occupants and devices, simultaneous usage, router range etc. For more information speak to your broadband provider.
Map data ©OpenStreetMap contributors.








