
Melbourne Grove, London, SE22
- PROPERTY TYPE
Land
- SIZE
3,744 sq ft
348 sq m
Key features
- Consented residential development opportunity
- Great location in East Dulwich
- Extension of Existing & Delivery of New Build House
- Total proposed floor area 3744 sq ft
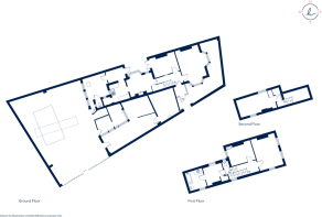
Description
Extension of Existing
Demolition of existing side and rear extensions/outbuildings to construct a single storey side and single storey rear extension, loft conversion incorporating hip to gable roof enlargement and rear dormer addition, alterations to existing boundary treatments and associated landscaping.
New Build
Demolition of existing outbuildings and the erection of a detached dwellinghouse with associated landscaping, amenity space, cycle storage, refuse and recycling provision.
The total proposed floor area comprises approximately 3,744 sq ft GIA
The site comprises a 2.5 storey end of terrace house fronting the corner of Melbourne Grove and Lytcott Grove. Pedestrian access is via Lytcott Grove. The ground floor comprises living areas, kitchen and WC. At first floor level there are 2 bedrooms, a study area onto family bathroom and separate WC. Second floor comprises a bedroom and storage space. There is courtyard space at the entrance to the property, fronting both Melbourne Grove and Lytcott Grove.
To the rear of the residential accommodation, fronting Lytcott Grove is a former motor garage. The space consists of a garage with associated courtyards & workshops. A gate provides access down the side of the garage to a rear courtyard. There is also access from the existing rear courtyard of 100 Melbourne Grove directly into the main garage.
* Full details of the granted planning permission and associated development opportunities are available within the accompanying brochure. *
Situation
Located in the heart of East Dulwich, 100 Melbourne Grove presents an exceptional residential development opportunity in one of South-East London's most sought-after neighbourhoods. This prime location combines the charm of village living with excellent connectivity to central London.
The property benefits from proximity to Lordship Lane, East Dulwich’s vibrant high street, which offers a variety of independent shops, cafes, restaurants and pubs. Nearby North Cross Road hosts a popular weekend market, while the area boasts several supermarkets including Sainsbury's and Marks & Spencer Food Hall for everyday convenience.
The area is home to several well-regarded schools including Goose Green Primary, The Charter School East Dulwich, and Alleyn's School.
The site benefits from proximity to several green spaces, with Peckham Rye Park and Goose Green nearby. Dulwich Park is also accessible, offering recreational facilities including a boating lake, tennis courts and café, while Dulwich Woods provides natural woodland areas.
Property Ref Number:
HAM-61443Additional Information
Tenure
LBX EAST DULWICH LTD owns the three titles TGL571863, SGL162249, LN178697). The property will be sold with the benefit of vacant possession. The property is available for purchase either through the acquisition of 100% of the shares in LBX EAST DULWICH LTD, or by way of a direct freehold sale.
Local Authority
London Borough of Southwark, 160 Tooley Street, London, SE1 2QH
Method of Disposal
The property is for sale by means of private treaty. Unconditional offers are sought.
VAT
The property is not elected for VAT.
Purchaser Notice
The vendor, in its absolute discretion, does not undertake to accept the highest or any offer received.
CIL
24/AP/2395 amended under 25/AP/2699 is understood to be CIL liable for a total of £885.
Section 106
No affordable housing contributions or late-stage review.
Inspection
The property may only be inspected by prior appointment through Hamptons. A number of viewing days will be held to facilitate viewings. The dates of these will be communicated to interested parties on request.
Brochures
BrochureMelbourne Grove, London, SE22
NEAREST STATIONS
Distances are straight line measurements from the centre of the postcode- East Dulwich Station0.3 miles
- North Dulwich Station0.5 miles
- Denmark Hill Station0.9 miles
Notes
Disclaimer - Property reference a1nQ500000SrUB9IAN. The information displayed about this property comprises a property advertisement. Rightmove.co.uk makes no warranty as to the accuracy or completeness of the advertisement or any linked or associated information, and Rightmove has no control over the content. This property advertisement does not constitute property particulars. The information is provided and maintained by Hamptons, Land & Investments, London. Please contact the selling agent or developer directly to obtain any information which may be available under the terms of The Energy Performance of Buildings (Certificates and Inspections) (England and Wales) Regulations 2007 or the Home Report if in relation to a residential property in Scotland.
Map data ©OpenStreetMap contributors.






