Gloucester Terrace, Haverfordwest

- PROPERTY TYPE
Terraced
- BEDROOMS
4
- BATHROOMS
1
- SIZE
Ask agent
- TENUREDescribes how you own a property. There are different types of tenure - freehold, leasehold, and commonhold.Read more about tenure in our glossary page.
Freehold
Key features
- No Onward Chain
- Grade 2 Listed
- Mid -Terrace Townhouse
- Four Bedrooms
- Two Reception Rooms
- Garage And Parking To The Rear
- Modernisation Required
- Tiered Garden To The Rear
- Convenient To Town
- EPC E
Description
A fantastic opportunity to purchase a mid-terrace Grade II listed townhouse located within walking distance of Haverfordwest town centre. This property required modernisation throughout, giving excellent potential for an investor or someone looking to build a family home from scratch.
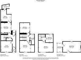
Set over three levels, the layout of the property briefly comprises of an entrance vestibule and hallway with door to the garden, living room with open fireplace, dining room with solid fuel fire and back boiler. There is understairs storage, kitchen with access to a store room at the rear. On the first floor there are two bedrooms and a shower room, with the second floor giving access to the two further bedrooms. The property boasts ample storage areas, and is being sold with the further appeal of no onward chain.
Externally, there is a tiered garden to the rear with steps leading up to a garage with glass lean-to and access to a back lane which gives vehicular access and a parking space.
Viewing is highly recommended!
The market town of Haverfordwest has numerous facilities and amenities on offer, which include a good range of shops, retail parks, primary and secondary schools, sixth form college, hospital, main line train station, new leisure centre/swimming pool, cinema, restaurants, pubs etc.
The beautiful Pembrokeshire coast is only 6 miles to the south west, at the long sandy beach of Broad Haven, and the famous surfing beach of Newgale 7.5 miles to the north west. The famous Pembrokeshire Coast Path gives miles of wonderful walks on which to enjoy the stunning coastline, wild flowers and birdlife.
VIEWING: By appointment only via the Agents.
TENURE: Freehold
SERVICES: We have not checked or tested any of the services or appliances at the property.
Property has Mains Electric, Mains Water, Solid Fuel, Mains Drainage
HEATING: Solid Fuel
TAX: Band D
We would respectfully ask you to call our office before you view this property internally or externally
JETH//ESL/10/25/DRAFT
FACEBOOK & TWITTER
Be sure to follow us on Twitter: @ WWProps
Brochures
Gloucester Terrace, HaverfordwestBrochure- COUNCIL TAXA payment made to your local authority in order to pay for local services like schools, libraries, and refuse collection. The amount you pay depends on the value of the property.Read more about council Tax in our glossary page.
- Band: D
- PARKINGDetails of how and where vehicles can be parked, and any associated costs.Read more about parking in our glossary page.
- Yes
- GARDENA property has access to an outdoor space, which could be private or shared.
- Yes
- ACCESSIBILITYHow a property has been adapted to meet the needs of vulnerable or disabled individuals.Read more about accessibility in our glossary page.
- Ask agent
Gloucester Terrace, Haverfordwest
Add an important place to see how long it'd take to get there from our property listings.
__mins driving to your place
Get an instant, personalised result:
- Show sellers you’re serious
- Secure viewings faster with agents
- No impact on your credit score

Your mortgage
Notes
Staying secure when looking for property
Ensure you're up to date with our latest advice on how to avoid fraud or scams when looking for property online.
Visit our security centre to find out moreDisclaimer - Property reference 34236503. The information displayed about this property comprises a property advertisement. Rightmove.co.uk makes no warranty as to the accuracy or completeness of the advertisement or any linked or associated information, and Rightmove has no control over the content. This property advertisement does not constitute property particulars. The information is provided and maintained by West Wales Properties, Haverfordwest. Please contact the selling agent or developer directly to obtain any information which may be available under the terms of The Energy Performance of Buildings (Certificates and Inspections) (England and Wales) Regulations 2007 or the Home Report if in relation to a residential property in Scotland.
Auction Fees: The purchase of this property may include associated fees not listed here, as it is to be sold via auction. To find out more about the fees associated with this property please call West Wales Properties, Haverfordwest on 01437 457845.
*Guide Price: An indication of a seller's minimum expectation at auction and given as a Guide Price or a range of Guide Prices. This is not necessarily the figure a property will sell for and is subject to change prior to the auction.
Reserve Price: Each auction property will be subject to a Reserve Price below which the property cannot be sold at auction. Normally the Reserve Price will be set within the range of Guide Prices or no more than 10% above a single Guide Price.
*This is the average speed from the provider with the fastest broadband package available at this postcode. The average speed displayed is based on the download speeds of at least 50% of customers at peak time (8pm to 10pm). Fibre/cable services at the postcode are subject to availability and may differ between properties within a postcode. Speeds can be affected by a range of technical and environmental factors. The speed at the property may be lower than that listed above. You can check the estimated speed and confirm availability to a property prior to purchasing on the broadband provider's website. Providers may increase charges. The information is provided and maintained by Decision Technologies Limited. **This is indicative only and based on a 2-person household with multiple devices and simultaneous usage. Broadband performance is affected by multiple factors including number of occupants and devices, simultaneous usage, router range etc. For more information speak to your broadband provider.
Map data ©OpenStreetMap contributors.




