
Lawrie Reilly Place, Edinburgh, Midlothian

Letting details
- Let available date:
- 31/10/2025
- Deposit:
- £2,300A deposit provides security for a landlord against damage, or unpaid rent by a tenant.Read more about deposit in our glossary page.
- Min. Tenancy:
- Ask agent How long the landlord offers to let the property for.Read more about tenancy length in our glossary page.
- Let type:
- Long term
- Furnish type:
- Furnished or unfurnished, landlord is flexible
- Council Tax:
- Ask agent
- PROPERTY TYPE
Terraced
- BEDROOMS
3
- BATHROOMS
2
- SIZE
1,130 sq ft
105 sq m
Description
This beautifully presented two-storey house offers bright, modern accommodation, a clean, contemporary aesthetic with generous proportions, excellent storage, and private outdoor space.
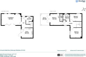
Accommodation Comprises:
Ground floor - Welcoming entrance hallway; Spacious lounge and dining area flooded with natural light through the French doors leading out to the garden, creating an ideal setting for indoor–outdoor living; Spacious and sleek dining kitchen with doors leading out to the garden; Convenient WC and a large under-stair cupboard.
First floor – Landing; Principal double bedroom featuring a stylish ensuite shower room and French doors that open onto a private balcony; Two further double bedrooms; Family bathroom with shower above bath.
The property further benefits from GCH and high-performance double glazing.
The property enjoys a peaceful setting within the modern Lawrie Reilly Place development, located just east of Edinburgh’s city centre. The area offers an ideal balance of tranquillity and convenience, with excellent access to local amenities and green spaces. Nearby, Meadowbank Retail Park provides a wide range of shops and supermarkets, while the bustling Easter Road and Leith Walk areas offer independent cafés, restaurants, and local stores. Beautiful Lochend Park and Holyrood Park are both within walking distance, providing wonderful options for outdoor recreation.
Regular bus services connect the area to the city centre, Waverley Station, and beyond. The location also offers easy access to major road routes for commuting across the city or further afield.
Families are well served by respected local schools within the catchment area, including Abbeyhill and St. Ninian’s primary schools, and Drummond Community and Holy Rood high schools.
PLEASE NOTE: The patio will be power-washed before the start of a new tenancy. The property can be let as seen or some furniture can be removed by negotiation.
Furnished/Unfurnished
Deposit: £2,300
Council Tax Band: E
EPC Rating: B
Landlord Registration: 1790029/230/30092
LARN1903047
EPC Rating: B
Council Tax Band: E
- COUNCIL TAXA payment made to your local authority in order to pay for local services like schools, libraries, and refuse collection. The amount you pay depends on the value of the property.Read more about council Tax in our glossary page.
- Band: E
- PARKINGDetails of how and where vehicles can be parked, and any associated costs.Read more about parking in our glossary page.
- Yes
- GARDENA property has access to an outdoor space, which could be private or shared.
- Yes
- ACCESSIBILITYHow a property has been adapted to meet the needs of vulnerable or disabled individuals.Read more about accessibility in our glossary page.
- Ask agent
Lawrie Reilly Place, Edinburgh, Midlothian
Add an important place to see how long it'd take to get there from our property listings.
__mins driving to your place
Notes
Staying secure when looking for property
Ensure you're up to date with our latest advice on how to avoid fraud or scams when looking for property online.
Visit our security centre to find out moreDisclaimer - Property reference EDL250187_L. The information displayed about this property comprises a property advertisement. Rightmove.co.uk makes no warranty as to the accuracy or completeness of the advertisement or any linked or associated information, and Rightmove has no control over the content. This property advertisement does not constitute property particulars. The information is provided and maintained by Rettie, Edinburgh. Please contact the selling agent or developer directly to obtain any information which may be available under the terms of The Energy Performance of Buildings (Certificates and Inspections) (England and Wales) Regulations 2007 or the Home Report if in relation to a residential property in Scotland.
*This is the average speed from the provider with the fastest broadband package available at this postcode. The average speed displayed is based on the download speeds of at least 50% of customers at peak time (8pm to 10pm). Fibre/cable services at the postcode are subject to availability and may differ between properties within a postcode. Speeds can be affected by a range of technical and environmental factors. The speed at the property may be lower than that listed above. You can check the estimated speed and confirm availability to a property prior to purchasing on the broadband provider's website. Providers may increase charges. The information is provided and maintained by Decision Technologies Limited. **This is indicative only and based on a 2-person household with multiple devices and simultaneous usage. Broadband performance is affected by multiple factors including number of occupants and devices, simultaneous usage, router range etc. For more information speak to your broadband provider.
Map data ©OpenStreetMap contributors.








