
3 bedroom semi-detached house for sale
Chapel Street, Galgate, Lancaster

- PROPERTY TYPE
Semi-Detached
- BEDROOMS
3
- BATHROOMS
1
- SIZE
866 sq ft
80 sq m
- TENUREDescribes how you own a property. There are different types of tenure - freehold, leasehold, and commonhold.Read more about tenure in our glossary page.
Freehold
Key features
- Income Producing Investment
- Student HMO
- Very Close To Lancaster University
- Three Letting Bedrooms
- One Off Street Parking Space
- Garage/Landlord Store
- Excellent Location
- Let for 2025/2026 Academic Year
- Good Track Record Of Letting
- Tenure: FREEHOLD
Description
This income-producing student investment property offers a very generous income to an investor!
Located just a 15-minute walk and a 7-minute cycle to Lancaster University. This lovely home is exceptionally close to the Lancaster University campus, making it a very easy commute for the tenants. A bus to the centre is just a 1-minute walk away.
This well-presented property has been very well maintained and comes with a garden, allocated parking and a garage that would make an excellent landlord's store.
Lancaster city and has a lot to offer, with a great choice of high street shops, fabulous restaurants and a local market.
The city has excellent transport links via road and rail, making this an easy commute for professionals working at the renowned hospitals and universities.
The property is let for the 2025/2026 academic year, 3 X 48 with an annual gross income of £18,144 (£126 per person per week *including bills).
The property is sold with furniture and white goods included in the sale with the exception of the tenant's personal belongings (such as any furniture they may have brought to the property).
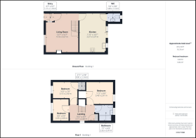
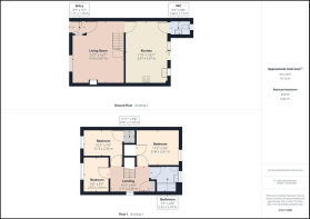
Accommodation:
Lounge, spacious kitchen/diner and ground floor cloakroom. The first floor has three bedrooms and a bathroom. Enclosed rear garden, garage and allocated parking for two cars. The property benefits from double glazing and gas central heating.
***HD 360 VIDEO TOUR AVAILABLE***
Entrance Vestibule - Wood effect laminate flooring, consumer unit, door to lounge.
Lounge - Double glazed window to front, feature fireplace with inset electric fire, radiator, stairs to the first floor, radiator.
Kitchen/Diner - Double glazed window to rear, range of matching wall and base units, Vaillant wall mounted combi boiler, electric oven with four plate hob and extractor hood, plumbing for washing machine, stainless steel sink, tiled splashbacks, sliding patio doors to garden, door to cloakroom.
Cloakroom - Double glazed frosted window to rear, wash hand basin, storage cupboard, radiator, coat hook, wood effect laminate flooring, W.C.
First Floor Landing - Double glazed window to the side, linen and storage cupboard, access to the loft, carpeted flooring, radiator.
Bedroom One - Double glazed window to rear, storage cupboard, built-in wardrobes and draws, radiator, carpeted flooring.
Bedroom Two - Double glazed window to front, walk-in storage cupboard, radiator, carpeted flooring.
Bedroom Three - Double glazed window to front, radiator, carpeted flooring.
Bathroom - Double glazed frosted window to rear, panelled bath with shower, wash hand basin, partially tiled, extractor fan, vanity unit, shaver p[point, radiator, tile effect vinyl flooring, W.C.
Outside - Enclosed garden to the rear with lawn area, patio areas, storage shed and gate to the car park.
Detached Garage - Useful additional storage, landlord store or workshop.
Investment Information - The property is let for the 2025/2026 academic year, 3 X 48 with an annual gross income of £18,144 (£126 per person per week *including bills).
Excellent letting history
Current EICR & Landlords gas safety certificate in place.
The property is currently managed by Mighty Student Living on a fully managed basis, please call us for more details.
Useful Information - Council Ta1x Band ( C) £2,140
Tenure: Freehold
Brochures
Chapel Street, Galgate, LancasterBrochure- COUNCIL TAXA payment made to your local authority in order to pay for local services like schools, libraries, and refuse collection. The amount you pay depends on the value of the property.Read more about council Tax in our glossary page.
- Band: C
- PARKINGDetails of how and where vehicles can be parked, and any associated costs.Read more about parking in our glossary page.
- Yes
- GARDENA property has access to an outdoor space, which could be private or shared.
- Yes
- ACCESSIBILITYHow a property has been adapted to meet the needs of vulnerable or disabled individuals.Read more about accessibility in our glossary page.
- Ask agent
Chapel Street, Galgate, Lancaster
Add an important place to see how long it'd take to get there from our property listings.
__mins driving to your place
Get an instant, personalised result:
- Show sellers you’re serious
- Secure viewings faster with agents
- No impact on your credit score
Your mortgage
Notes
Staying secure when looking for property
Ensure you're up to date with our latest advice on how to avoid fraud or scams when looking for property online.
Visit our security centre to find out moreDisclaimer - Property reference 34237286. The information displayed about this property comprises a property advertisement. Rightmove.co.uk makes no warranty as to the accuracy or completeness of the advertisement or any linked or associated information, and Rightmove has no control over the content. This property advertisement does not constitute property particulars. The information is provided and maintained by Mighty House Estates, Lancaster. Please contact the selling agent or developer directly to obtain any information which may be available under the terms of The Energy Performance of Buildings (Certificates and Inspections) (England and Wales) Regulations 2007 or the Home Report if in relation to a residential property in Scotland.
*This is the average speed from the provider with the fastest broadband package available at this postcode. The average speed displayed is based on the download speeds of at least 50% of customers at peak time (8pm to 10pm). Fibre/cable services at the postcode are subject to availability and may differ between properties within a postcode. Speeds can be affected by a range of technical and environmental factors. The speed at the property may be lower than that listed above. You can check the estimated speed and confirm availability to a property prior to purchasing on the broadband provider's website. Providers may increase charges. The information is provided and maintained by Decision Technologies Limited. **This is indicative only and based on a 2-person household with multiple devices and simultaneous usage. Broadband performance is affected by multiple factors including number of occupants and devices, simultaneous usage, router range etc. For more information speak to your broadband provider.
Map data ©OpenStreetMap contributors.






