
6 bedroom detached house for sale
The Crescent, Solihull

- PROPERTY TYPE
Detached
- BEDROOMS
6
- BATHROOMS
2
- SIZE
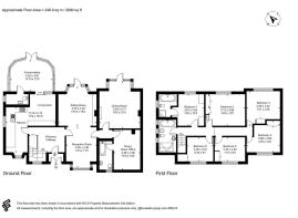
2,690 sq ft
250 sq m
- TENUREDescribes how you own a property. There are different types of tenure - freehold, leasehold, and commonhold.Read more about tenure in our glossary page.
Freehold
Key features
- Charming detached family home set on a 0.25 acre plot
- Six bedrooms, including the principal bedroom with en-suite
- Multiple reception rooms including optional ground floor bedroom
- Large conservatory with garden access
- Private and mature rear garden
- Driveway parking
- Requiring modernisation throughout
- Central Solihull location, on a premier road, within close proximity to Solihull School
- Walking distance to both Solihull train station and the town centre
- No upward chain
Description
Set just a short stroll from the vibrant Solihull town centre with its renowned shopping, dining and transport links, the home offers the perfect canvas for modernisation, refurbishment or complete redesign (STPP).
To the ground floor, a welcoming entrance hall sets the tone, leading to a series of spacious reception rooms including a formal lounge, separate sitting room, snug with adjoining bathroom, dedicated dining room, and a well-proportioned kitchen offering scope for open-plan living.
From the kitchen, a generous conservatory opens out onto a mature private rear garden, creating the ideal space for indoor-outdoor entertaining and family enjoyment.
Upstairs boasts six well-sized bedrooms, offering versatility for growing families or those needing home office space. The principal bedroom features an en suite bathroom, while a separate family bathroom serves the remaining bedrooms.
Externally, to the front, the property offers a private driveway with parking for three vehicles. The rear garden is beautifully mature, private, and spacious, offering a peaceful retreat and plenty of room for landscaping or extension, STPP.
Ideally situated just minutes by car or foot from Solihull train station as well as the amenities of Solihull town centre, this home offers convenience in an exceptional location.
Location - Solihull town centre is a hub for all generations, providing excellent lifestyle, entertainment and education facilities. Solihull’s own train station just minutes walk from the main high street of town, offers links to Birmingham, Stratford upon Avon, Leamington Spa and London. The centre is home to the thriving indoor Touchwood Shopping centre, renowned for its large John Lewis store, multiple cafés, restaurants and cinema. Both Malvern and Brueton Parks are wonderful to explore in all seasons, with no shortage of picnic spots around the lake and nature reserve.
The town is home to Solihull School, an independent day school for both boys and girls from ages 3 to 18. Excellent state schooling is nearby, with all ages catered for alongside several options for sixth-form studies. The Bull Ring in Birmingham city centre is approximately 7 miles away, easily reached by the motorway network of the M42 and M6 or equally train within about 15 minutes. Alongside advances in facilities, the town has maintained a charm which resonates throughout many of its prime residential roads, with green and leafy streets evident to this day along with the prominent St Alphege Church.
General Information - Tenure: Freehold
Services: Mains gas, electricity, water and drainage
Local Authority: Solihull Metropolitan Council | Council Tax Band G
EPC: Rating E
Postcode: B91 1JP
Agents Note - We have not tested any of the electrical, central heating or sanitaryware appliances. Purchasers should make their own investigations as to the workings of the relevant items. Floor plans are for identification purposes only and not to scale. All room measurements and mileages quoted in these sales details are approximate. Subjective comments in these details imply the opinion of the selling agent at the time these details were prepared. Naturally, the opinions of purchasers may differ. These sales details are produced in good faith to offer a guide only and do not constitute any part of a contract or offer. We would advise that fixtures and fittings included within the sale are confirmed by the purchaser at the point of offer. Images used within these details are under copyright to EB&P and under no circumstances are to be reproduced by a third party without prior permission.
Anti Money Laundering (Aml) - We have a duty to know who our client is, including checking your identity and residence, original, or certified original, documents; and we carry out AML (Anti-money laundering) checks in a number of ways. We will ask you to provide documents to confirm your ID and proof of residence. We will also carry out electronic AML searches for every person who is our buyer and client. In some cases, we are also obliged to carry out further checks. We will let you know if we need to carry out further checks or require further information. We expect to receive your documents to satisfy the AML checks within 7 working days from the request. EB&P will charge £24 Incl. VAT per person for us to carry out the above checks.
Brochures
The Crescent floor planProperty DetailsContact Agent- COUNCIL TAXA payment made to your local authority in order to pay for local services like schools, libraries, and refuse collection. The amount you pay depends on the value of the property.Read more about council Tax in our glossary page.
- Band: G
- PARKINGDetails of how and where vehicles can be parked, and any associated costs.Read more about parking in our glossary page.
- Driveway
- GARDENA property has access to an outdoor space, which could be private or shared.
- Yes
- ACCESSIBILITYHow a property has been adapted to meet the needs of vulnerable or disabled individuals.Read more about accessibility in our glossary page.
- Ask agent
The Crescent, Solihull
Add an important place to see how long it'd take to get there from our property listings.
__mins driving to your place
Get an instant, personalised result:
- Show sellers you’re serious
- Secure viewings faster with agents
- No impact on your credit score
Your mortgage
Notes
Staying secure when looking for property
Ensure you're up to date with our latest advice on how to avoid fraud or scams when looking for property online.
Visit our security centre to find out moreDisclaimer - Property reference 34242034. The information displayed about this property comprises a property advertisement. Rightmove.co.uk makes no warranty as to the accuracy or completeness of the advertisement or any linked or associated information, and Rightmove has no control over the content. This property advertisement does not constitute property particulars. The information is provided and maintained by EB&P, Knowle. Please contact the selling agent or developer directly to obtain any information which may be available under the terms of The Energy Performance of Buildings (Certificates and Inspections) (England and Wales) Regulations 2007 or the Home Report if in relation to a residential property in Scotland.
*This is the average speed from the provider with the fastest broadband package available at this postcode. The average speed displayed is based on the download speeds of at least 50% of customers at peak time (8pm to 10pm). Fibre/cable services at the postcode are subject to availability and may differ between properties within a postcode. Speeds can be affected by a range of technical and environmental factors. The speed at the property may be lower than that listed above. You can check the estimated speed and confirm availability to a property prior to purchasing on the broadband provider's website. Providers may increase charges. The information is provided and maintained by Decision Technologies Limited. **This is indicative only and based on a 2-person household with multiple devices and simultaneous usage. Broadband performance is affected by multiple factors including number of occupants and devices, simultaneous usage, router range etc. For more information speak to your broadband provider.
Map data ©OpenStreetMap contributors.






