Live/Work Building Plot - Bouts Lane, Redditch, B96 6JX
- PROPERTY TYPE
Land
- SIZE
Ask agent
Key features
- Live/Work Plot
- Planning Granted
- Easy access to transport links
- Prime Worcestershire location on sought after Bouts Lane near to Inkberrow
- WHAT3WORDS: ///dining.stunner.relocated
Description
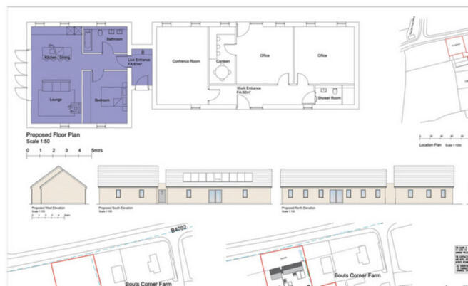
With planning permission already granted, you have the freedom to shape the space according to your needs to build this property situated on Bouts Lane, a desirable area in Redditch known for its convenient transport links and proximity to the charming village of Inkberrow.
The property features one bedroom and two baths, providing ample space for comfortable living. Its strategic location ensures easy access to major transport routes, making commuting straightforward. This is an ideal spot for those who appreciate both the tranquillity of Worcestershire and the convenience of nearby urban amenities.
Seize this chance to build a property in a prime Worcestershire location at an affordable price point. Act quickly to secure this unique opportunity on Bouts Lane before it's gone.
Agent's note: clients currently working with architect to obtain access to site independantly from the main road.
#WelcomeHome
Brochures
Brochure 1Brochure 2Live/Work Building Plot - Bouts Lane, Redditch, B96 6JX
NEAREST STATIONS
Distances are straight line measurements from the centre of the postcode- Redditch Station4.9 miles
Notes
Disclaimer - Property reference RX650239. The information displayed about this property comprises a property advertisement. Rightmove.co.uk makes no warranty as to the accuracy or completeness of the advertisement or any linked or associated information, and Rightmove has no control over the content. This property advertisement does not constitute property particulars. The information is provided and maintained by FreeAgent247.com HQ, Worcestershire. Please contact the selling agent or developer directly to obtain any information which may be available under the terms of The Energy Performance of Buildings (Certificates and Inspections) (England and Wales) Regulations 2007 or the Home Report if in relation to a residential property in Scotland.
Map data ©OpenStreetMap contributors.





