Warehouse to lease
Crown Trading Centre, Hayes, Hayes, UB3
- SIZE AVAILABLE
1,496 sq ft
139 sq m
- SECTOR
Warehouse to lease
Lease details
- Lease available date:
- Now
Key features
- Easy travel
- Close to town centre
- Electric Roller Shutters
Description
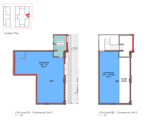
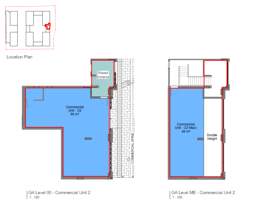
Size: Approx. 139sqm (1,496 sqft)
Flexible Use Class – Suitable for most retail and commercial purposes
Water Connection
Excellent Location – Moments from Hayes Town Centre
Strong Transport Links – Close to M4/M25 and Hayes & Harlington Station
Electricity - 3 phase electric - 120 AMP
Parking – 1 Allocated parking spaces on-site for the incoming tenant
Location:
Crown Trading Centre is ideally situated on Clayton Road in Hayes, in the heart of a busy commercial and industrial hub. The location offers excellent connectivity, with close proximity to the A312, M4, and M25, providing direct routes to Central London, Heathrow Airport, and surrounding areas.
The area is well-served by public transport, with Hayes & Harlington Station just a short drive away, offering access to the Elizabeth Line (Crossrail) for fast links to the West End and Canary Wharf.
Surrounded by a mix of light industrial units, retail outlets, and growing residential developments, this location sees strong daily traffic from both businesses and local resident commercial uses.
Suitable Use:
Shops – clothing, electronics, convenience stores, supermarkets, etc.
Cafés and Restaurants – for eat-in or takeaway (subject to licensing).
Showrooms – e.g. furniture/kitchen showrooms.
Barbershops / Hair & Beauty Salons.
Private Fitness Studios
Offices – for professional services e.g. - estate agents, solicitors
Clinics / Medical Use – dentists, physiotherapists, or health practitioners.
Workshops or Studios – such as art, photography, tailoring, or crafts.
Financial & Professional Services – banks, travel agents, etc.
Educational or Training Centres – tutoring, small classrooms, etc.
High Footfall & Residential Growth :
Located within a densely populated residential area with a number of new-build developments, local high schools, and community facilities nearby, this unit offers excellent visibility and steady local traffic.
A new cinema development underway in the vicinity will further enhance visitor numbers and commercial appeal. This is an outstanding opportunity for growing businesses looking for a high-potential, flexible retail unit in a thriving area
Crown Trading Centre, Hayes, Hayes, UB3
NEAREST STATIONS
Distances are straight line measurements from the centre of the postcode- Hayes & Harlington Station0.3 miles
- Southall Station2.0 miles
- West Drayton Station2.1 miles
Notes
Disclaimer - Property reference 1315. The information displayed about this property comprises a property advertisement. Rightmove.co.uk makes no warranty as to the accuracy or completeness of the advertisement or any linked or associated information, and Rightmove has no control over the content. This property advertisement does not constitute property particulars. The information is provided and maintained by M3M Real Estate, Hayes. Please contact the selling agent or developer directly to obtain any information which may be available under the terms of The Energy Performance of Buildings (Certificates and Inspections) (England and Wales) Regulations 2007 or the Home Report if in relation to a residential property in Scotland.
Map data ©OpenStreetMap contributors.




