
Clarence Street, Edinburgh

- PROPERTY TYPE
Apartment
- BEDROOMS
3
- BATHROOMS
2
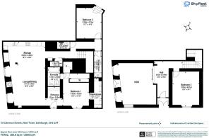
- SIZE
2,000 sq ft
186 sq m
- TENUREDescribes how you own a property. There are different types of tenure - freehold, leasehold, and commonhold.Read more about tenure in our glossary page.
Ask agent
Description
Arranged over the lower ground and basement levels, it combines dramatic spatial design with natural light, clean lines, and an abundance of contemporary detail.
Entered via its own main door, the accommodation is centred around a striking double-height atrium, creating a wonderful sense of volume and openness. The entrance vestibule leads into a bright reception hall with a gallery overlooking the spectacular open-plan living area below, providing superb wall space for artwork.
On this upper level there is a well-proportioned double bedroom with single window.
Descending to the lower floor reveals the home’s most impressive feature - a spectacular open-plan kitchen, living and dining space. The area is anchored by a contemporary gas fire and illuminated by high-level windows that flood the space with natural light. The fully integrated kitchen is sleek and modern, featuring high-quality appliances, excellent storage, and contemporary design touches that complement the home’s architectural style.
Also on this lower level is the principal bedroom suite, complete with dressing room and a luxurious en-suite bathroom, beautifully finished to a high standard. A further double bedroom enjoys direct access to a shared garden, and the accommodation is completed by a shower room, a separate WC, a utility cupboard with stacked washer and dryer, and a dedicated workspace ideal for home working.
The property has been freshly decorated throughout and features engineered wooden floors, modern lighting, and architectural detailing that enhance its contemporary aesthetic.
Additional benefits include four lined under-pavement cellars, providing excellent storage.
Extending to approximately 2,000 square feet, this is a truly unique and rarely available home, offering a strikingly modern aesthetic in the heart of urban Stockbridge - a combination that is exceptionally hard to find.
EPC: D
Council Tax Band: E
Tenure: Freehold
Viewing by appointment only.
EPC Rating: C
Council Tax Band: E
- COUNCIL TAXA payment made to your local authority in order to pay for local services like schools, libraries, and refuse collection. The amount you pay depends on the value of the property.Read more about council Tax in our glossary page.
- Band: E
- PARKINGDetails of how and where vehicles can be parked, and any associated costs.Read more about parking in our glossary page.
- Ask agent
- GARDENA property has access to an outdoor space, which could be private or shared.
- Yes
- ACCESSIBILITYHow a property has been adapted to meet the needs of vulnerable or disabled individuals.Read more about accessibility in our glossary page.
- Ask agent
Clarence Street, Edinburgh
Add an important place to see how long it'd take to get there from our property listings.
__mins driving to your place
Get an instant, personalised result:
- Show sellers you’re serious
- Secure viewings faster with agents
- No impact on your credit score
Your mortgage
Notes
Staying secure when looking for property
Ensure you're up to date with our latest advice on how to avoid fraud or scams when looking for property online.
Visit our security centre to find out moreDisclaimer - Property reference PER241127. The information displayed about this property comprises a property advertisement. Rightmove.co.uk makes no warranty as to the accuracy or completeness of the advertisement or any linked or associated information, and Rightmove has no control over the content. This property advertisement does not constitute property particulars. The information is provided and maintained by Rettie, Edinburgh. Please contact the selling agent or developer directly to obtain any information which may be available under the terms of The Energy Performance of Buildings (Certificates and Inspections) (England and Wales) Regulations 2007 or the Home Report if in relation to a residential property in Scotland.
*This is the average speed from the provider with the fastest broadband package available at this postcode. The average speed displayed is based on the download speeds of at least 50% of customers at peak time (8pm to 10pm). Fibre/cable services at the postcode are subject to availability and may differ between properties within a postcode. Speeds can be affected by a range of technical and environmental factors. The speed at the property may be lower than that listed above. You can check the estimated speed and confirm availability to a property prior to purchasing on the broadband provider's website. Providers may increase charges. The information is provided and maintained by Decision Technologies Limited. **This is indicative only and based on a 2-person household with multiple devices and simultaneous usage. Broadband performance is affected by multiple factors including number of occupants and devices, simultaneous usage, router range etc. For more information speak to your broadband provider.
Map data ©OpenStreetMap contributors.








