
Apartment 2504, Symphony Park, Manchester, Greater Manchester, M1

Letting details
- Let available date:
- Ask agent
- Deposit:
- £0A deposit provides security for a landlord against damage, or unpaid rent by a tenant.Read more about deposit in our glossary page.
- Min. Tenancy:
- Ask agent How long the landlord offers to let the property for.Read more about tenancy length in our glossary page.
- Let type:
- Long term
- Furnish type:
- Furnished
- Council Tax:
- Ask agent
This property is Built For Renters.
- PROPERTY TYPE
Apartment
- BEDROOMS
3
- BATHROOMS
3
- SIZE
90 sq ft
8 sq m
Key features
- Zero Deposit
- Utility bills included
- 24-hour concerige
- Pet friendly
- Gym & Studio
- Private bookable dining spaces
- Coworking and Bookable workspaces
- Resident Bar - Lounge.35
- Resident event & experiences
- Live in one of Manchester's most exciting districts
Description
At uhaus, we're redesigning how you live in the city. Apartments and spaces created to transform your work-life balance, with services that take care of the finer details so you can enjoy more of each day effortlessly.
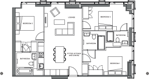
TRIO APARTMENT
Appreciate the open plan kitchen, living and dining space and the three beautiful bedrooms; each with their own generously sized en-suite bathrooms.
Explore the crafted apartment options we offer; All spacious enough to welcome a large three-seater sofa. The quintessential space for unwinding after a busy day, or night in with friends.
All three bedrooms are large enough to comfortably feature a king-sized bed with plenty of surrounding space. With storage options and high specification blackout blinds. Two en-suite bathrooms offer a tempting rainfall shower and the other offers the option of an opulent soak in a luxurious bath.
UNMATCHED SERVICES AND SPACES
From the moment you decide uhaus is where you belong, you can relax knowing the finer details are taken care of.
Included:
Utility bills
No deposit
24-hour concierge
Private bookable dining spaces
Bookable workspaces & equipment
Gym & Studio
Resident events & experiences
Pet friendly
Unlimited coffee & tea
WORKSPACES
Living at uhaus means more than just a home. It's a lifestyle, designed around you. From the moment you move in, you'll have access to a curated collection of amenities and services that elevate daily living.
Included:
Breakout spaces
Superfast WiFi
Phone booths
Meeting booths
Kitchen hub
Unlimited coffee & tea
Desktop monitors
Printing
Workspace concierge
When it's time to unwind, step into light-filled resident lounges, four outdoor terraces, or book a private dining space. For leisure, you'll also find pool tables, a TV lounge and a snack bar.
LOUNGE.35
A hidden gem 35 storeys high, Lounge.35 offers breathtaking views across Manchester. By day, it's a serene space to read, work, or recharge. By night, it transforms into a softly lit private bar, serving cocktails, mocktails, and craft beers Thursday to Saturday the ultimate residents' retreat.
RESIDENT EVENTS & EXPERIENCES
Life at uhaus comes with a calendar of curated experiences from supper clubs, comedy nights and live music to wellness workshops and networking socials. Join in or take time out; the choice is always yours.
LIVE IN ONE OF MANCHESTER'S MOST EXCITING DISTRICTS
Our M1 postcode puts you in the heart of Manchester, surrounded by the city's best dining, nightlife, and culture. Symphony Park sits just outside your door a leafy green oasis while restaurants, shopping districts and St. Peter's Square are all within walking distance.
With Oxford Road station only two minutes away and Piccadilly ten minutes on foot, travel connections are effortless. At uhaus, you're connected to everything the city has to offer, while enjoying your own sanctuary in the centre of it all.
VIEWINGS AVAILABLE
Explore uhaus for yourself with in-person and virtual viewings by appointment. Discover a new way to rent in Manchester: effortless and elevated.
- COUNCIL TAXA payment made to your local authority in order to pay for local services like schools, libraries, and refuse collection. The amount you pay depends on the value of the property.Read more about council Tax in our glossary page.
- Ask agent
- PARKINGDetails of how and where vehicles can be parked, and any associated costs.Read more about parking in our glossary page.
- Ask agent
- GARDENA property has access to an outdoor space, which could be private or shared.
- Yes
- ACCESSIBILITYHow a property has been adapted to meet the needs of vulnerable or disabled individuals.Read more about accessibility in our glossary page.
- Ask agent
Energy performance certificate - ask agent

On-site perks of living at this Built for Renters development
Additional costs may apply for some services – please check the full property description above.
- Bills included
- Zero deposit
- Pets allowed
- Concierge
- WiFi included
- Residents lounge
- 24hr maintenance
- Balcony
- BBQ areas
- Bike storage
- Cleaning services
- Communal areas
- Exclusive community
- Fully managed
- Gym
- Long term contracts
- On site maintenance
- Private dining room
- Professional management
- Roof terrace
- Security
- Services included
- Shared workspace
- Social activities
- Transport links
- Well connected
Find out what residents think about this development
Apartment 2504, Symphony Park, Manchester, Greater Manchester, M1
Add an important place to see how long it'd take to get there from our property listings.
__mins driving to your place
Notes
See how residents rate this development
Write a reviewExperience
4.5
Value
4.3
Location
4.8
Facilities
4.5
Management
4.4
Design
4.6
Showing 5 most recent reviews
How we verify reviews
Reviews marked with a green tick show tenants who's residency we have been able to verify. Those that could not be confirmed are marked 'unverified'
- uhaus, M1
Verified resident
HomeViews has verified the reviewer as a resident of this development.
Oct 2025
Reviewer was offered an incentive for an honest review, regardless of rating
5Please tell us about the good and bad aspects of living in your local area:
Our flat is by the street so it can get really noisy some nights if we leave the windows open. Can constantly hear the train but thats ok. No parking available is biggest bummer.
How has the building management responded to any problems or issues you have raised:
Quick acknowledgement and gets it fixed in max week or two
Please share one thing (or more) which you wish you had known before you moved in:
Rent hikes are the biggest bummer! Can’t continue to stay as it can get alot
Reviewer was offered an incentive for an honest review, regardless of rating
- uhaus, M1
Verified resident
HomeViews has verified the reviewer as a resident of this development.
Oct 2025
Reviewer was offered an incentive for an honest review, regardless of rating
5Please tell us about the good and bad aspects of living in your local area:
Living in this area is genuinely enjoyable — everything I need is conveniently close by. There’s a great range of shops, cosy cafés, and restaurants offering diverse cuisines, all within walking distance. The open spaces and parks nearby provide a calm escape, perfect for morning walks or relaxing outdoors. Public transport links are excellent, with frequent buses and trains making travel around the city easy and reliable. My street is peaceful and well-maintained, with regular bin collections, and minimal noise or disruption. Only bad aspect is we don't have a parking space for our own building but its okay as we have a lot of good parking spaces nearby. It’s a comfortable and friendly place to live.
How has the building management responded to any problems or issues you have raised:
The building management team has been very responsive and helpful whenever I’ve raised any issues. Repairs and maintenance requests are handled quickly, and they’re always open to suggestions for improvements in the rooms and shared spaces.
Please share one thing (or more) which you wish you had known before you moved in:
I wish I had known earlier about how active and lively the community here is — its a great place to meet new people through the shared spaces and events . I’d also advise new residents to explore the amenities fully, like the gym and working spaces, and also the events they organize as they really enhance the living experience.
Reviewer was offered an incentive for an honest review, regardless of rating
- uhaus, M1
Verified resident
HomeViews has verified the reviewer as a resident of this development.
Oct 2025
Reviewer was offered an incentive for an honest review, regardless of rating
4Please tell us about the good and bad aspects of living in your local area:
I like living in the area, it can be a bit noisy due to students but it rarely affects us as we are on the 10th floor. Some works start really early on a couple of occasions. So that wasn't great but overall it is good.
How has the building management responded to any problems or issues you have raised:
It has responded OK, we have had quite a few problems whilst being in the building when we moved in. E.g. the move in process was horrendous and nothing was really done about it. We were expected to swallow the inconvenience and for myself I lost half a days work due to this as there was 0 help during this process and no trolleys to take stuff to our apartment. Also the cleaning wasn't great when we had it so we stopped doing it.
Please share one thing (or more) which you wish you had known before you moved in:
The events are impossible to do. They are always no tickets. Workspaces are really helpful.
Reviewer was offered an incentive for an honest review, regardless of rating
- uhaus, M1
Verified resident
HomeViews has verified the reviewer as a resident of this development.
Oct 2025
Reviewer was offered an incentive for an honest review, regardless of rating
3Please tell us about the good and bad aspects of living in your local area:
Lots of restaurants, takeaways and food shops within walking distance. Limited car parking but that’s to be expected in the city centre. Plenty of transport links around Manchester. However, it is a very students area so can be loud.
How has the building management responded to any problems or issues you have raised:
They are helpful and send out documents quickly. Repairs are also dealt with fast. But the housekeeping issue needs fixing.
Please share one thing (or more) which you wish you had known before you moved in:
That the majority of tenants are students, they no longer offer the move in service despite it being advertised, dogs are not in fact allowed in communal spaces on leads, and the housekeeping service is basically none existent.
Reviewer was offered an incentive for an honest review, regardless of rating
- uhaus, M1
Verified resident
HomeViews has verified the reviewer as a resident of this development.
Oct 2025
Reviewer was offered an incentive for an honest review, regardless of rating
5Please tell us about the good and bad aspects of living in your local area:
Uhaus has the perfect location. Every shop you could need is located within a five minute walk. There’s an Asda just outside the front door. Starbucks and cafe Nero are a 2 minute walk away. There’s even a post office. The night life nearby is great with lots of bars, but my apartment is quiet as can be! There are many bus stops nearby - 4 to be exact! So it’s safe to say you can get to anywhere via the public transport lines in a jiffy. This area is also a hot spot for Ubers for you’re never waiting too long. The entire development is very clean! Not a speck of trash outside on the floor. And no loitering! I was so happy to learn that Circle Square is not a hotspot for loiterers. This makes me feel safe at all times going to and from my apartment.
How has the building management responded to any problems or issues you have raised:
I usually receive responses quite quickly and I see messages sent out all the time so I know they are very aware of what goes on in the building and are committed to keeping everything 5 star
Please share one thing (or more) which you wish you had known before you moved in:
I wish I knew there were garbage chutes on each floor. I would’ve moved in quicker!
Reviewer was offered an incentive for an honest review, regardless of rating
Staying secure when looking for property
Ensure you're up to date with our latest advice on how to avoid fraud or scams when looking for property online.
Visit our security centre to find out moreDisclaimer - Property reference North2504. The information displayed about this property comprises a property advertisement. Rightmove.co.uk makes no warranty as to the accuracy or completeness of the advertisement or any linked or associated information, and Rightmove has no control over the content. This property advertisement does not constitute property particulars. The information is provided and maintained by uhaus, uhaus. Please contact the selling agent or developer directly to obtain any information which may be available under the terms of The Energy Performance of Buildings (Certificates and Inspections) (England and Wales) Regulations 2007 or the Home Report if in relation to a residential property in Scotland.
*This is the average speed from the provider with the fastest broadband package available at this postcode. The average speed displayed is based on the download speeds of at least 50% of customers at peak time (8pm to 10pm). Fibre/cable services at the postcode are subject to availability and may differ between properties within a postcode. Speeds can be affected by a range of technical and environmental factors. The speed at the property may be lower than that listed above. You can check the estimated speed and confirm availability to a property prior to purchasing on the broadband provider's website. Providers may increase charges. The information is provided and maintained by Decision Technologies Limited. **This is indicative only and based on a 2-person household with multiple devices and simultaneous usage. Broadband performance is affected by multiple factors including number of occupants and devices, simultaneous usage, router range etc. For more information speak to your broadband provider.
Map data ©OpenStreetMap contributors.





