
7 Wistow Close, Kilby, LE18

- PROPERTY TYPE
Semi-Detached
- BEDROOMS
2
- BATHROOMS
1
- SIZE
754 sq ft
70 sq m
- TENUREDescribes how you own a property. There are different types of tenure - freehold, leasehold, and commonhold.Read more about tenure in our glossary page.
Freehold
Key features
- Well appointed semi detached home in tucked away location.
- Edge of favoured village.
- Ample driveway parking.
- Downstairs cloaks/wc.
- Spacious breakfast kitchen.
- Generous lounge/dining room.
- Two double bedrooms.
- Modern bathroom with white suite.
- Well stocked gardens.
- Close by country walks.
Description
The well served village of Kilby is located approximately seven miles to the South East of Leicester whilst being in close proximity to the villages of Kibworth, Great Glen and Fleckney and the towns of Wigston and Market Harborough with Market Harborough providing trains to London St Pancras in an hour.
This favoured village benefits from the renowned St Marys Church of England primary school, the Dog and Gun public house, village park and church.
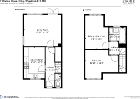
The light and airy accommodation includes a welcoming entrance hall giving access to a useful cloaks/wc fitted with a modern white suite.
The breakfast kitchen is fitted with a variety of base and eye level units providing ample worktop surfaces with tiled splashbacks, sink and drainer, oven, gas hob and canopied extractor, integrated dishwasher and fridge/freezer, plumbing for washing machine, window to front and having room for breakfast table.
The generously proportioned rear lounge benefits from French doors to garden and affords additional room for a dining table.
To the first floor are two double bedrooms complimented by a modern bathroom fitted with a crisp white suite.
Outside there is driveway parking for two vehicles whilst the rear can be approached via a gated side access and features well stocked borders surrounding an astro turf lawn.
- COUNCIL TAXA payment made to your local authority in order to pay for local services like schools, libraries, and refuse collection. The amount you pay depends on the value of the property.Read more about council Tax in our glossary page.
- Ask agent
- PARKINGDetails of how and where vehicles can be parked, and any associated costs.Read more about parking in our glossary page.
- Yes
- GARDENA property has access to an outdoor space, which could be private or shared.
- Yes
- ACCESSIBILITYHow a property has been adapted to meet the needs of vulnerable or disabled individuals.Read more about accessibility in our glossary page.
- Ask agent
Energy performance certificate - ask agent
7 Wistow Close, Kilby, LE18
Add an important place to see how long it'd take to get there from our property listings.
__mins driving to your place
Get an instant, personalised result:
- Show sellers you’re serious
- Secure viewings faster with agents
- No impact on your credit score
Your mortgage
Notes
Staying secure when looking for property
Ensure you're up to date with our latest advice on how to avoid fraud or scams when looking for property online.
Visit our security centre to find out moreDisclaimer - Property reference rmwistowclose. The information displayed about this property comprises a property advertisement. Rightmove.co.uk makes no warranty as to the accuracy or completeness of the advertisement or any linked or associated information, and Rightmove has no control over the content. This property advertisement does not constitute property particulars. The information is provided and maintained by Adore Fine Homes Limited, Leicester. Please contact the selling agent or developer directly to obtain any information which may be available under the terms of The Energy Performance of Buildings (Certificates and Inspections) (England and Wales) Regulations 2007 or the Home Report if in relation to a residential property in Scotland.
*This is the average speed from the provider with the fastest broadband package available at this postcode. The average speed displayed is based on the download speeds of at least 50% of customers at peak time (8pm to 10pm). Fibre/cable services at the postcode are subject to availability and may differ between properties within a postcode. Speeds can be affected by a range of technical and environmental factors. The speed at the property may be lower than that listed above. You can check the estimated speed and confirm availability to a property prior to purchasing on the broadband provider's website. Providers may increase charges. The information is provided and maintained by Decision Technologies Limited. **This is indicative only and based on a 2-person household with multiple devices and simultaneous usage. Broadband performance is affected by multiple factors including number of occupants and devices, simultaneous usage, router range etc. For more information speak to your broadband provider.
Map data ©OpenStreetMap contributors.





