3 bedroom terraced house for sale
11 Ann Street, Kendal

- PROPERTY TYPE
Terraced
- BEDROOMS
3
- BATHROOMS
1
- SIZE
936 sq ft
87 sq m
- TENUREDescribes how you own a property. There are different types of tenure - freehold, leasehold, and commonhold.Read more about tenure in our glossary page.
Freehold
Key features
- Charming mid terraced property, ideal for first time buyers or as a rental investment opportunity
- Well presented throughout with a warm and welcoming feel
- Dining room and fitted kitchen on the ground floor, offering space for family dining and entertaining
- Three comfortable bedrooms on the first floor, providing flexibility for family, guests, or home working
- Built in shelved storage cupboard on the first floor landing for added practicality
- Modern family bathroom on the first floor with a three piece suite
- Second floor sitting room with a character living flame gas stove, oak surround mantle, ceramic tiled hearth, and oak flooring
- Communal rear yard with private store, perfect for outdoor storage or seating
- On street permit parking available nearby for residents
- Conveniently located close to Kendal’s town centre amenities, local transport links, the M6 motorway, and the Lake District National Park
Description
This charming mid terraced home offers character, comfort, and versatility, making it an ideal choice for first time buyers or investors. Perfectly positioned within easy reach of Kendal’s town centre, the property enjoys convenient access to local shops, transport links, the M6 motorway, and the Lake District National Park.
The ground floor features a bright dining room that provides an inviting space for family meals or entertaining, leading through to a well fitted kitchen that offers both practicality and charm. Together, these rooms create a warm and sociable living area that forms the heart of the home.
On the first floor are three comfortable bedrooms, offering flexibility for family, guests, or home working. A built in shelved storage cupboard on the landing provides useful additional space, while the modern family bathroom includes a three piece suite designed for everyday comfort and convenience.
The second floor is home to a characterful sitting room, a cosy and relaxing space that features a living flame gas stove with an oak surround mantle, ceramic tiled hearth, and beautiful oak flooring, creating a perfect spot to unwind at the end of the day.
Outside, there is a communal rear yard with a private store, ideal for outdoor storage or seating. On street permit parking is available nearby, adding to the practicality of this well located and appealing home.
Council Tax Band Currently Band B
EPC Rating: C
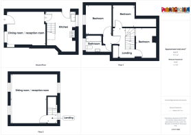
DINING ROOM / RECEPTION ROOM (3.28m x 3.86m)
KITCHEN (3.09m x 4.06m)
LANDING (1.22m x 2.94m)
BEDROOM (2.22m x 3.21m)
BEDROOM (1.99m x 3.08m)
BEDROOM (2.63m x 2.85m)
BATHROOM (1.61m x 1.67m)
LANDING (1m x 1.08m)
SITTING ROOM / RECEPTION ROOM (3.79m x 5.31m)
IDENTIFICATION CHECKS
Should a purchaser(s) have an offer accepted on a property marketed by THW Estate Agents they will need to undertake an identification check. This is done to meet our obligation under Anti Money Laundering Regulations (AML) and is a legal requirement. We use a specialist third party service to verify your identity. The cost of these checks is £43.20 inc. VAT per buyer, which is paid in advance, when an offer is agreed and prior to a sales memorandum being issued. This charge is non-refundable.
SERVICES
Mains electric, mains gas, mains water, mains drainage
DIRECTIONS
From Kendal town centre take the A6 Sandes Avenue crossing the river and passing Kendal Museum on the right. At the mini roundabout turn right into Wildman Street then turn left on to Castle Street and turn left on to Ann Street then take the second right to find number 11 on the left. WHAT3WORDS:///stone.person.boss
Communal Garden
Communal yard with private storage.
Parking - Permit
Permit on street parking.
- COUNCIL TAXA payment made to your local authority in order to pay for local services like schools, libraries, and refuse collection. The amount you pay depends on the value of the property.Read more about council Tax in our glossary page.
- Band: B
- PARKINGDetails of how and where vehicles can be parked, and any associated costs.Read more about parking in our glossary page.
- Permit
- GARDENA property has access to an outdoor space, which could be private or shared.
- Communal garden
- ACCESSIBILITYHow a property has been adapted to meet the needs of vulnerable or disabled individuals.Read more about accessibility in our glossary page.
- Ask agent
11 Ann Street, Kendal
Add an important place to see how long it'd take to get there from our property listings.
__mins driving to your place
Get an instant, personalised result:
- Show sellers you’re serious
- Secure viewings faster with agents
- No impact on your credit score



Your mortgage
Notes
Staying secure when looking for property
Ensure you're up to date with our latest advice on how to avoid fraud or scams when looking for property online.
Visit our security centre to find out moreDisclaimer - Property reference d2894ec6-379b-491b-94c0-65172a0f85d5. The information displayed about this property comprises a property advertisement. Rightmove.co.uk makes no warranty as to the accuracy or completeness of the advertisement or any linked or associated information, and Rightmove has no control over the content. This property advertisement does not constitute property particulars. The information is provided and maintained by Thomson Hayton Winkley Estate Agents, Kendal. Please contact the selling agent or developer directly to obtain any information which may be available under the terms of The Energy Performance of Buildings (Certificates and Inspections) (England and Wales) Regulations 2007 or the Home Report if in relation to a residential property in Scotland.
*This is the average speed from the provider with the fastest broadband package available at this postcode. The average speed displayed is based on the download speeds of at least 50% of customers at peak time (8pm to 10pm). Fibre/cable services at the postcode are subject to availability and may differ between properties within a postcode. Speeds can be affected by a range of technical and environmental factors. The speed at the property may be lower than that listed above. You can check the estimated speed and confirm availability to a property prior to purchasing on the broadband provider's website. Providers may increase charges. The information is provided and maintained by Decision Technologies Limited. **This is indicative only and based on a 2-person household with multiple devices and simultaneous usage. Broadband performance is affected by multiple factors including number of occupants and devices, simultaneous usage, router range etc. For more information speak to your broadband provider.
Map data ©OpenStreetMap contributors.




