St. Marks Place, Windsor, SL4

Letting details
- Let available date:
- Now
- Deposit:
- £4,609A deposit provides security for a landlord against damage, or unpaid rent by a tenant.Read more about deposit in our glossary page.
- Min. Tenancy:
- Ask agent How long the landlord offers to let the property for.Read more about tenancy length in our glossary page.
- Let type:
- Short term
- Furnish type:
- Ask agent
- Council Tax:
- Ask agent
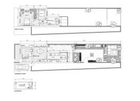
- PROPERTY TYPE
End of Terrace
- BEDROOMS
2
- BATHROOMS
1
- SIZE
1,065 sq ft
99 sq m
Key features
- Freehold
- Off-street parking
- Expertly refurbished
- 69 foot garden
- Central Windsor location
Description
Upon entering through the front door, you are welcomed into the living room, which features a charming fireplace and backlit lighting. The dining area is equipped with concealed shelving, providing ample storage space. The galley-style kitchen opens up to a stunning glass cube, with bi-fold doors framing the garden and a glass ceiling that floods the area with natural light.
On the first floor, there is a bedroom that overlooks the front with double-glazed sash windows and built-in storage. The second bedroom includes a generously sized set of free-standing wardrobes, which the owner is willing to leave behind. The spacious family bathroom is complete with a large glass shower, a freestanding bathtub, a sink, and a full mirrored wall that includes concealed storage behind it.
The lower ground floor currently serves as a yoga room but could easily be used as an office or guest room.
The rear garden, which faces west and measures 69 feet, has been thoughtfully designed with a large seating area ideal for entertaining and barbecues. The property also features side access to the garden through an alleyway and offers off-street parking for one car.
Location:
Just outside the centre of Windsor, it’s possible to walk to many shops, restaurants and both stations. Windsor has a renowned shopping district centered around the pedestrianised Peascod Street and Windsor Yards which includes a Waitrose, Marks & Spencer, The White Company, Barbour, Zara and Daniel department store.
In terms of leisure activities, there is The Long Walk and Windsor Great Park beyond as well as walks along the River Thames. Windsor leisure centre has an indoor pool; Windsor Lawn Tennis Club has three indoor courts; and the local Rugby club is extremely popular at all age groups. Other notable nearby attractions include Windsor Marina, Windsor Racecourse, Legoland and slightly further afield, Guards Polo Club, The Savill Garden, Ascot Racecourse and Wentworth Golf Club.
Windsor itself has an above average number of primary and secondary schools, both state and independent, including Windsor Boys and Girls Schools, Trevelyan, Eton College, Upton House and St. George’s Windsor. This is significantly bolstered by numerous other schools in nearby neighbouring locations.
Windsor is also unique in that it’s served by two different train operators, firstly from Windsor and Eton Central linking to Crossrail and secondly Windsor and Eton Riverside into London Waterloo. The Windsor relief road provides direct access onto the M4 leading to nearby Heathrow and then London. The M25 and M40 can also be reached relatively quickly via the M4.
Quote Reference: 568328
Brochures
Brochure 1Brochure 2- COUNCIL TAXA payment made to your local authority in order to pay for local services like schools, libraries, and refuse collection. The amount you pay depends on the value of the property.Read more about council Tax in our glossary page.
- Ask agent
- PARKINGDetails of how and where vehicles can be parked, and any associated costs.Read more about parking in our glossary page.
- Off street
- GARDENA property has access to an outdoor space, which could be private or shared.
- Yes
- ACCESSIBILITYHow a property has been adapted to meet the needs of vulnerable or disabled individuals.Read more about accessibility in our glossary page.
- Ask agent
St. Marks Place, Windsor, SL4
Add an important place to see how long it'd take to get there from our property listings.
__mins driving to your place
Notes
Staying secure when looking for property
Ensure you're up to date with our latest advice on how to avoid fraud or scams when looking for property online.
Visit our security centre to find out moreDisclaimer - Property reference RX657078. The information displayed about this property comprises a property advertisement. Rightmove.co.uk makes no warranty as to the accuracy or completeness of the advertisement or any linked or associated information, and Rightmove has no control over the content. This property advertisement does not constitute property particulars. The information is provided and maintained by Harding Green, London. Please contact the selling agent or developer directly to obtain any information which may be available under the terms of The Energy Performance of Buildings (Certificates and Inspections) (England and Wales) Regulations 2007 or the Home Report if in relation to a residential property in Scotland.
*This is the average speed from the provider with the fastest broadband package available at this postcode. The average speed displayed is based on the download speeds of at least 50% of customers at peak time (8pm to 10pm). Fibre/cable services at the postcode are subject to availability and may differ between properties within a postcode. Speeds can be affected by a range of technical and environmental factors. The speed at the property may be lower than that listed above. You can check the estimated speed and confirm availability to a property prior to purchasing on the broadband provider's website. Providers may increase charges. The information is provided and maintained by Decision Technologies Limited. **This is indicative only and based on a 2-person household with multiple devices and simultaneous usage. Broadband performance is affected by multiple factors including number of occupants and devices, simultaneous usage, router range etc. For more information speak to your broadband provider.
Map data ©OpenStreetMap contributors.





