Flat 2, 7 Cromwell Road, Bristol, BS6

Letting details
- Let available date:
- 06/07/2026
- Deposit:
- £0A deposit provides security for a landlord against damage, or unpaid rent by a tenant.Read more about deposit in our glossary page.
- Min. Tenancy:
- 12 months How long the landlord offers to let the property for.Read more about tenancy length in our glossary page.
- Furnish type:
- Furnished
- Council Tax:
- Ask agent
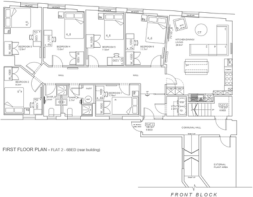
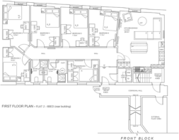
- PROPERTY TYPE
Apartment
- BEDROOMS
6
- BATHROOMS
2
- SIZE
Ask agent
Key features
- BILL PACKAGE AVAILABLE
- MODERN FINISH THROUGHOUT
- £0 DEPOSIT
- MOVE IN 6/7/2026
- PRIME LOCATION
Description
Looking for a roomy, modern student home right in the heart of Bristol?
This 6-bedroom, 2-bathroom apartment on Cromwell Road is perfect for housemates who want space to chill, study, and socialise.
Why You'll Love It:
6 Big Double Bedrooms: Each comes fully furnished with bed, wardrobe, and desk - plenty of room to study, sleep, and relax.
2 Modern Bathrooms: No morning queues here! Both bathrooms come with showers, basins, and WCs.
Huge Living/Dining Area: Perfect for movie nights, group meals, or just hanging out with your housemates.
Fully Fitted Kitchen: Fridge-freezer, oven, hob, microwave, and washer-dryer - everything you need to whip up meals or do laundry with ease.
Smart Layout for Student Life: A great balance of private and communal spaces so everyone can get along (and study in peace).
Bills Made Easy: £19 per week on top of your rent per room covers:
Gas & electricity (fair usage)
Water
High-speed internet
Top Location:
Central & Convenient: Just minutes from Bristol city centre, shops, cafes, and nightlife.
Easy Transport: Close to bus routes and Bristol Temple Meads station - perfect for commuting or weekend trips.
Near Universities: Quick access to the University of Bristol and UWE Bristol by bus or bike.
Parks & Streets to Explore: St. Andrews Park and the buzzing Gloucester Road nearby for study breaks or socialising.
Grab this modern, spacious student apartment and enjoy the perfect mix of comfort, convenience, and community in Bristol!
- COUNCIL TAXA payment made to your local authority in order to pay for local services like schools, libraries, and refuse collection. The amount you pay depends on the value of the property.Read more about council Tax in our glossary page.
- Ask agent
- PARKINGDetails of how and where vehicles can be parked, and any associated costs.Read more about parking in our glossary page.
- Ask agent
- GARDENA property has access to an outdoor space, which could be private or shared.
- Ask agent
- ACCESSIBILITYHow a property has been adapted to meet the needs of vulnerable or disabled individuals.Read more about accessibility in our glossary page.
- Ask agent
Flat 2, 7 Cromwell Road, Bristol, BS6
Add an important place to see how long it'd take to get there from our property listings.
__mins driving to your place
Notes
Staying secure when looking for property
Ensure you're up to date with our latest advice on how to avoid fraud or scams when looking for property online.
Visit our security centre to find out moreDisclaimer - Property reference 27CR. The information displayed about this property comprises a property advertisement. Rightmove.co.uk makes no warranty as to the accuracy or completeness of the advertisement or any linked or associated information, and Rightmove has no control over the content. This property advertisement does not constitute property particulars. The information is provided and maintained by Xeno Property, Bristol. Please contact the selling agent or developer directly to obtain any information which may be available under the terms of The Energy Performance of Buildings (Certificates and Inspections) (England and Wales) Regulations 2007 or the Home Report if in relation to a residential property in Scotland.
*This is the average speed from the provider with the fastest broadband package available at this postcode. The average speed displayed is based on the download speeds of at least 50% of customers at peak time (8pm to 10pm). Fibre/cable services at the postcode are subject to availability and may differ between properties within a postcode. Speeds can be affected by a range of technical and environmental factors. The speed at the property may be lower than that listed above. You can check the estimated speed and confirm availability to a property prior to purchasing on the broadband provider's website. Providers may increase charges. The information is provided and maintained by Decision Technologies Limited. **This is indicative only and based on a 2-person household with multiple devices and simultaneous usage. Broadband performance is affected by multiple factors including number of occupants and devices, simultaneous usage, router range etc. For more information speak to your broadband provider.
Map data ©OpenStreetMap contributors.




