
Little Green Lane, Croxley Green, Rickmansworth, WD3 3JJ

- PROPERTY TYPE
Detached
- BEDROOMS
4
- SIZE
Ask developer
- TENUREDescribes how you own a property. There are different types of tenure - freehold, leasehold, and commonhold.Read more about tenure in our glossary page.
Ask developer
Key features
- Fully integrated kitchen complete with adjacent utility room
- Separate living room to front of the property with bay window
- 4 bedrooms, including a principal bedroom with bespoke fitted wardrobes and en-suite
- Double garage with driveway parking for two cars
- Large private landscaped rear south facing garden
- Excellent transport links to M25 and Croxley Station
- Within walking distance to excellent local schools
Description
The Oak number 159 is one of the four bedroom detached homes, set in the most exclusive cul de sac location in the development. This house has expansive open-plan living over two floors with elegant style and modern comfort for growing families.
Sales Suite Address: Croxley Green, Rickmansworth, WD3 3JJ. Opening Times: open daily, 10:00 - 17:30.
Property Highlights
- Spacious open-plan kitchen / dining / living room
- Four bedrooms including a principal bedroom with bespoke fitted wardrobes and en-suite
- Ample storage solutions for a clutter free environment
- Separate study on the ground floor
- Large private landscaped garden
- Single garage, driveway parking for two cars
- Modern kitchen with fully integrated appliances
- Underfloor heating to ground floor, plus flooring included throughout
- Pre-wired BT & Virgin fibre connection as well as Sky Q connection
Out and about
Millside Grange offers rolling countryside on your doorstep and an excellent range of local amenities. It boasts idyllic village living, while keeping you connected to central London and Watford, making it the perfect choice for those seeking a balanced lifestyle. The village of Croxley Green offers countryside living at its finest. Enjoy charming shops, cosy pubs and restaurants, a pharmacy, bank, post office and a community hub, all situated in and around the village.
Within reach of the development itself, Millside Grange boasts excellent facilities, including:
- The Grove Hotel and Golf Club
- Atria, Watford
- Little Green Junior School
- Miller and Carter
- Watford Leisure Centre
- M&S Simply Foods
- Rickmansworth Secondary School
- Morrisons
Venturing further afield, you will find Rickmansworth and Watford where you will discover the busier city life. Whether you’re looking to shop, dine or relax, Watford and Rickmanworth have you covered. With vibrant entertainment venues, to shopping centres with over 140 shops.
Transportation
- Croxley Underground station is a four-minute drive and Ricksmanworth Underground station is a six-minute drive away, providing quick connections into Central London.
- The M25 is only an eight-minute drive away, while the M1, which takes you into London, is just a twelve-minute drive.
- This development is also a 25 minute drive from London Heathrow Airport for convenient national travel.
Next Steps
Contact our sales team to arrange a viewing and visit your dream home at the award winning Millside Grange development.
External image depicts a computer generated image of the Oak housetype. Internal images depict the four bedroom showhomes, individual layout and specification may vary. Please speak to a member of our sales team for further information.
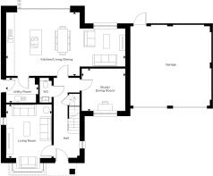
The Oak, number 159 ground floor
Kitchen / Dining / Living - 9.1m x 2.85m (29'10" x 9'4")
Living Room - 4.15m x 2.5m (13'7" x 8'2")
Study / Dining Room - 3.3m x 1.25m (10'10" x 4'1")
The Oak, number 159 first floor
Principal Bedroom - 4.85m x 2.35m (15'11" x 7'9")
Bedroom 2 - 3.95m x 1.35m (13'0" x 4'5")
Bedroom 3 - 4.45m x 2.4m (14'7" x 7'10")
Bedroom 4 - 4.45m x 1.75m (14'7" x 5'9")
Dressing Room - 3.13m x 2.15m (10'3" x 7'1")
- COUNCIL TAXA payment made to your local authority in order to pay for local services like schools, libraries, and refuse collection. The amount you pay depends on the value of the property.Read more about council Tax in our glossary page.
- Band: TBC
- PARKINGDetails of how and where vehicles can be parked, and any associated costs.Read more about parking in our glossary page.
- Yes
- GARDENA property has access to an outdoor space, which could be private or shared.
- Yes
- ACCESSIBILITYHow a property has been adapted to meet the needs of vulnerable or disabled individuals.Read more about accessibility in our glossary page.
- Ask developer
Energy performance certificate - ask developer
- An exciting new neighbourhood of 2, 3, 4 and 5 bedroom sustainable homes.
- Millside Grange benefits from a real community feel, with great local pubs, restaurants and facilities
- Central London can be easily reached in under 45 minutes, with Watford at just 9 minutes.
- The homes at Millside Grange have been designed to blend in with the local architecture, include expansive green spaces and footpaths.
Little Green Lane, Croxley Green, Rickmansworth, WD3 3JJ
Add an important place to see how long it'd take to get there from our property listings.
__mins driving to your place
Get an instant, personalised result:
- Show sellers you’re serious
- Secure viewings faster with agents
- No impact on your credit score
About Hill Residential Limited
The Hill Group is a top 10 housebuilder* and one of the leading developers in London, the home counties, and the South. The company is renowned for its partnership ethos, specialising in the building of distinctive new places and communities where people want to live, work, and socialise.
In its 26th year, this family-owned and operated company has grown to establish itself as the UK's second-largest privately-owned housebuilder, with an impressive and diverse portfolio of projects ranging from landmark, mixed-use regenerations, and inner-city apartment developments to homes in rural communities.
Employing over 950 staff, the company operates from six strategically located regional offices including Bristol and Abingdon to help facilitate growth in the South West and the Midlands, with its head office based in Waltham Abbey, Essex.
Hill completed more than 2,800 homes in the last financial year and has a development pipeline of over 32,000 homes, including 10,200 with planning consent. Around half of its portfolio is in joint ventures to deliver a range of mixed-tenure developments, reflecting Hill’s commitment to partnerships with government, local authorities, housing associations, and private clients.
Since the company was founded in 1999, Hill has won over 500 industry awards, including the esteemed title of WhatHouse? Housebuilder of the Year in 2015, 2020 and 2023. Most recently in 2024, Millside Grange in Croxley Green also won The Standard’s Homes & Property Award for Best Commuter Home.
In addition, Hill’s dedication to delivering the highest quality homes and exceptional customer service has earned the housebuilder its 5-star status in the Home Builders Federation’s annual Customer Satisfaction Survey for the past eight years. Hill is a registered developer with the New Homes Quality Board (NHQB) and follows the New Homes Quality Code (NHQC), a new industry standard to ensure high-quality homes and an exceptional customer experience. With a score of 4.8 out of 5, Hill is also ranked as the number one housebuilder on Trustpilot.
Hill is donating 200 fully equipped modular homes to local authorities and homeless charities as part of a £15 million pledge through its Foundation 200 programme, launched in 2019 to mark Hill’s 20th anniversary.
Follow us on LinkedIn and Instagram @HillGroupUK
For more information, contact The Oracle Group PR Agency on Tel: 020 8394 2821 or hill@oraclepr.co.uk
*The Hill Group was listed within the top 10 of the Top 150 UK Contractors and Housebuilders published by Building.co.uk in December 2024
Your mortgage
Notes
Staying secure when looking for property
Ensure you're up to date with our latest advice on how to avoid fraud or scams when looking for property online.
Visit our security centre to find out moreDisclaimer - Property reference 4_MllsdGrng-Nmbr159. The information displayed about this property comprises a property advertisement. Rightmove.co.uk makes no warranty as to the accuracy or completeness of the advertisement or any linked or associated information, and Rightmove has no control over the content. This property advertisement does not constitute property particulars. The information is provided and maintained by Hill Residential Limited. Please contact the selling agent or developer directly to obtain any information which may be available under the terms of The Energy Performance of Buildings (Certificates and Inspections) (England and Wales) Regulations 2007 or the Home Report if in relation to a residential property in Scotland.
*This is the average speed from the provider with the fastest broadband package available at this postcode. The average speed displayed is based on the download speeds of at least 50% of customers at peak time (8pm to 10pm). Fibre/cable services at the postcode are subject to availability and may differ between properties within a postcode. Speeds can be affected by a range of technical and environmental factors. The speed at the property may be lower than that listed above. You can check the estimated speed and confirm availability to a property prior to purchasing on the broadband provider's website. Providers may increase charges. The information is provided and maintained by Decision Technologies Limited. **This is indicative only and based on a 2-person household with multiple devices and simultaneous usage. Broadband performance is affected by multiple factors including number of occupants and devices, simultaneous usage, router range etc. For more information speak to your broadband provider.
Map data ©OpenStreetMap contributors.






