
The Nook, Holbrook, Belper, Derbyshire

- PROPERTY TYPE
Detached
- BEDROOMS
3
- BATHROOMS
2
- SIZE
1,047 sq ft
97 sq m
- TENUREDescribes how you own a property. There are different types of tenure - freehold, leasehold, and commonhold.Read more about tenure in our glossary page.
Freehold
Key features
- A Characterful Stone Cottage Located In The Heart Of Holbrook Village
- Entrance Hall And Study/Office
- Sitting Room With Original Stone Fireplace And Log Burner
- Dining Kitchen With Range Cooker And Integrated Appliances
- Bathroom With Contemporary Four Piece Suite
- Three Well Proportioned Bedrooms
- En Suite To Bedroom One
- Delightful, Enclosed Low Maintenance Garden
- Driveway For 2-3 Cars And Detached Garage
- Easy Access To Belper, Derby, A6, A38 And M1
Description
The property is located in the heart of the village and is set back behind a brick wall with wrought iron railings. It is constructed of stone beneath a pitched tiled roof with the front elevation having a double fronted appearance with matching double glazed windows and pitch roof central storm porch.
In brief the gas centrally heated accommodation consists of an entrance hall with stairs to first floor, charming lounge with original exposed stone fireplace and log burning stove, a study, a comprehensively fitted dining kitchen with appliances and a contemporary fitted bathroom with freestanding bath and separate shower enclosure. The first floor landing leads to a double bedroom one with en suite and two further bedrooms.
Outside there is a paved front fore garden and a manageable enclosed garden to the side enjoying a South to South Westerly aspect.
The property benefits from a driveway providing car standing spaces for two/three cars and leads to a large brick garage.
The historic village of Holbrook boasts two village inns, reputable primary school, church and shop. It is highly convenient for local villages including Little Eaton (1 mile) and Duffield (2 miles), both providing a wide range of amenities and recreational facilities including bowling, squash, tennis and football, cricket and golf. Derby lies approximately 5 miles to the south and the thriving town of Belper is approximately 3 miles to the north, both offering a more comprehensive range of amenities. Excellent transport links are close by including the A38, A6, M1 and train stations in Belper, Duffield and Derby provide access to London St Pancras and other majot cities..
For those who enjoy walking and cycling the village of Holbrook is situated on the doorstep of the beautiful Derbyshire countryside and easy access to The Peak District
The Location -
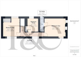
Accommodation On The Ground Floor -
Entrance Hall - 3.08 x 1.85 (10'1" x 6'0") - With entrance door with inset window with leaded finish, a tiled floor, radiator, staircase leading to the first floor and two built-in cloaks/storage cupboards with stripped panelled doors.
Dining Kitchen - 4.96 x 3.19 (16'3" x 10'5") - Comprehensively fitted with a modern range of base cupboards, drawers, eyelevel units and glass fronted display cabinets with a worksurface over incorporating a Belfast sink with mixer tap over. Appliances include a dual fuel range cooker with double electric ovens, grill and a five ring gas hob, splashback and a modern extractor over with inset lighting. In addition there is an integrated refrigerator, freezer and dishwasher. There is a feature tiled floor, inset spotlighting, open shelving, a feature column radiator and a contemporary glass roof light running the far width of the kitchen. Underfloor heating.
Sitting Room - 5.44 x 3.89 (17'10" x 12'9") - With a feature original stone fireplace with stone surround and wooden mantle housing a modern multi-burner stove and raised tiled hearth, oak effect wood flooring, painted beams to the ceiling, a radiator and double glazed gothic style French doors leading onto garden. Having a sealed unit double glazed window to the front and side both with fitted blinds, fitted wall lights and a real feature is the modern glass ceiling to the dining area.
Office/Study - 2.00 x 1.70 (6'6" x 5'6") - With radiator, telephone point and stripped internal panelled door.
Bathroom - 2.71 x 0.78 (8'10" x 2'6") - Appointed with a contemporary four piece suite comprising a free standing bath with modern mixer tap and shower attachment, a built in shower cubicle with glass shower doors and full tiling to the enclosure, a vanity unit with freestanding sink and useful storage beneath and a WC. There is modern tiling to the walls and floor, recessed shelving, a wall mounted mirror, extractor and inset spotlighting. having a modern heated towel rail and a feature slate tiled wall and obscure glass ceiling over the bath. Underfloor heating.
On The First Floor -
Landing - 4.57 x 0.85 (14'11" x 2'9") - With radiator, double glazed window with fitted blind and aspect to front.
Bedroom One - 4.01 x 3.81 (13'1" x 12'5") - With chimney breast with feature character wooden fireplace with cast iron insert, a radiator, two sealed unit double glazed windows with fitted blinds to the front and side elevation.
En Suite - 2.48 x 0.80 (8'1" x 2'7") - Having a three piece suite In white with separate shower cubicle with electric shower, fitted vanity was hand basin with useful storage beneath and a low flush WC. With modern Metro style tiling to the shower enclosure and splashback areas, tile effect flooring, a feature radiator, spotlights to ceiling, sealed unit double glazed obscure window, extractor fan and stripped internal panelled door.
Bedroom Two - 3.26 x 2.90 (10'8" x 9'6") - With fitted built-in double wardrobe with stripped pine doors, a feature radiator, and two double glazed windows ( one with with fitted blinds) to front and rear.
Bedroom Three - 2.78 x 2.13 (9'1" x 6'11") - With built-in cupboard with shelving a providing excellent storage space, a feature radiator and a double glazed window with fitted blind with aspect to rear, Access is provided to the roof space..
Outside - There is an attractive fore garden with brick retaining wall incorporating wrought iron railings and oak gate giving access to the storm pitched tiled porch and entrance door. In addition the fore garden has paving and a side oak access door which leads to the garden.
The cottage enjoys a manageable enclosed garden with stone wall to the surround and raised decking area providing a perfect area for relaxing, dining and entertaining. Having raised beds, an outside tap, power and lighting. the garden enjoys a south to south westerly aspect.
Garage And Driveway - The property benefits from a driveway providing car standing spaces for two to three cars and leads to a large detached garage.
With power and lighting, electric heater, window and opening front doors.
Council Tax Band D -
Brochures
The Nook, Holbrook, Belper, Derbyshire Brochure- COUNCIL TAXA payment made to your local authority in order to pay for local services like schools, libraries, and refuse collection. The amount you pay depends on the value of the property.Read more about council Tax in our glossary page.
- Band: D
- PARKINGDetails of how and where vehicles can be parked, and any associated costs.Read more about parking in our glossary page.
- Yes
- GARDENA property has access to an outdoor space, which could be private or shared.
- Yes
- ACCESSIBILITYHow a property has been adapted to meet the needs of vulnerable or disabled individuals.Read more about accessibility in our glossary page.
- Ask agent
The Nook, Holbrook, Belper, Derbyshire
Add an important place to see how long it'd take to get there from our property listings.
__mins driving to your place
Get an instant, personalised result:
- Show sellers you’re serious
- Secure viewings faster with agents
- No impact on your credit score



Your mortgage
Notes
Staying secure when looking for property
Ensure you're up to date with our latest advice on how to avoid fraud or scams when looking for property online.
Visit our security centre to find out moreDisclaimer - Property reference 34246996. The information displayed about this property comprises a property advertisement. Rightmove.co.uk makes no warranty as to the accuracy or completeness of the advertisement or any linked or associated information, and Rightmove has no control over the content. This property advertisement does not constitute property particulars. The information is provided and maintained by Fletcher & Company, Duffield. Please contact the selling agent or developer directly to obtain any information which may be available under the terms of The Energy Performance of Buildings (Certificates and Inspections) (England and Wales) Regulations 2007 or the Home Report if in relation to a residential property in Scotland.
*This is the average speed from the provider with the fastest broadband package available at this postcode. The average speed displayed is based on the download speeds of at least 50% of customers at peak time (8pm to 10pm). Fibre/cable services at the postcode are subject to availability and may differ between properties within a postcode. Speeds can be affected by a range of technical and environmental factors. The speed at the property may be lower than that listed above. You can check the estimated speed and confirm availability to a property prior to purchasing on the broadband provider's website. Providers may increase charges. The information is provided and maintained by Decision Technologies Limited. **This is indicative only and based on a 2-person household with multiple devices and simultaneous usage. Broadband performance is affected by multiple factors including number of occupants and devices, simultaneous usage, router range etc. For more information speak to your broadband provider.
Map data ©OpenStreetMap contributors.






