70 Downs Valley Road, Brighton, BN2
- PROPERTY TYPE
Plot
- BEDROOMS
3
- BATHROOMS
2
- SIZE
1,012 sq ft
94 sq m
Key features
- Fantastic development opportunity
- Planning approved for new dwelling
- Private off street parking
- Large front and rear gardens
Description
Property number 52069. Enquire through Rightmove's messaging system and we'll respond within 5 minutes, 24/7
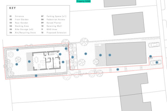
Calling all self builders or developers.
Fantastic opportunity to acquire a large 420 sqm site in the heart of Woodingdean with planning approval for a 3 bedroom 2 bathroom detached house with off street parking.
GIA = 93.5 sqm (or 121 sqm including eves)
GDV = circa £600,000
CIL = £8,209
Good access - there is a minimum of 2m wide access path for plant and material delivery. The side extension of the house fronting Downs Valley Rd has been removed so the project is ready to go.
If you are a self builder and you would like help discharging the planning conditions, producing technical drawings for building control, arranging the installation of new utilities etc, this is all something we can potentially help with.
Planning reference: BH2025/00136
Call or message to arrange a viewing or if you would like the legal pack.
Energy Performance Certificates
EPC 170 Downs Valley Road, Brighton, BN2
NEAREST STATIONS
Distances are straight line measurements from the centre of the postcode- Falmer Station2.3 miles
- Moulsecoomb Station2.6 miles
- London Road (Brighton) Station3.1 miles
Notes
Disclaimer - Property reference 52069. The information displayed about this property comprises a property advertisement. Rightmove.co.uk makes no warranty as to the accuracy or completeness of the advertisement or any linked or associated information, and Rightmove has no control over the content. This property advertisement does not constitute property particulars. The information is provided and maintained by Visum, Nationwide. Please contact the selling agent or developer directly to obtain any information which may be available under the terms of The Energy Performance of Buildings (Certificates and Inspections) (England and Wales) Regulations 2007 or the Home Report if in relation to a residential property in Scotland.
Map data ©OpenStreetMap contributors.






