
Commercial property for sale
Church Lane, Newsome, HD4
- PROPERTY TYPE
Commercial Property
- BEDROOMS
2
- BATHROOMS
1
- SIZE
Ask agent
Key features
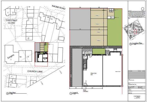
- COMMERCAL PROPERTY WITH ADDITIONAL LAND PLOT
- PLANNING GRANTED FOR FURTHER PREMISES TO BE BUILT
- CURRENT BUSINESS TENANT IN SITU PROVIDING STEADY INCOME
- GOOD SIZED PLOT WITH GARDEN & PARKING
- FANTASTIC INVESTMENT & BUILD OPPORTUNITY
- PLANS FOR BUILD INCLUDED
- COUNCIL TAX BAND A
- EPC RATING D
- Immediate Exchange of Contracts Available
- Sold via Secure Sale
Description
Open House Estate Agents are proud to being this Commercial Property with living quarters on the First Floor and a thriving business on the Ground Floor with a long term tenant attached, in the popular thriving location of NEWSOME.
The Property occupies an end plot with a large plot of land which has PLANNING PERMISSION GRANTED for an additional building of the same dimensions, thus providing an excellent investment opportunity to create an further Commercial/Domestic property next door.
This is really one not to be missed as an Investor seeking a property with a Long Term Commercial Tenant in Situ providing regular income, as well as the permission to build a further investment building on the current plot.
Call us now to arrange your viewing - Our lines are Open 24 hours a day, 7 Days a week to take your call !!
Auctioneers Additional Comments - Pattinson Auction are working in Partnership with the marketing agent on this online auction sale and are referred to below as 'The Auctioneer'.
This auction lot is being sold either under conditional (Modern) or unconditional (Traditional) auction terms and overseen by the auctioneer in partnership with the marketing agent. The property is available to be viewed strictly by appointment only via the Marketing Agent or The Auctioneer. Bids can be made via the Marketing Agents or via The Auctioneers website.
Please be aware that any enquiry, bid or viewing of the subject property will require your details being shared between both any marketing agent and The Auctioneer in order that all matters can be dealt with effectively.
The property is being sold via a transparent online auction.
In order to submit a bid upon any property being marketed by The Auctioneer, all bidders/buyers will be required to adhere to a verification of identity process in accordance with Anti Money Laundering procedures. Bids can be submitted at any time and from anywhere.
Our verification process is in place to ensure that AML procedure are carried out in accordance with the law.
A Legal Pack associated with this particular property is available to view upon request and contains details relevant to the legal documentation enabling all interested parties to make an informed decision prior to bidding. The Legal Pack will also outline the buyers’ obligations and sellers’ commitments. It is strongly advised that you seek the counsel of a solicitor prior to proceeding with any property and/or Land Title purchase. Auctioneers Additional Comments
In order to secure the property and ensure commitment from the seller, upon exchange of contracts the successful bidder will be expected to pay a non-refundable deposit equivalent to 5% of the purchase price of the property. The deposit will be a contribution to the purchase price. A non-refundable reservation fee of up to 6% inc VAT (subject to a minimum of 6,000 inc VAT) is also required to be paid upon agreement of sale. The Reservation Fee is in addition to the agreed purchase price and consideration should be made by the purchaser in relation to any Stamp Duty Land Tax liability associated with overall purchase costs. Both the Marketing Agent and The Auctioneer may believe necessary or beneficial to the customer to pass their details to third party service suppliers, from which a referral fee may be obtained. There is no requirement or indeed obligation to use these recommended suppliers or services.
Brochures
Church Lane, Newsome, HD4COUNCIl TAX BANDEPCChurch Lane, Newsome, HD4
NEAREST STATIONS
Distances are straight line measurements from the centre of the postcode- Berry Brow Station0.7 miles
- Lockwood Station0.8 miles
- Huddersfield Station1.3 miles
Notes
Disclaimer - Property reference 34247322. The information displayed about this property comprises a property advertisement. Rightmove.co.uk makes no warranty as to the accuracy or completeness of the advertisement or any linked or associated information, and Rightmove has no control over the content. This property advertisement does not constitute property particulars. The information is provided and maintained by Open House Estate Agents, Nationwide. Please contact the selling agent or developer directly to obtain any information which may be available under the terms of The Energy Performance of Buildings (Certificates and Inspections) (England and Wales) Regulations 2007 or the Home Report if in relation to a residential property in Scotland.
Auction Fees: The purchase of this property may include associated fees not listed here, as it is to be sold via auction. To find out more about the fees associated with this property please call Open House Estate Agents, Nationwide on 020 3910 1882.
*Guide Price: An indication of a seller's minimum expectation at auction and given as a Guide Price or a range of Guide Prices. This is not necessarily the figure a property will sell for and is subject to change prior to the auction.
Reserve Price: Each auction property will be subject to a Reserve Price below which the property cannot be sold at auction. Normally the Reserve Price will be set within the range of Guide Prices or no more than 10% above a single Guide Price.
Map data ©OpenStreetMap contributors.





