
Warehouse for rent
Rhodaus Town Store, Rhodaus Town, Canterbury
Letting details
- Let available date:
- Ask agent
- Deposit:
- £5,000A deposit provides security for a landlord against damage, or unpaid rent by a tenant.Read more about deposit in our glossary page.
- PROPERTY TYPE
Warehouse
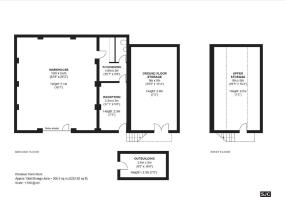
- SIZE
2,224 sq ft
207 sq m
Key features
- Excellent Business Premises
- Parking and direct access onto the Canterbury ring road on the edge of the city
- About 206.6 m2 (2,223.82 ft2)
- Available now
Description
Rhodaus Town Store is in a supremely convenient location on the Canterbury ring road, close to Canterbury East Station.
Rhodaus Town Store comprises about 206.6 m2 (2,223.82 ft2) of flexible storage, with some external storage and parking within the site.
The premises were occupied by a windscreen repair business for many years prior to the current occupier and fall within Use Class “E” which covers the original B1 Light industrial Use or B8 Storage Use. No motor trade use will be considered.
For directions, please see the Location Plan in the brochure. The What3Words coordinates for the mouth of the access roadway are ///fires.trees.send
Viewing: Strictly by appointment with the agents. If you are unsure about any details of this property, please call Nicholas Rooke who has seen the property, prior to your visit. Telephone or email the address given in the brochure.
Brochures
Rhodaus Town Store brochure 17_10_25.pdfBrochureRhodaus Town Store, Rhodaus Town, Canterbury
NEAREST STATIONS
Distances are straight line measurements from the centre of the postcode- Canterbury East Station0.2 miles
- Canterbury West Station0.6 miles
- Sturry Station2.6 miles
Notes
Disclaimer - Property reference 34247878. The information displayed about this property comprises a property advertisement. Rightmove.co.uk makes no warranty as to the accuracy or completeness of the advertisement or any linked or associated information, and Rightmove has no control over the content. This property advertisement does not constitute property particulars. The information is provided and maintained by Finn's, Canterbury. Please contact the selling agent or developer directly to obtain any information which may be available under the terms of The Energy Performance of Buildings (Certificates and Inspections) (England and Wales) Regulations 2007 or the Home Report if in relation to a residential property in Scotland.
Map data ©OpenStreetMap contributors.









