Land for sale
Rectory Meadow, Bradwell, Braintree, Essex, CM77
- SIZE
Ask agent
- SECTOR
Land for sale
Key features
- Planning Permission Granted
- Village Location
- Water Frontage
- Exclusive Development
- Secluded Location
- Good Transport Links
- Excellent Potential GDV
Description
A very exclusive trio of expansive properties with water frontage, we expect these to have a gated entrance and estate fencing to the waterside for security and safety.
The second part is a more modest development with a range of properties from a bungalow through a terrace and two detached houses, all benefiting from access out to the A120 link road between Braintree and Colchester.
The vendor has dealt with the reserved matters making this a development which can commence upon completion.
Predicted GDV £6,450,000
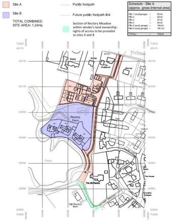
This Exclusive development is split into two parts.
The first part (Plot B) A very exclusive trio of expansive properties with water frontage, we expect to have a gated entrance and estate fencing to the waterside for security and safety.
Planning number 20_01897_OUT
The second part (Plot A) being a more modest development with a range of properties from a bungalow through a terrace and two detached houses.
Planning number 21_01772_OUT
(CGI Imagery for indication of the site only please see planning portal for approved plans)
All of the properties benefit from access out to the A120 link road between Braintree and Colchester giving onward access to Stanstead airport and the ports of Harwich and Felixstowe.
Contact our Residential sales department now for further information or access to get a feel for it yourself.
Brochures
Rectory Meadow, Bradwell, Braintree, Essex, CM77
NEAREST STATIONS
Distances are straight line measurements from the centre of the postcode- Braintree Freeport Station2.2 miles
- Cressing Station2.5 miles
- Braintree Station2.7 miles
Notes
Disclaimer - Property reference DVA250036. The information displayed about this property comprises a property advertisement. Rightmove.co.uk makes no warranty as to the accuracy or completeness of the advertisement or any linked or associated information, and Rightmove has no control over the content. This property advertisement does not constitute property particulars. The information is provided and maintained by Joscelyne Chase Commercial, Essex. Please contact the selling agent or developer directly to obtain any information which may be available under the terms of The Energy Performance of Buildings (Certificates and Inspections) (England and Wales) Regulations 2007 or the Home Report if in relation to a residential property in Scotland.
Map data ©OpenStreetMap contributors.






