Belsize, WD4

- PROPERTY TYPE
 Bungalow
- BEDROOMS
 3
- BATHROOMS
 2
- SIZE
 Ask agent
- TENUREDescribes how you own a property. There are different types of tenure - freehold, leasehold, and commonhold.Read more about tenure in our glossary page.
 Freehold
Key features
- Detached Three Bedroom Bungalow
 - Potential to create a first floor (subject to planning)
 - Generous 1/3 acre Plot
 - Detached Double Garage & Parking
 
Description
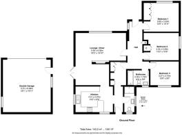
A rare opportunity to acquire a detached three bedroom bungalow built in 1953 and with fantastic potential to create additional first floor accommodation, the neighbouring property has extended their roof and have re pitched it in height. The current owners have lived in the property for 50 years. The property is situated on a plot of 1/3 of an acre with a very wide road frontage and elevated back from the road, set in the centre of the pretty Hamlet of Belsize and located opposite The Plough country pub and backing onto paddock land. The accommodation comprises of Entrance Hall, L shaped open plan Sitting room/ dining room, kitchen breakfast room, three bedrooms a family bathroom and a WC/ shower room. There is off road parking for several vehicles and a detached double garage with light and power which has potential to convert into additional accommodation. NO UPPER CHAIN.
Entrance Hallway
Storage cupboard, radiator, doors leading to
Sitting Room/Dining Room
an L shaped open plan room with window to front, low level radiator, gas fire with a real fire chimney, french doors to the side patio area, air conditioning unit, arch way leading to.
Kitchen Breakfast room
A double aspect room with a breakfast bar, integrated dishwasher, integrated electric oven, Siemens integrated electric hob, integrated fridge/freezer, 1.5 bowl sink, tiled slash back.
Lobby
A range of built in cupboards, plumbing for washing machine and space for tumble dryer, door entrance hallway, door to
Shower room/WC
Double aspect room, low level WC, pedestal wash hand basin, built in cubicle with wall mounted mixer mixer and flexible shower hose attachment, tiled walls extractor fan.
Bedroom One
Window to front. Air conditioning unit, fitted wardrobe, radiator.
Bedroom Two
Window to side, radiator, built in wardrobes.
Bedroom Three
Window to rear. Radiator.
Bathroom
Window to rear, panelled bath with shower screen, close coupled WC, pedestal wash hand basin. Tiled walls. Towel radiator.
Detached Double Garage
Built of cavity construction, With light and power and electric up and over garage doors.
Front garden
The property own's the front grass area that runs parallel with the road, there is a driveway creating off road parking for several cars surrounded by mature trees and shrub beds. There is a lawn area which has potential to create additional off road parking.
Detached Double garage
Having an electrically operated garage door, light and power, of cavity construction, there is potential to covert the garage into an annexe or additional accommodation.
Rear Garden
A triangular shaped lawned rear garden with mature hedges and shrub beds, there is a timber tool shed and a patio area..
Brochures
Brochure 1Brochure 2- COUNCIL TAXA payment made to your local authority in order to pay for local services like schools, libraries, and refuse collection. The amount you pay depends on the value of the property.Read more about council Tax in our glossary page.
 - Ask agent
 - PARKINGDetails of how and where vehicles can be parked, and any associated costs.Read more about parking in our glossary page.
 - Yes
 - GARDENA property has access to an outdoor space, which could be private or shared.
 - Yes
 - ACCESSIBILITYHow a property has been adapted to meet the needs of vulnerable or disabled individuals.Read more about accessibility in our glossary page.
 - Ask agent
 
Belsize, WD4
Add an important place to see how long it'd take to get there from our property listings.
__mins driving to your place
Get an instant, personalised result:
- Show sellers you’re serious
 - Secure viewings faster with agents
 - No impact on your credit score
 
Your mortgage
Notes
Staying secure when looking for property
Ensure you're up to date with our latest advice on how to avoid fraud or scams when looking for property online.
Visit our security centre to find out moreDisclaimer - Property reference 29571632. The information displayed about this property comprises a property advertisement. Rightmove.co.uk makes no warranty as to the accuracy or completeness of the advertisement or any linked or associated information, and Rightmove has no control over the content. This property advertisement does not constitute property particulars. The information is provided and maintained by Whitewood Estates, Bovingdon. Please contact the selling agent or developer directly to obtain any information which may be available under the terms of The Energy Performance of Buildings (Certificates and Inspections) (England and Wales) Regulations 2007 or the Home Report if in relation to a residential property in Scotland.
*This is the average speed from the provider with the fastest broadband package available at this postcode. The average speed displayed is based on the download speeds of at least 50% of customers at peak time (8pm to 10pm). Fibre/cable services at the postcode are subject to availability and may differ between properties within a postcode. Speeds can be affected by a range of technical and environmental factors. The speed at the property may be lower than that listed above. You can check the estimated speed and confirm availability to a property prior to purchasing on the broadband provider's website. Providers may increase charges. The information is provided and maintained by Decision Technologies Limited. **This is indicative only and based on a 2-person household with multiple devices and simultaneous usage. Broadband performance is affected by multiple factors including number of occupants and devices, simultaneous usage, router range etc. For more information speak to your broadband provider.
Map data ©OpenStreetMap contributors.




