Cherokee Road, Weston-super-Mare, BS24 8FW

- PROPERTY TYPE
Terraced
- BEDROOMS
2
- BATHROOMS
1
- SIZE
Ask agent
- TENUREDescribes how you own a property. There are different types of tenure - freehold, leasehold, and commonhold.Read more about tenure in our glossary page.
Ask agent
Key features
- Two Double Bedrooms
- Council Tax Band - B
- EPC - B
- Popular Development
- Ultra Modern Home with 2 parking spaces
- Viewing Highly Recommended
Description
A modern two bedroom home in the heart of Haywood Village
Located in the popular and well established Haywood Village development, this beautifully presented two bedroom terraced home offers stylish, low maintenance living in a convenient location.
Ideal for first time buyers, young families, or investors, the property is within easy reach of local amenities, schools, parks, and excellent transport links.
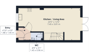
The ground floor features a bright and spacious open plan living area with lounge, kitchen, and dining spaces flowing together - perfect for modern living and entertaining. A downstairs WC adds to the practicality.
Upstairs, you’ll find two generously sized bedrooms and a contemporary family bathroom, all finished to a high standard.
Outside, the private rear garden is well maintained with artificial grass and includes a large patio area, perfect for relaxing or entertaining. It's ideal for those seeking a low maintenance garden. To the front, there's 2 allocated parking space for added convenience.
This home is move-in ready and located in a friendly, modern development with everything you need close by. Early viewing is highly recommended.
These details are for general guidance only and accuracy cannot be guaranteed. Floorplans and measurements are to give a general indication only and are not measured accurate drawings. Purchasers must satisfy themselves on all matters, by inspection or otherwise.
- COUNCIL TAXA payment made to your local authority in order to pay for local services like schools, libraries, and refuse collection. The amount you pay depends on the value of the property.Read more about council Tax in our glossary page.
- Band: B
- PARKINGDetails of how and where vehicles can be parked, and any associated costs.Read more about parking in our glossary page.
- Yes
- GARDENA property has access to an outdoor space, which could be private or shared.
- Yes
- ACCESSIBILITYHow a property has been adapted to meet the needs of vulnerable or disabled individuals.Read more about accessibility in our glossary page.
- Ask agent
Cherokee Road, Weston-super-Mare, BS24 8FW
Add an important place to see how long it'd take to get there from our property listings.
__mins driving to your place
Get an instant, personalised result:
- Show sellers you’re serious
- Secure viewings faster with agents
- No impact on your credit score
Your mortgage
Notes
Staying secure when looking for property
Ensure you're up to date with our latest advice on how to avoid fraud or scams when looking for property online.
Visit our security centre to find out moreDisclaimer - Property reference S1477581. The information displayed about this property comprises a property advertisement. Rightmove.co.uk makes no warranty as to the accuracy or completeness of the advertisement or any linked or associated information, and Rightmove has no control over the content. This property advertisement does not constitute property particulars. The information is provided and maintained by Beewise Property Group, Covering Worle, Weston super-Mare & Surrounding. Please contact the selling agent or developer directly to obtain any information which may be available under the terms of The Energy Performance of Buildings (Certificates and Inspections) (England and Wales) Regulations 2007 or the Home Report if in relation to a residential property in Scotland.
*This is the average speed from the provider with the fastest broadband package available at this postcode. The average speed displayed is based on the download speeds of at least 50% of customers at peak time (8pm to 10pm). Fibre/cable services at the postcode are subject to availability and may differ between properties within a postcode. Speeds can be affected by a range of technical and environmental factors. The speed at the property may be lower than that listed above. You can check the estimated speed and confirm availability to a property prior to purchasing on the broadband provider's website. Providers may increase charges. The information is provided and maintained by Decision Technologies Limited. **This is indicative only and based on a 2-person household with multiple devices and simultaneous usage. Broadband performance is affected by multiple factors including number of occupants and devices, simultaneous usage, router range etc. For more information speak to your broadband provider.
Map data ©OpenStreetMap contributors.





