Parking for sale
Andalucia, Malaga, Benalmádena, Spain
- PROPERTY TYPE
Parking
- SIZE
Ask agent
Key features
- Near Transport
- Amenities Near
- Beachside
- Close to Children Playground
- Close to Sea/Beach
- Close to Golf
- Close to Shops
- Close to Town
- Close to Port
- Close to Schools
Description
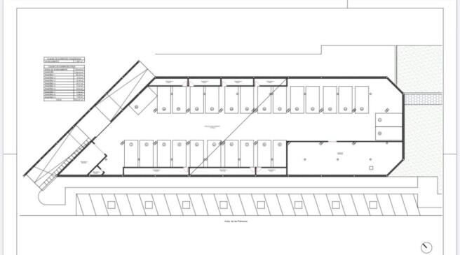
This property, located in Benalmádena Costa, comes with an approved basic project for the development of a parking and storage complex.
Main features:
• Built area: 1,028 m²
• Current use: Parking and storage units
• Approved basic project:
• Planned distribution: 33 parking spaces + 33 storage rooms
Situated in a residential and touristic area with high demand for both storage and parking, this project ensures solid and sustainable profitability — whether through sales or rentals.
Just a few minutes from the beach and surrounded by residential buildings, shops, and hotels, this property represents a tangible, safe, and high-return investment right in the heart of Benalmádena Costa.
Ideal for developers or investors seeking a profitable and low-risk asset in a prime location on the Costa del Sol.
Andalucia, Malaga, Benalmádena, Spain
NEAREST AIRPORTS
Distances are straight line measurements- Málaga(International)7.5 miles
- Gibraltar (North Front)(International)52.7 miles
- Jerez(International)82.5 miles
- Sevilla (San Pablo)(International)91.7 miles
Advice on buying Spanish property
Learn everything you need to know to successfully find and buy a property in Spain.
Notes
This is a property advertisement provided and maintained by Strand Properties, Marbella (reference SPCRM4021) and does not constitute property particulars. Whilst we require advertisers to act with best practice and provide accurate information, we can only publish advertisements in good faith and have not verified any claims or statements or inspected any of the properties, locations or opportunities promoted. Rightmove does not own or control and is not responsible for the properties, opportunities, website content, products or services provided or promoted by third parties and makes no warranties or representations as to the accuracy, completeness, legality, performance or suitability of any of the foregoing. We therefore accept no liability arising from any reliance made by any reader or person to whom this information is made available to. You must perform your own research and seek independent professional advice before making any decision to purchase or invest in overseas property.



