Commercial property for sale
Brimscombe Hill, Brimscombe, Stroud
- PROPERTY TYPE
Commercial Property
- BATHROOMS
3
- SIZE
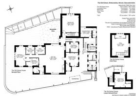
3,261 sq ft
303 sq m
Key features
- Commercial property venture
- Former School House
- Elevated south facing postion
- Extensive reception areas
- 3 Bathroom facilities
- Good outside space
- Lovely views
- The Commercial classification is F1 – Non residential education & training facilities.
Description
Description - Nestled on Brimscombe Hill in the charming village of Brimscombe, Stroud, this substantial former school house presents a unique opportunity for those seeking a versatile commercial property, currently classified as F1 use (non residential education & training facilities). Set in a semi-elevated position, the property boasts stunning south-facing views that enhance its appeal and provide a delightful backdrop for any business venture.
The building's generous size and layout make it suitable for a variety of commercial uses, subject to the necessary clarifications. Its location offers the perfect balance between the convenience of town amenities and the tranquillity of the surrounding countryside, making it an ideal spot for businesses that benefit from both local foot traffic and a serene environment.
With its rich history and character, this property is not just a space; it is a canvas for your entrepreneurial aspirations. Whether you envision a quaint café, a boutique shop, or an office space, the possibilities are endless subject to any necessary planning consents. The surrounding area is known for its vibrant community and picturesque landscapes, ensuring that your business will thrive in this desirable location.
In summary, this former school house on Brimscombe Hill is a remarkable opportunity for those looking to establish a commercial presence in a beautiful setting. With its substantial size, flexible usage options, and stunning views, it is a property that truly deserves your consideration.
Brochures
Brimscombe Hill, Brimscombe, StroudBrimscombe Hill, Brimscombe, Stroud
NEAREST STATIONS
Distances are straight line measurements from the centre of the postcode- Stroud Station2.2 miles
- Stonehouse Station4.2 miles
Notes
Disclaimer - Property reference 34248779. The information displayed about this property comprises a property advertisement. Rightmove.co.uk makes no warranty as to the accuracy or completeness of the advertisement or any linked or associated information, and Rightmove has no control over the content. This property advertisement does not constitute property particulars. The information is provided and maintained by Murrays Estate Agents, Stroud. Please contact the selling agent or developer directly to obtain any information which may be available under the terms of The Energy Performance of Buildings (Certificates and Inspections) (England and Wales) Regulations 2007 or the Home Report if in relation to a residential property in Scotland.
Map data ©OpenStreetMap contributors.





