
Plot for sale
Jean Street, Baddesley Ensor, CV9
- PROPERTY TYPE
Plot
- SIZE
Ask agent
Key features
- 2 x plots (both four bedroom homes)
- Great location for commuters
- Ideal development site
- Example of same style available to view
- Full planning permission
Description
Location - The property is located in the village of Baddesley Ensor, a popular North Warwickshire community offering a blend of village charm and excellent transport connections. The village provides a range of everyday amenities including a convenience store, post office, public house, primary school, and recreational grounds, together with access to open countryside and walking routes. Nearby Atherstone offers a wider selection of shops, restaurants and a mainline railway station, while Tamworth provides extensive retail and leisure facilities. The area is ideal for commuters, with easy access to the A5, M42 and M6 motorway networks.
Distances:
Atherstone – 3 miles
Tamworth – 6 miles
Nuneaton – 8 miles
Lichfield – 12 miles
Birmingham Airport – 18 miles
Description - To be sold as one lot- ideal investment/developer opportunity. Please ask if you require any further information
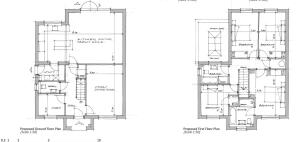
Planning Permission - Full planning permission was granted in February 2011 for the construction of two new dwellings with associated access and parking including garage building. Vehicle access is off Jean Street. Application Ref No; PAP/2022/0094
Viewing Arrangements - Strictly by prior appointment via the agents Howkins & Harrison Tel:01827-718021 Option 1
Plans/Drawings - Howkins & Harrison prepare these plans for reference only. They are not to scale.
Local Authority - North Warwickshire Borough Council - Tel:01827-715341
Agents Note - Additional information about the property, including details of utility providers, is available upon request. Please contact the agent for further details.
Tenure & Possession - The plots are to be sold as freehold with vacant possession being given on completion
Services - Applicants must do their own check on availability and access for all main services.
Important Information - Every care has been taken with the preparation of these Sales Particulars, but complete accuracy cannot be guaranteed. In all cases, buyers should verify matters for themselves. Where property alterations have been undertaken buyers should check that relevant permissions have been obtained. If there is any point, which is of particular importance let us know and we will verify it for you. These Particulars do not constitute a contract or part of a contract. All measurements are approximate. The Fixtures, Fittings, Services & Appliances have not been tested and therefore no guarantee can be given that they are in working order. Photographs are provided for general information and it cannot be inferred that any item shown is included in the sale. Plans are provided for general guidance and are not to scale.
Brochures
Jean Street, Baddesley Ensor, CV9Jean Street, Baddesley Ensor, CV9
NEAREST STATIONS
Distances are straight line measurements from the centre of the postcode- Atherstone Station2.0 miles
- Polesworth Station3.1 miles
- Wilnecote Station3.9 miles
Notes
Disclaimer - Property reference 34021312. The information displayed about this property comprises a property advertisement. Rightmove.co.uk makes no warranty as to the accuracy or completeness of the advertisement or any linked or associated information, and Rightmove has no control over the content. This property advertisement does not constitute property particulars. The information is provided and maintained by Howkins & Harrison LLP, Atherstone. Please contact the selling agent or developer directly to obtain any information which may be available under the terms of The Energy Performance of Buildings (Certificates and Inspections) (England and Wales) Regulations 2007 or the Home Report if in relation to a residential property in Scotland.
Map data ©OpenStreetMap contributors.










