Spiersbridge Business Park, Spiersbridge Avenue, Glasgow, G46
- SIZE AVAILABLE
77,098 sq ft
7,163 sq m
- SECTOR
Business park for sale
Key features
- Fully let business park investment.
- Two terraces of industrial units plus two office buildings.
- Current rental income of £839,000 per annum approximately.
- WAULT average 3 years 1 month.
- Offers over £9.5 million invited.
- 8.28% NIY (after deduction of purchaser's costs).
- Capital rate of £123 per sq.ft.
Description
Spiersbridge Business Park is located within the Thornliebank area of Glasgow and lies approximately six miles south of the city centre within the Council district of East Renfrewshire.
The business park is accessed directly from Spiersbridge Road (the B769) and is approximate 0.5 miles north of its junction with Rouken Glen Road, close to Spiersbridge Roundabout. The nearest motorway junction is Junction 3 of the M77 which links Glasgow City Centre via the M8 Motorway and onwards to the rest of the Central Belt motorway network.
The business park is located within easy walking distance of a typical range of amenities including shops and public transport with regular bus services operating at Spiersbridge Road and Nitshill Road. The closest railway station is at Thornliebank which is within approximately 15 minutes' walk.
DESCRIPTION
The subjects comprise four main properties (constructed early 2007) along with ancillary car parking.
1 Spiersbridge Way
Business Centre
This building comprises a detached 'L' shaped two storey office pavilion providing serviced office accommodation with the benefit of a large surfaced car park adjoining.
Internally, the building comprises a mixture of open plan ancillary office rooms/meeting rooms split over ground and first floor levels with access between the floors from the communal ground floor reception area via a staircase or passenger lift.
There are communal kitchen facilities and breakout areas and male, female and disabled access toilets on both floor levels.
The office rooms are predominantly formed by stud partitioning to full height glazing and incorporating raised access floors with floor boxes. Ceilings are typically suspended acoustic tiles throughout.
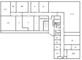
2 Spiersbridge Way
East Renfrewshire Council
This building comprises a detached two storey office pavilion of similar construction to 1 Spiersbridge Way with additional cut and wall glazing to the front elevation.
The building is currently let to East Renfrewshire Council who have been in occupation since February 2007.
4, 6 and 8 Spiersbridge Way
Terrace of Office and Warehouse Hybrid Units
Comprises multi-let two storey terrace formed of three adjoining units, having office accommodation to the front and warehouse areas to the rear.
Access to the rear warehouse space is from a tarmacked surfaced yard/car park whilst the offices have main door entrances at ground level to the front.
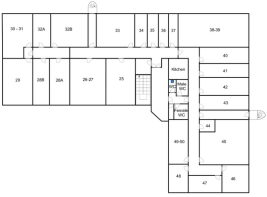
3 - 17 Spiersbridge Way
Terrace of Industrial Units
The property comprises a terrace of multi-let industrial warehouse units with a concrete surfaced yard/parking area to the front.
The terrace is of steel portal frame construction with the front and rear elevations clad with composite metal panelling.
All seven units have roller shutter vehicular access doors with the majority of the units having mezzanines installed.
ACCOMMODATION & FLOOR AREAS
The approximate floor areas of the buildings in accordance with the RICS Code of Measuring Practice, are as follows:-
1 Spiersbridge Way
Floor Description
Ground Office/Business Centre 1,592.55 sq.m. 17,142 sq.ft.
Total: 1,592.55 sq.m. 17,142 sq.ft.
2 Spiersbridge Way
Floor Description
Ground Offices 651.99 sq.m. 7,018 sq.ft.
First Offices 652.92 sq.m. 7,028 sq.ft.
Total 1,304.91 sq.m. 14,046 sq.ft.
4, 6 & 8 Spiersbridge Way
Floor Description
Ground & First Warehouses 2,322.11 sq.m. 24,995 sq.ft.
Total 2,322.11 sq.m. 24,995 sq.ft.
Units 3, 5, 7, 9, 11, 15 & 17 Spiersbridge Way
Floor Description
Ground & First Industrial Warehouses (x7) 1,943.05 sq.m. 20,915 sq.ft.
Total 1,943.05 sq.m. 20,915 sq.ft.
TOTAL PROPERTY AREA 7,165.245 77,098
TOTAL SITE AREA 3.33 HA 8.23 Acres
RATEABLE VALUES
All information in this regard is provided within the Purchasers Information Pack.
PRICING
Offers are sought in excess of £9,500,000 for our Client's heritable interest which assuming standard purchaser's costs and prevailing LBTT, reflects a Net Initial Yield of 8.28% and a capital rate of £123 per sq.ft.
TENURE
The assets are currently held on two separate ground leases from East Renfrewshire Council. Both leases will cease to exist at the time of sale as our client has negotiated a purchase of those interests.
At the point of sale, the Heritable interest shall be sold.
PURCHASERS PACK
We have a purchasers pack which will be provides to all seriously interested parties and provides further detail in relation to the following:
* Full Tenancy Schedule
* Lease documents
* Energy Performance Certificates
* Service Charge information
LEGAL COSTS
Each party will be responsible for paying their own legal costs incurred in this transaction.
ANTI MONEY LAUNDERING
Under the Money Laundering, Terrorist Financing and Transfer of Funds (Information on the Payer) Regulations 2017, DM Hall are legally required to complete due diligence on purchasers and vendors. Once an offer has been accepted, the prospective purchaser(s)/occupier(s) shall be required to provide, as a minimum, proof of identity and residence and proof of funds for the purchase before the transaction can proceed.
Brochures
Spiersbridge Business Park, Spiersbridge Avenue, Glasgow, G46
NEAREST STATIONS
Distances are straight line measurements from the centre of the postcode- Kennishead Station0.5 miles
- Thornliebank Station0.5 miles
- Priesthill & Darnley Station0.9 miles
Notes
Disclaimer - Property reference WSA2560-N. The information displayed about this property comprises a property advertisement. Rightmove.co.uk makes no warranty as to the accuracy or completeness of the advertisement or any linked or associated information, and Rightmove has no control over the content. This property advertisement does not constitute property particulars. The information is provided and maintained by DM Hall, Glasgow. Please contact the selling agent or developer directly to obtain any information which may be available under the terms of The Energy Performance of Buildings (Certificates and Inspections) (England and Wales) Regulations 2007 or the Home Report if in relation to a residential property in Scotland.
Map data ©OpenStreetMap contributors.






