Cross Street - Student House - 26/27

Letting details
- Let available date:
- 11/08/2026
- Deposit:
- £200A deposit provides security for a landlord against damage, or unpaid rent by a tenant.Read more about deposit in our glossary page.
- Min. Tenancy:
- Ask agent How long the landlord offers to let the property for.Read more about tenancy length in our glossary page.
- Furnish type:
- Furnished
- Council Tax:
- Ask agent
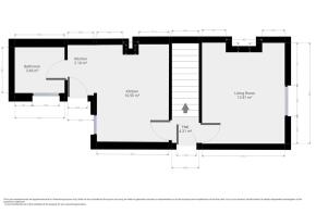
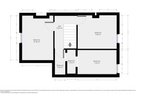
- PROPERTY TYPE
End of Terrace
- BEDROOMS
3
- BATHROOMS
1
- SIZE
883 sq ft
82 sq m
Key features
- Spacious 3 bedroom house
- Separate lounge and kitchen/diner
- Three upstairs bedrooms
- On-street permit parking
- Virgin Broadband
- Bathroom with shower over bath
- Price displayed is per person based on 3 tenants renting the property
- Close to the City Centre
- Council Tax Band A
- Available for 26/27
Description
Three bedroom house located close to the University and the City Centre, and within easy distance of the Transport Hub The property includes a spacious lounge, fully fitted kitchen/diner, bathroom and three well-proportioned bedrooms, all upstairs.
Up to 2 parking permits available through City of Lincoln Council permit scheme for a fee. Gas central heating.
Student 2 Bed+ Ct A - *Price displayed is as per person per week*
The deposit payable on the first day of your tenancy is just **£200.00** per person along with the first four weeks rent, after this the rent can be paid in instalments that coincide with your student loan.
The total rent due for the property will increase by £28.99 per week for any non-students (rental shares can be apportioned per tenant, meaning one or more tenants can contribute to this).
Don't miss out on this great property. Contact our friendly team at Cloud Lettings today to arrange your viewing or book a slot online for a time convenient to you!
See downloadable brochure for more details.
Call -
email -
WhatsApp -
Brochures
Cross Street - Student House - 26/27- COUNCIL TAXA payment made to your local authority in order to pay for local services like schools, libraries, and refuse collection. The amount you pay depends on the value of the property.Read more about council Tax in our glossary page.
- Band: A
- PARKINGDetails of how and where vehicles can be parked, and any associated costs.Read more about parking in our glossary page.
- Yes
- GARDENA property has access to an outdoor space, which could be private or shared.
- Ask agent
- ACCESSIBILITYHow a property has been adapted to meet the needs of vulnerable or disabled individuals.Read more about accessibility in our glossary page.
- Ask agent
Cross Street - Student House - 26/27
Add an important place to see how long it'd take to get there from our property listings.
__mins driving to your place
Explore area BETA
Lincoln
Get to know this area with AI-generated guides about local green spaces, transport links, restaurants and more.
Notes
Staying secure when looking for property
Ensure you're up to date with our latest advice on how to avoid fraud or scams when looking for property online.
Visit our security centre to find out moreDisclaimer - Property reference 34252904. The information displayed about this property comprises a property advertisement. Rightmove.co.uk makes no warranty as to the accuracy or completeness of the advertisement or any linked or associated information, and Rightmove has no control over the content. This property advertisement does not constitute property particulars. The information is provided and maintained by Cloud Lettings Ltd, Lincoln. Please contact the selling agent or developer directly to obtain any information which may be available under the terms of The Energy Performance of Buildings (Certificates and Inspections) (England and Wales) Regulations 2007 or the Home Report if in relation to a residential property in Scotland.
*This is the average speed from the provider with the fastest broadband package available at this postcode. The average speed displayed is based on the download speeds of at least 50% of customers at peak time (8pm to 10pm). Fibre/cable services at the postcode are subject to availability and may differ between properties within a postcode. Speeds can be affected by a range of technical and environmental factors. The speed at the property may be lower than that listed above. You can check the estimated speed and confirm availability to a property prior to purchasing on the broadband provider's website. Providers may increase charges. The information is provided and maintained by Decision Technologies Limited. **This is indicative only and based on a 2-person household with multiple devices and simultaneous usage. Broadband performance is affected by multiple factors including number of occupants and devices, simultaneous usage, router range etc. For more information speak to your broadband provider.
Map data ©OpenStreetMap contributors.





