
Ixworth Road, Thurston, Bury St Edmunds, IP31 3QD

- PROPERTY TYPE
Detached
- BEDROOMS
3
- SIZE
Ask developer
- TENUREDescribes how you own a property. There are different types of tenure - freehold, leasehold, and commonhold.Read more about tenure in our glossary page.
Freehold
Description
The Charndale is a popular three-bedroom family home with much to offer, it has a bright and modern open plan kitchen/dining room leading to a handy utility room. The spacious living room has French doors leading into the garden. Upstairs there are three good sized bedrooms, bedroom one benefiting from an en suite, plenty of storage and a modern family bathroom.
Additional Information
- Tenure: Freehold
- Annual service charge amount (£): 301
- Council tax band: Not made available by local authority until post-occupation
Parking - Allocated Parking
Room Dimensions
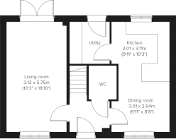
- Kitchen - 3.01 x 3.11 metre
- Dining room - 3.01 x 2.64 metre
- Living room - 3.12 x 5.75 metre
- Bedroom 1 - 2.88 x 3.75 metre
- Bedroom 2 - 4.19 x 2.69 metre
- Bedroom 3 - 3.14 x 2.7 metre
- COUNCIL TAXA payment made to your local authority in order to pay for local services like schools, libraries, and refuse collection. The amount you pay depends on the value of the property.Read more about council Tax in our glossary page.
- Ask developer
- PARKINGDetails of how and where vehicles can be parked, and any associated costs.Read more about parking in our glossary page.
- Yes
- GARDENA property has access to an outdoor space, which could be private or shared.
- Yes
- ACCESSIBILITYHow a property has been adapted to meet the needs of vulnerable or disabled individuals.Read more about accessibility in our glossary page.
- Ask developer
Energy performance certificate - ask developer
Ixworth Road, Thurston, Bury St Edmunds, IP31 3QD
Add an important place to see how long it'd take to get there from our property listings.
__mins driving to your place
Get an instant, personalised result:
- Show sellers you’re serious
- Secure viewings faster with agents
- No impact on your credit score
About Persimmon Homes Suffolk
Together, we make a home
We’ve been building homes and creating communities for 45+ years. With over 400 locations throughout the UK, a new Persimmon home could be right up your street.
We build a vast range of properties ranging from apartments - perfect for first-time buyers & downsizers - to large family houses, but what we’re most proud of is creating homes.
We know buying a home is an important decision. You can enjoy peace of mind and feel secure in the knowledge that all our new homes come with a 2-year Persimmon warranty and a 10-year insurance-backed new homes warranty. Plus our Persimmon Pledge is our guarantee that your home has been built to the highest of standards.
There are so many reasons why people fall in love with buying our brand new homes. Here are a few of our favourites:
Everything’s new
Imagine being the very first person to live in your home... Fresh, modern and totally yours.
Save on bills
You’ll have more pounds in your pocket because new-build homes are more energy-efficient.
No chain
Enjoy the ultimate freedom of having no upward chain to worry about. As stress-free as it gets!
Your mortgage
Notes
Staying secure when looking for property
Ensure you're up to date with our latest advice on how to avoid fraud or scams when looking for property online.
Visit our security centre to find out moreDisclaimer - Property reference 3_39. The information displayed about this property comprises a property advertisement. Rightmove.co.uk makes no warranty as to the accuracy or completeness of the advertisement or any linked or associated information, and Rightmove has no control over the content. This property advertisement does not constitute property particulars. The information is provided and maintained by Persimmon Homes Suffolk. Please contact the selling agent or developer directly to obtain any information which may be available under the terms of The Energy Performance of Buildings (Certificates and Inspections) (England and Wales) Regulations 2007 or the Home Report if in relation to a residential property in Scotland.
*This is the average speed from the provider with the fastest broadband package available at this postcode. The average speed displayed is based on the download speeds of at least 50% of customers at peak time (8pm to 10pm). Fibre/cable services at the postcode are subject to availability and may differ between properties within a postcode. Speeds can be affected by a range of technical and environmental factors. The speed at the property may be lower than that listed above. You can check the estimated speed and confirm availability to a property prior to purchasing on the broadband provider's website. Providers may increase charges. The information is provided and maintained by Decision Technologies Limited. **This is indicative only and based on a 2-person household with multiple devices and simultaneous usage. Broadband performance is affected by multiple factors including number of occupants and devices, simultaneous usage, router range etc. For more information speak to your broadband provider.
Map data ©OpenStreetMap contributors.






