(with 3 Bed Annex), Woolaston Grange, Woolaston, Gloucestershire. GL15 6PP

- PROPERTY TYPE
Detached
- BEDROOMS
5
- BATHROOMS
4
- SIZE
Ask agent
- TENUREDescribes how you own a property. There are different types of tenure - freehold, leasehold, and commonhold.Read more about tenure in our glossary page.
Freehold
Key features
- 5 Bedroom Cottage & 3 Bed Detached Annex
- Flexible Accommodation with Established Income
- Large Timber Cabin/Studio/Home Office
- Secure South Facing Garden, Ample Parking
- Easy Access to Major Road/Rail, A48, M48, M4
Description
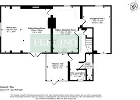
Entrance Hall/Reception Room
A large conservatory style reception overlooking the garden, slate tiled floor, door to inner hall.
Inner Hall
Slate tiled floor, built in under stairs storage cupboard, doors to utility room, ground floor shower room, kitchen breakfast room and stairs to first floor.
Kitchen Breakfast Room
Dual aspect kitchen breakfast room with a range of fully fitted shaker style cabinets, breakfast bar, integrated twin ovens, gas hob and dishwasher, slate tiled floor, doors to sitting dining room and study/bedroom 5.
Sitting/Dining Room
A very generous living space overlooking the garden, feature fireplace with wood burning stove on a tiled hearth, engineered wood floor and French doors to the covered courtyard.
Snug/Bedroom 5
A dual aspect double room currently used as bedroom 5 but would make an equally good snug.
Utility Room
Overlooks the garden, fitted sink unit and plumbing for the washing machine and tumble dryer.
Ground Floor Shower Room
Window to side, shower enclosure, WC and wash basin.
Bedroom 1
A dual aspect double room with high beamed ceiling, opens onto the balcony overlooking the garden, door to en-suite.
Bedroom 1 En-suite
Shower enclosure with mains supply shower, WC and wash basin.
Bedroom 2
Dual aspect double bedroom with lovely view, apex ceiling with exposed beams.
Bedroom 3
Bright room with dual aspect and lovely outlook.
Bedroom 4
Cosy children's room/nursery or dressing room to bedroom 1, built in storage cupboard.
Family Bathroom
Half panelled room with roll top, claw foot slipper bath, WC and wash basin.
Annex
The detached timber clad annex is fully double glazed and has its own private outside space. It is currently operated as a successful holiday let with a well-established income (accounts available).
Annex Kitchen Sitting Room
Exceptionally spacious living area with open plan kitchen/ dining. Bright modern interior, laminate floor, doors to all bedrooms and private courtyard garden.
Annex Bedrooms
There are three very generous double bedrooms with one having en-suite facilities.
Annex Bathroom
A smart well-appointed fully tiled modern bathroom, walk-in drench shower, bath, WC, wash basin.
Cabin
A large detached purpose built timber studio/entertainment room, opening on to a raised decked terrace overlooking the garden. Power and light connected.
Garden
There is gated access to the large level plot with ample parking. It is securely fenced with a hedgerow and tree lined boundary. Doors from the living room open out onto a covered and private patio. There is a raised decked terrace along the front of the cabin, the annex has its own private enclosed garden. The garden has a sunny south westerly aspect.
Directions
What3Words - ///emulated.lifted.boomers
From Chepstow, head in the direction of Gloucester on the A48. After 4 miles turn right opposite the Wyvern Car Sales Garage. The entrance to the property is on the left hand side.
- COUNCIL TAXA payment made to your local authority in order to pay for local services like schools, libraries, and refuse collection. The amount you pay depends on the value of the property.Read more about council Tax in our glossary page.
- Band: D
- PARKINGDetails of how and where vehicles can be parked, and any associated costs.Read more about parking in our glossary page.
- Yes
- GARDENA property has access to an outdoor space, which could be private or shared.
- Yes
- ACCESSIBILITYHow a property has been adapted to meet the needs of vulnerable or disabled individuals.Read more about accessibility in our glossary page.
- Ask agent
(with 3 Bed Annex), Woolaston Grange, Woolaston, Gloucestershire. GL15 6PP
Add an important place to see how long it'd take to get there from our property listings.
__mins driving to your place
Get an instant, personalised result:
- Show sellers you’re serious
- Secure viewings faster with agents
- No impact on your credit score
Your mortgage
Notes
Staying secure when looking for property
Ensure you're up to date with our latest advice on how to avoid fraud or scams when looking for property online.
Visit our security centre to find out moreDisclaimer - Property reference PRA15995. The information displayed about this property comprises a property advertisement. Rightmove.co.uk makes no warranty as to the accuracy or completeness of the advertisement or any linked or associated information, and Rightmove has no control over the content. This property advertisement does not constitute property particulars. The information is provided and maintained by Ferrino & Partners, Lydney. Please contact the selling agent or developer directly to obtain any information which may be available under the terms of The Energy Performance of Buildings (Certificates and Inspections) (England and Wales) Regulations 2007 or the Home Report if in relation to a residential property in Scotland.
*This is the average speed from the provider with the fastest broadband package available at this postcode. The average speed displayed is based on the download speeds of at least 50% of customers at peak time (8pm to 10pm). Fibre/cable services at the postcode are subject to availability and may differ between properties within a postcode. Speeds can be affected by a range of technical and environmental factors. The speed at the property may be lower than that listed above. You can check the estimated speed and confirm availability to a property prior to purchasing on the broadband provider's website. Providers may increase charges. The information is provided and maintained by Decision Technologies Limited. **This is indicative only and based on a 2-person household with multiple devices and simultaneous usage. Broadband performance is affected by multiple factors including number of occupants and devices, simultaneous usage, router range etc. For more information speak to your broadband provider.
Map data ©OpenStreetMap contributors.








