
City Road, Beeston, NG9 2LQ

Letting details
- Let available date:
- 17/07/2026
- Deposit:
- Ask agentA deposit provides security for a landlord against damage, or unpaid rent by a tenant.Read more about deposit in our glossary page.
- Min. Tenancy:
- Ask agent How long the landlord offers to let the property for.Read more about tenancy length in our glossary page.
- Furnish type:
- Ask agent
- Council Tax:
- Ask agent
- PROPERTY TYPE
End of Terrace
- BEDROOMS
4
- BATHROOMS
4
- SIZE
Ask agent
Key features
- A 4 en suite bedroom student property
- 2026-2027 ACADEMIC YEAR: £140pppw exclusive of bills.
- Bills inclusive option available through 3rd party provider at £26pppw.
- Four bathrooms
- Excellent communal space: sociable kitchen / dining / living room
- Central location in Beeston town centre close to shops and 800m from West Entrance
- Ideal for PG students
- EPC Rating C:73
Description
This property is ideally located in Beeston town centre close to the West Entrance to Uni Park. The property features FOUR EN SUITE BEDROOMS and an open plan kitchen and living room area.
The location is town centre so within easy reach of Beeston's excellent range of grocery and other shopping facilities.
Student-4Bed-Next-Academic-Year
Location
The property is situated on City Road, a residential street off High Road, the main shopping street in central Beeston. The central location means easy access to Beeston's excellent range of shopping facilities; the Sainsburys and Tesco superstores as well as the the local greengrocers, butchers, fishmongers and specialist food shops. The location also allows easy access to University Park (the west entrance is 800 m away). There are also regular bus and tram services (every 5 or so minutes) leaving close to the property connecting with the South and East Entrances, QMC, Jubilee Campus and City Centre.
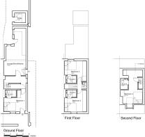
Floor plan
The Floor Plan shows the general arrangement of the property.
Kitchen
There is a communal kitchen with electric hob and oven, American style fridge freezer, microwave, kettle, toaster etc.
Living Room
The open plan kitchen and dining area flows through to a living room area with sofa and large TV.
Utility
There is a utility room in a building to the rear of the kitchen accessed from outside with washing machine and separate dryer.
Bedrooms
There are 4 double bedrooms in the property - all of decent size. Beds are ottoman style with storage under. There is ample clothes storage. The floor plan illustrates the floor areas of each room as follows:
Bedroom 1 (Ground floor front) - 10 sq. m - small double sized bed
Bedroom 2 (First floor front) - 10 sq. m - double sized bed
Bedroom 3 (First floor rear) - 10 sq. m - double sized bed
Bedroom 4 (Attic) - 14.5 sq. m - double sized bed
Bedroom 1
Ground floor front bedroom.
En suite bathroom to Room 1
With shower, wash hand basin and WC
Bedroom 2
First floor front bedroom.
En suite bathroom to Room 2
With shower, wash hand basin and WC
Bedroom 3
First floor front bedroom.
En suite bathroom to Room 3
With shower, wash hand basin and WC
Bedroom 4
Attic bedroom with sloping ceiling height to the front and dormer extension to the rear.
En suite bathroom to Room 4
With shower, WC and wash hand basin.
Outside
Outside there is a garden to the rear (maintenance provided by the landlord).
Parking
There is parking to the front - permit required from Nottingham County Council
Heating
There is full gas central heating via a modern Combi boiler. The property is double glazed throughout.
EPC Rating
The EPC Rating is C:73
- COUNCIL TAXA payment made to your local authority in order to pay for local services like schools, libraries, and refuse collection. The amount you pay depends on the value of the property.Read more about council Tax in our glossary page.
- Ask agent
- PARKINGDetails of how and where vehicles can be parked, and any associated costs.Read more about parking in our glossary page.
- Yes
- GARDENA property has access to an outdoor space, which could be private or shared.
- Yes
- ACCESSIBILITYHow a property has been adapted to meet the needs of vulnerable or disabled individuals.Read more about accessibility in our glossary page.
- Ask agent
Energy performance certificate - ask agent
City Road, Beeston, NG9 2LQ
Add an important place to see how long it'd take to get there from our property listings.
__mins driving to your place
Notes
Staying secure when looking for property
Ensure you're up to date with our latest advice on how to avoid fraud or scams when looking for property online.
Visit our security centre to find out moreDisclaimer - Property reference 27073. The information displayed about this property comprises a property advertisement. Rightmove.co.uk makes no warranty as to the accuracy or completeness of the advertisement or any linked or associated information, and Rightmove has no control over the content. This property advertisement does not constitute property particulars. The information is provided and maintained by C P Walker & Son, Beeston. Please contact the selling agent or developer directly to obtain any information which may be available under the terms of The Energy Performance of Buildings (Certificates and Inspections) (England and Wales) Regulations 2007 or the Home Report if in relation to a residential property in Scotland.
*This is the average speed from the provider with the fastest broadband package available at this postcode. The average speed displayed is based on the download speeds of at least 50% of customers at peak time (8pm to 10pm). Fibre/cable services at the postcode are subject to availability and may differ between properties within a postcode. Speeds can be affected by a range of technical and environmental factors. The speed at the property may be lower than that listed above. You can check the estimated speed and confirm availability to a property prior to purchasing on the broadband provider's website. Providers may increase charges. The information is provided and maintained by Decision Technologies Limited. **This is indicative only and based on a 2-person household with multiple devices and simultaneous usage. Broadband performance is affected by multiple factors including number of occupants and devices, simultaneous usage, router range etc. For more information speak to your broadband provider.
Map data ©OpenStreetMap contributors.








