
High street retail property for rent
Fountain Street, Manchester, M2 2BE
Letting details
- Let available date:
- Now
- PROPERTY TYPE
Retail Property (high street)
- SIZE
1,321 sq ft
123 sq m
Description
This ground floor open plan unit, currently trading as a barbers academy who are looking to sublet approximately 40% of the unit. Located in a prominent corner position fronting Fountain Street and York Street. The premises has nearby occupiers including Primark, Brewdog Hotel, and Moose Coffee. The unit is predominantly open plan with large windows and polished concrete flooring. The unit is suitable for a range of uses (STP).
Rent
£42,500pax
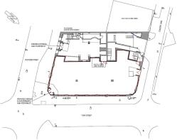
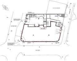
Location
Prominent corner position fronting Fountain Street and York Street, close to the Market Street junction and Piccadilly gardens. All city centre amenities including shops, bars, restaurants, hotels and transport links are within close proximity.
Accommodation
Ground floor - 122.77m2 (1,321 sqft)
Property use class
Retail/Financial and Professional Services.
Lease
The accommodation is available by way of sublet with the lease set to end in July 2028. A new full repairing lease may be available subject to the landlord’s approval.
Service charge
TBA
VAT
All figures quoted are exclusive of VAT but may be liable to VAT.
Business rates (should the unit be split, the rateable value will require re-evaluation)
The property is described as "Hair dressing academy" with a current ratable value of £60,500 per annum. For further information please contact Manchester City Council's Business Rates Department on .
Legal costs
Each party to bear their own legal costs.
EPC
B
Viewing
By appointment with Daniel Jaysan at Hyde Estate & Letting Agents 0161-773 4583
Brochures
Fountain Street, Manchester, M2 2BEFountain Street, Manchester, M2 2BE
NEAREST STATIONS
Distances are straight line measurements from the centre of the postcode- Mosley Street Tram Stop0.1 miles
- Market Street Tram Stop0.1 miles
- Piccadilly Gardens Tram Stop0.2 miles

Notes
Disclaimer - Property reference 33724165. The information displayed about this property comprises a property advertisement. Rightmove.co.uk makes no warranty as to the accuracy or completeness of the advertisement or any linked or associated information, and Rightmove has no control over the content. This property advertisement does not constitute property particulars. The information is provided and maintained by Hyde Estate & Lettings Agents, Manchester. Please contact the selling agent or developer directly to obtain any information which may be available under the terms of The Energy Performance of Buildings (Certificates and Inspections) (England and Wales) Regulations 2007 or the Home Report if in relation to a residential property in Scotland.
Map data ©OpenStreetMap contributors.







