5 bedroom detached house for sale
Green Lane, Ringmer, Lewes

- PROPERTY TYPE
Detached
- BEDROOMS
5
- BATHROOMS
3
- SIZE
890 sq ft
83 sq m
- TENUREDescribes how you own a property. There are different types of tenure - freehold, leasehold, and commonhold.Read more about tenure in our glossary page.
Freehold
Key features
- Exceptional Development Opportunity: The property comes with plans submitted to Lewes District Council under reference LW/25/0562 for a substantial single and two-storey extensions, transforming the e
- Generous Land: The site encompasses approximately 1 acre of private, established grounds, a large area of hard standing parking, providing extensive space for gardens, landscaping, and outdoor activit
- Prime Semi-Rural Location: Situated on the desirable Green Lane in Ringmer, offering tranquility and seclusion while remaining accessible to local amenities.
- Ancillary Accommodation Potential: • Substantial portal frame steel building built circa 1994 of approximately 1600ft2 internally, ideal for conversion into an independent family annexe, a superb hom
- Luxurious Principal Suite: The proposed design includes an extensive main bedroom suite featuring a dressing room and private ensuite bathroom.
- Five Bedroom Potential: The approved plans allow for the creation of up to five bedrooms in the finished residence, catering to a large or growing family.
- Open-Plan Living: The new design focuses on modern family life with a large, light-filled open-plan Kitchen/Dining/Living area. with 6 metre island unit
- Practical Utility Spaces: The plans incorporate essential practical rooms, including a separate Utility room and a Pantry.
- Private Driveway Access: The property is accessed via a secluded, tree-lined gravel driveway, ensuring a high degree of privacy and an impressive entrance.
- Blank Canvas Project: The project offers a unique chance for a buyer to finalize the interior specification and finishes to their exact personal tastes and standards.
Description
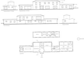
The current structure, a charming single-storey building with a distinctive white-clad exterior, presents an immediate charm. The architectural drawings show this structure will be transformed into a sophisticated, expansive family residence. The proposed design features generous and logically planned family living spaces. The heart of the new home will be a large, open-plan Kitchen/Dining/Living area, perfect for modern family life and entertaining. This area is supplemented by essential utility spaces, including a dedicated Utility room and a spacious Pantry. The layout is designed to maximize natural light and flow throughout the property, with various windows and access points shown on all four elevations (South, East, West, and North).
The sleeping quarters in the proposed scheme provides for up to five bedrooms. This includes a luxurious principal suite, which is planned to incorporate a generous Dressing Room and a private Ensuite bathroom, creating a peaceful sanctuary.
Furthermore, the site includes a separate portal frame detached barn, which is explicitly noted on the site plans for its ancillary accommodation use. This separate structure represents excellent untapped potential, as it could be converted into a high-quality, self-contained accommodation - internal garaging, play space or holiday lets with PP.
Brochures
Green Lane, Ringmer, LewesBrochure- COUNCIL TAXA payment made to your local authority in order to pay for local services like schools, libraries, and refuse collection. The amount you pay depends on the value of the property.Read more about council Tax in our glossary page.
- Band: D
- PARKINGDetails of how and where vehicles can be parked, and any associated costs.Read more about parking in our glossary page.
- Yes
- GARDENA property has access to an outdoor space, which could be private or shared.
- Yes
- ACCESSIBILITYHow a property has been adapted to meet the needs of vulnerable or disabled individuals.Read more about accessibility in our glossary page.
- Ask agent
Energy performance certificate - ask agent
Green Lane, Ringmer, Lewes
Add an important place to see how long it'd take to get there from our property listings.
__mins driving to your place
Get an instant, personalised result:
- Show sellers you’re serious
- Secure viewings faster with agents
- No impact on your credit score
Your mortgage
Notes
Staying secure when looking for property
Ensure you're up to date with our latest advice on how to avoid fraud or scams when looking for property online.
Visit our security centre to find out moreDisclaimer - Property reference 34255145. The information displayed about this property comprises a property advertisement. Rightmove.co.uk makes no warranty as to the accuracy or completeness of the advertisement or any linked or associated information, and Rightmove has no control over the content. This property advertisement does not constitute property particulars. The information is provided and maintained by Oakfield, Lewes. Please contact the selling agent or developer directly to obtain any information which may be available under the terms of The Energy Performance of Buildings (Certificates and Inspections) (England and Wales) Regulations 2007 or the Home Report if in relation to a residential property in Scotland.
*This is the average speed from the provider with the fastest broadband package available at this postcode. The average speed displayed is based on the download speeds of at least 50% of customers at peak time (8pm to 10pm). Fibre/cable services at the postcode are subject to availability and may differ between properties within a postcode. Speeds can be affected by a range of technical and environmental factors. The speed at the property may be lower than that listed above. You can check the estimated speed and confirm availability to a property prior to purchasing on the broadband provider's website. Providers may increase charges. The information is provided and maintained by Decision Technologies Limited. **This is indicative only and based on a 2-person household with multiple devices and simultaneous usage. Broadband performance is affected by multiple factors including number of occupants and devices, simultaneous usage, router range etc. For more information speak to your broadband provider.
Map data ©OpenStreetMap contributors.




