
Camargue Road, Westbury
- PROPERTY TYPE
Land
- SIZE
Ask agent
Key features
- A SUBPERB DEVELOPMENT OPPORTUNITY ON THE OUTSKIRTS OF WESTBURY
- FANTASTIC LOCATION, CLOSE TO OPEN COUNTRYSIDE AND WITHIN WALKING DISTANCE OF THE RAILWAY STATION AND TOWN CENTRE
- NON ESTATE POSITION
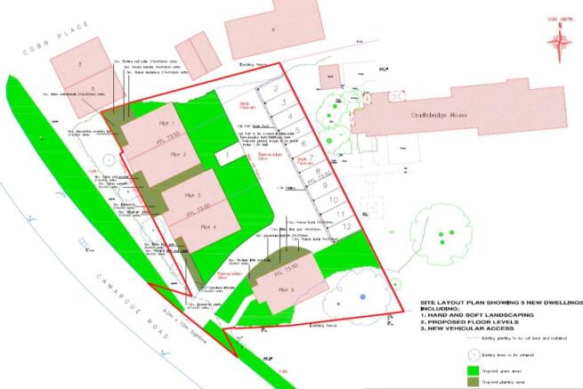
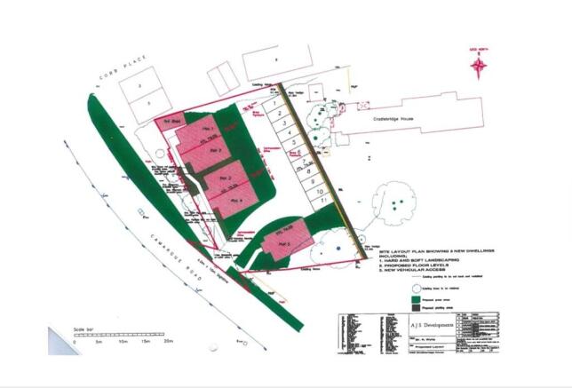
- PLANNING PERMISSION OBTAINED FOR THE ERECTION OF FIVE PROPERTIES
- A CHANCE TO CREATE A SELECT AND EXCLUSIVE SMALL CUL DE SAC
- CIL HAVING BEEN PAID
- FURTHER DETAILS AVAILABLE TO VIEW BY VISITING WILTSHIRE COUNCIL'S PLANNING PORTAL AND USING REF: PL/2022/08674
Description
Please Note: The access has been revised and is indicated on the picture titled "revised plan". There has also been the following revisions: The removal of car port and simply provide 1400mm high retaining wall on eastern boundary. The existing western boundary wall is 2.1m high and will be reduced in height to 1.2m. The only frontage access will be the vehicle access with a path behind 1.2m high boundary wall. The existing sceptic tank for Cradlebridge House to be removed and the 100mm drain to be connected to the new drainage on plot 1. The new foul and surface water drainage system to be connected to existing manholes at junction with Cobb Place.
Westbury is a vibrant and popular market town located in the heart of Wiltshire which provides excellent access to Warminster, Salisbury, Frome and Bath via the A36. The town is well served with several respected Schools, Westbury Infants, Westbury Church Of England Junior and Matravers Secondary. Residents are able to take full advantage of the gorgeous countryside that surrounds the town, with some beautiful walks and cycle rides nearby not to mention Longleat which is 8 miles distant, so whether it be a stroll to enjoy the vista across the White Horse and beyond or perhaps a ramble in Clanger Woods this has it all. Superb rail links are on hand courtesy or the Railway Station which offers a direct line to Bath, London Paddington, Cardiff, Portsmouth and Swindon. The historic 14th century All Saints Church is located off the main square and you will find a number of independent shops and cafe's to enjoy along with a Farmers Market which meets on a weekly basis. The town has two large supermarkets with Aldi and Morrisons to choose from. On the sports and leisure side there is Leighton Recreation Centre a local swimming pool an several gyms to work up a sweat.
Camargue Road, Westbury
NEAREST STATIONS
Distances are straight line measurements from the centre of the postcode- Dilton Marsh Station0.6 miles
- Westbury Station1.1 miles
- Warminster Station3.2 miles
Notes
Disclaimer - Property reference DDW250456. The information displayed about this property comprises a property advertisement. Rightmove.co.uk makes no warranty as to the accuracy or completeness of the advertisement or any linked or associated information, and Rightmove has no control over the content. This property advertisement does not constitute property particulars. The information is provided and maintained by Davies & Davies, Westbury. Please contact the selling agent or developer directly to obtain any information which may be available under the terms of The Energy Performance of Buildings (Certificates and Inspections) (England and Wales) Regulations 2007 or the Home Report if in relation to a residential property in Scotland.
Map data ©OpenStreetMap contributors.








