Milestone Road, Upton-Upon-Severn

- PROPERTY TYPE
Detached
- BEDROOMS
4
- BATHROOMS
2
- SIZE
1,389 sq ft
129 sq m
- TENUREDescribes how you own a property. There are different types of tenure - freehold, leasehold, and commonhold.Read more about tenure in our glossary page.
Freehold
Description
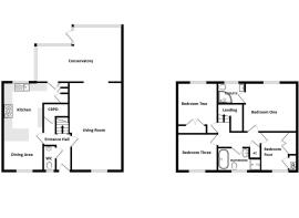
Entrance Hall - Part glazed door opens into the Entrance Hall. With doors off to the Living Room, Kitchen Dining Room and Cloakroom. Door to a useful understairs storage cupboard, radiator, Karndean flooring and stairs rise to the First Floor.
Cloakroom - The Cloakroom is fitted with a white suite comprising low flush WC, circular wash hand basin with chrome mixer tap and cupboard below. With the continuation of the Karndean flooring, obscure double glazed window to the front aspect, radiator and wall mounted fuse board.
Kitchen Dining Room - 2.9m x 2.64m (9'6" x 8'7") - The Kitchen Dining Room is comprehensively fitted with a range of cream base and eye level units with under unit lighting, tiled working surfaces and matching splashback. Slot in Rangemaster with five ring gas hob, double oven below and Rangemaster Extractor hood above. Composite sink unit with drainer and mixer tap, integrated dishwasher, washing machine, fridge freezer and larder style cupboard. Dual aspect double glazed windows to the front and rear aspects, two radiators, spotlights to ceiling and glazed door to the Conservatory.
Living Room - 6.4m x 3.5m (20'11" x 11'5") - A particular feature of this room is the woodburner inset with limestone surround and hearth. Coving to ceiling, two double glazed windows to the front aspect, two radiators and opening to the Conservatory.
Conservatory - 6.2m x 3.9m narrowing to 2.5m (20'4" x 12'9" narro - The Conservatory is a perfect addition to this home, with double glazed windows to the rear and side aspects overlooking the beautifully maintained garden. Two radiators, power and lighting.
First Floor - From the Entrance Hall, stairs rise and return to the First Floor. With doors off to all Bedrooms and Bathroom. Access to loft space via hatch, door to Airing Cupboard housing the water tank and slatted shelving above for storage.
Bedroom One - 3.5m x 3.5 (11'5" x 11'5") - Double glazed window to the rear aspect, radiator and door to the En-Suite Shower Room.
En-Suite Shower Room - The En-Suite Shower Room is fitted with a white suite comprising, low flush WC, wash hand basin with chrome mixer tap with cupboard below. Walk-in shower cubicle with glazed screen, radiator, fully tiled walls and flooring. Obscure double glazed window to the rear aspect.
Bedroom Two - 3m x 3m (9'10" x 9'10") - Double glazed window to the rear aspect overlooking the rear garden, radiator and double built-in wardrobes.
Bedroom Three - 3m x 2.7m (9'10" x 8'10") - Double glazed window to the front aspect providing views towards the Malvern Hills. Radiator.
Bedroom Four - 2.8m x 1.94m (9'2" x 6'4") - Currently used as an office / dressing room, fitted with double wardrobes housing the Worcester Boiler, hanging rails and shelving. Radiator, double glazed window to the front aspect providing views towards the Malvern Hills.
Bathroom - The Bathroom is fitted with a white suite comprising, a freestanding bath with chrome mixer tap, low flush WC and floating contemporary wash handbasin with chrome mixer tap. Shower cubicle with glazed door, wall mounted mirror cabinet and fully tiled walls and flooring. Radiator, Spotlights to ceiling and obscure double glazed window to the front aspect.
Garage - 5m x 2m (16'4" x 6'6") - With two up and over doors to the driveway parking, built-in storage cupboards and access to the eaves. Power, lighting, courtesy door to the garden and door to an Office.
Office - 2.8m x 2.5m (9'2" x 8'2") - Within the Garage, an Office has been created, with power, tiled flooring, double glazed window to the rear aspect and spotlights to ceiling.
Outside - To the front of the property there is a paved driveway leading to the attached garages, providing ample off road parking and a turning space.
The fore-garden is hardscaped for ease of maintenance, with a variety of sculptural plants and enclosed with clipped mature mixed hedging. Gated access leads to the rear of the property.
The rear garden garden is beautifully maintained and really compliments the property. With a paved patio area and seating area located behind the garage, enjoying a high degree of privacy. Slate filled borders with a curved lawn area lead to the well stocked shrub and flower borders. There is a level lawn, access to garage via courtesy door, external water tap and lighting.
To the walled side of the garden is a further strip of lawn and hedge which belongs to the house.
Council Tax Band - We understand that this property is council tax band E.
This information may have been obtained via and applicants are advised to make their own enquiries before proceeding as Denny & Salmond will not be held responsible for any inaccurate information.
Disclosure - Denny & Salmond has made every effort to ensure that measurements and particulars are accurate however prospective purchasers must satisfy themselves as to the accuracy of the information provided. No information with regard to planning use, structural integrity, services or appliances has been formally verified and therefore prospective purchasers are requested to seek validation of all such matters prior to submitting a formal offer to purchase the property.
Freehold - Our client advises us that the property is Freehold however should you proceed to purchase this property these details must be confirmed via your solicitor within the pre-contract enquiries.
Money Laundering Regulations - Should a purchaser(s) have an offer accepted on a property marketed by Denny & Salmond they will need to undertake an identification check and asked to provide information on the source and proof of funds. This is done to meet our obligation under Anti Money Laundering Regulations (AML) and is a legal requirement
Brochures
Milestone Road, Upton-Upon-SevernBrochure- COUNCIL TAXA payment made to your local authority in order to pay for local services like schools, libraries, and refuse collection. The amount you pay depends on the value of the property.Read more about council Tax in our glossary page.
- Band: E
- PARKINGDetails of how and where vehicles can be parked, and any associated costs.Read more about parking in our glossary page.
- Driveway
- GARDENA property has access to an outdoor space, which could be private or shared.
- Yes
- ACCESSIBILITYHow a property has been adapted to meet the needs of vulnerable or disabled individuals.Read more about accessibility in our glossary page.
- Ask agent
Milestone Road, Upton-Upon-Severn
Add an important place to see how long it'd take to get there from our property listings.
__mins driving to your place
Get an instant, personalised result:
- Show sellers you’re serious
- Secure viewings faster with agents
- No impact on your credit score
Your mortgage
Notes
Staying secure when looking for property
Ensure you're up to date with our latest advice on how to avoid fraud or scams when looking for property online.
Visit our security centre to find out moreDisclaimer - Property reference 34256157. The information displayed about this property comprises a property advertisement. Rightmove.co.uk makes no warranty as to the accuracy or completeness of the advertisement or any linked or associated information, and Rightmove has no control over the content. This property advertisement does not constitute property particulars. The information is provided and maintained by Denny and Salmond, Malvern. Please contact the selling agent or developer directly to obtain any information which may be available under the terms of The Energy Performance of Buildings (Certificates and Inspections) (England and Wales) Regulations 2007 or the Home Report if in relation to a residential property in Scotland.
*This is the average speed from the provider with the fastest broadband package available at this postcode. The average speed displayed is based on the download speeds of at least 50% of customers at peak time (8pm to 10pm). Fibre/cable services at the postcode are subject to availability and may differ between properties within a postcode. Speeds can be affected by a range of technical and environmental factors. The speed at the property may be lower than that listed above. You can check the estimated speed and confirm availability to a property prior to purchasing on the broadband provider's website. Providers may increase charges. The information is provided and maintained by Decision Technologies Limited. **This is indicative only and based on a 2-person household with multiple devices and simultaneous usage. Broadband performance is affected by multiple factors including number of occupants and devices, simultaneous usage, router range etc. For more information speak to your broadband provider.
Map data ©OpenStreetMap contributors.







