Edmund Road, Sheffield, S2

Letting details
- Let available date:
- 08/07/2026
- Deposit:
- £800A deposit provides security for a landlord against damage, or unpaid rent by a tenant.Read more about deposit in our glossary page.
- Min. Tenancy:
- Ask agent How long the landlord offers to let the property for.Read more about tenancy length in our glossary page.
- Furnish type:
- Furnished
- Council Tax:
- Ask agent
- PROPERTY TYPE
House
- BEDROOMS
4
- BATHROOMS
2
- SIZE
Ask agent
Key features
- Bath
- Fitted wardrobe
- Curtains
- TV
- Dishwasher
- Double Glazing
- Double bed
- Single bed
- Shower
Description
Key Features:
Two Bathrooms
Close to City Campus & City Centre
No Ground Floor Bedroom
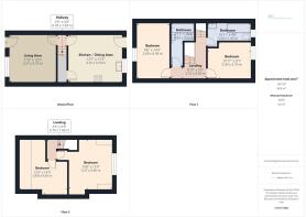
4 Double Bedrooms
A stylish fully furnished 3 bed student home with a cosy feel, this property is in a great location, just minutes from Sheffield Hallam University, Train Station and the City Centre.
This property features a cosy living room with sofas and TV, a large modern fitted kitchen with appliances, including dishwasher, tumble dryer and a having dining table. The beautiful student home boasts two bathrooms, both with a bath making it perfect for relaxing!
Each of the four double bedrooms are fully furnished with a bed, desk, chair, wardrobes and drawers — there is also the benefit of having no bedrooms on the ground floor level.
Rent advertised also covers the following Utilities: Gas, Electric, Water, TV Licence & Broadband.
This property is listed by Hybr: The #1 rental platform for students in the UK. By enquiring on this property, you consent to Hybr passing on your information for the purposes of responding to your enquiry.
- COUNCIL TAXA payment made to your local authority in order to pay for local services like schools, libraries, and refuse collection. The amount you pay depends on the value of the property.Read more about council Tax in our glossary page.
- Ask agent
- PARKINGDetails of how and where vehicles can be parked, and any associated costs.Read more about parking in our glossary page.
- Ask agent
- GARDENA property has access to an outdoor space, which could be private or shared.
- Ask agent
- ACCESSIBILITYHow a property has been adapted to meet the needs of vulnerable or disabled individuals.Read more about accessibility in our glossary page.
- Ask agent
Energy performance certificate - ask agent
Edmund Road, Sheffield, S2
Add an important place to see how long it'd take to get there from our property listings.
__mins driving to your place
Notes
Staying secure when looking for property
Ensure you're up to date with our latest advice on how to avoid fraud or scams when looking for property online.
Visit our security centre to find out moreDisclaimer - Property reference e8ae8eef-3096-40d5-b414-0f273ce023b2. The information displayed about this property comprises a property advertisement. Rightmove.co.uk makes no warranty as to the accuracy or completeness of the advertisement or any linked or associated information, and Rightmove has no control over the content. This property advertisement does not constitute property particulars. The information is provided and maintained by HYBR, National. Please contact the selling agent or developer directly to obtain any information which may be available under the terms of The Energy Performance of Buildings (Certificates and Inspections) (England and Wales) Regulations 2007 or the Home Report if in relation to a residential property in Scotland.
*This is the average speed from the provider with the fastest broadband package available at this postcode. The average speed displayed is based on the download speeds of at least 50% of customers at peak time (8pm to 10pm). Fibre/cable services at the postcode are subject to availability and may differ between properties within a postcode. Speeds can be affected by a range of technical and environmental factors. The speed at the property may be lower than that listed above. You can check the estimated speed and confirm availability to a property prior to purchasing on the broadband provider's website. Providers may increase charges. The information is provided and maintained by Decision Technologies Limited. **This is indicative only and based on a 2-person household with multiple devices and simultaneous usage. Broadband performance is affected by multiple factors including number of occupants and devices, simultaneous usage, router range etc. For more information speak to your broadband provider.
Map data ©OpenStreetMap contributors.




